Zoutmansweg 8
2811 ES Reeuwijk
beschikbaar
€ 1.085.000,- k.k.
Interesse in deze woning?

Omschrijving
Charmant wonen op een historische plek, met torentje, tuin én karakter!
Wie op zoek is naar een monumentaal huis met een ziel, een geschiedenis én een indrukwekkende uitstraling, zal zich direct aangetrokken voelen tot Zoutmansweg 8 in Reeuwijk. Deze charmante vrijstaande chaletvilla met karakteristieke toren en markante gevel ademt sfeer en authenticiteit. Met een woonoppervlakte van circa 145 m², een kelder, bergzolder, royale garage, zeer royale monumentale hobby-/bedrijfsruimte en een fraai aangelegde tuin rondom, is dit een woning met uitzonderlijke mogelijkheden. De woning biedt een schitterend vrij uitzicht over de Breevaart.
De woning is goed onderhouden en liefdevol bewoond, en van binnen grotendeels nog in klassieke staat. Denk aan originele details, vaste stoffering, karakteristieke glas-in-loodramen en een indeling zoals men die vroeger maakte, ruim, logisch en met gevoel voor stijl.
Bouwjaar ca. 1920, woonoppervlakte ca. 145m², hobby-/bedrijfsruimte ca. 109m², garage ca. 17m², inhoud ca. 599m³.
Een entree met allure
Achter het smeedijzeren hek en de verzorgde voortuin kom je via entree aan de zijzijde binnen in een imposante hal met hoge plafonds en een klassieke trapopgang. Hier voel je het meteen: dit huis heeft iets bijzonders. Vanuit de hal is er tevens toegang tot de royale kelder welke perfect geschikt is als wijnkelder.
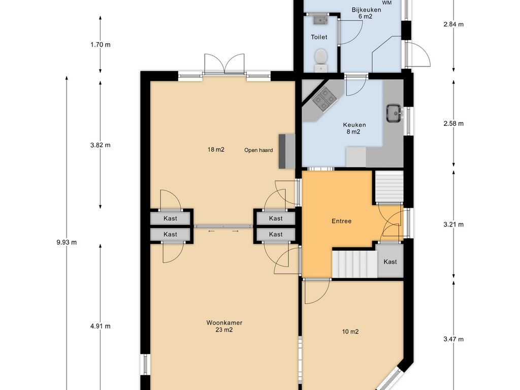
De woonkamer aan de voorzijde is sfeervol, met veel lichtinval, glas-in-loodramen en een open haard als blikvanger. Via ensuite deuren bereik je de achtergelegen eetkamer, die uitkijkt op de tuin en is voorzien van openslaande deuren en een marmeren schouw.
De keukenruimte is keurig en in lichte kleuren uitgevoerd, voorzien van een hoekopgestelde inrichting en apart kookgedeelte met afzuigschouw, voldoende vaste kasten en inbouwapparatuur. Aangrenzend bevindt zich een bijkeuken met plaats voor witgoed, c.v. installatie, een extra buitendeur en een separate toiletruimte.
Klassiek wonen, slapen in rust
Via de fraaie klassieke trapopgang is de ruime overloop te bereiken. Hier tref je een indrukwekkende hoofdslaapkamer, ruim 33 m² groot, voorheen waren dit 2 ruime slaapkamers. De kamer is voorzien van een dakkapel, vaste kasten en veel daglicht. De tweede slaapkamer is compact en geschikt als logeerkamer of werkruimte. De badkamer is royaal en compleet ingericht met ligbad, douche, tweede toilet en wastafel.
Een vlizotrap biedt toegang tot de bergzolder met stahoogte: ideaal voor opslag van seizoensspullen. De kelderruimte op de begane grond biedt nog eens extra bergruimte, praktisch en droog.
Een tuin om in weg te dromen
Rondom de woning ligt een prachtig aangelegde tuin – een groene oase in het hart van Reeuwijk. Bomen, heesters en slingerende paden maken van deze buitenruimte een plek die uitnodigt tot wandelen, lezen of simpelweg genieten van de rust. De brede oprit biedt ruimte aan meerdere auto’s en leidt naar twee geschakelde, vrijstaande stenen garages, beide voorzien van een op afstand bedienbare elektrische garagedeur.
De grootste garage beschikt over een zeer royale hobby-/bedrijfsruimte, ideaal voor opslag, het uitoefenen van een hobby of het stallen van meerdere auto’s. Direct eraan vast bevindt zich een tweede, afzonderlijke garage van circa 17 m², wat het geheel nog veelzijdiger maakt.
De tuin biedt volop privacy en vormt een heerlijke plek om lange zomerdagen door te brengen – in de zon of juist beschut onder de bomen.
Algemeen:
* Bouwjaar ca. 1920, woonoppervlakte ca. 145m², hobby-/bedrijfsruimte ca. 109m², garage ca. 17m², inhoud ca. 599m³;
* De woning en erf zijn vanwege schoonheid en cultuurhistorische waarde aangemerkt als Gemeentelijk Monument;
* Karakteristieke en monumentale vrijstaande chaletwoning met authentieke details zoals schuiframen, glas-in-lood en luiken;
* Fraai karakteristiek en in het oog springend torentje met piron en windvaan;
* Woning is goed onderhouden, schilderwerk uitgevoerd in 2024;
* Royale woonkamer en separate eetkamer met open haard;
* Praktische kelder en bergzolder;
* Royale vrijstaande garage en monumentale hobby-/bedrijfsruimte, ruime oprit met parkeergelegenheid voor meerdere auto’s;
* Centrale ligging in Reeuwijk, nabij voorzieningen en uitvalswegen en op zeer korte afstand van de Reeuwijkse Plassen;
* Wij verwijzen je tot slot naar de “nadere informatie bij het kopen van een onroerende zaak” welke in Move is toegevoegd aan de informatie bij deze woning.
Boer Makelaardij brengt je graag in contact met onze vaste hypotheekpartners Raymond Imbens of John Olsthoorn van Avant Groep Gouda voor een professioneel en onafhankelijk hypotheekadvies. Bel 085-8226222 of mail naar raymond@avantgroep.nl / john@avantgroep.nl
Lees meer
Wie op zoek is naar een monumentaal huis met een ziel, een geschiedenis én een indrukwekkende uitstraling, zal zich direct aangetrokken voelen tot Zoutmansweg 8 in Reeuwijk. Deze charmante vrijstaande chaletvilla met karakteristieke toren en markante gevel ademt sfeer en authenticiteit. Met een woonoppervlakte van circa 145 m², een kelder, bergzolder, royale garage, zeer royale monumentale hobby-/bedrijfsruimte en een fraai aangelegde tuin rondom, is dit een woning met uitzonderlijke mogelijkheden. De woning biedt een schitterend vrij uitzicht over de Breevaart.
De woning is goed onderhouden en liefdevol bewoond, en van binnen grotendeels nog in klassieke staat. Denk aan originele details, vaste stoffering, karakteristieke glas-in-loodramen en een indeling zoals men die vroeger maakte, ruim, logisch en met gevoel voor stijl.
Bouwjaar ca. 1920, woonoppervlakte ca. 145m², hobby-/bedrijfsruimte ca. 109m², garage ca. 17m², inhoud ca. 599m³.
Een entree met allure
Achter het smeedijzeren hek en de verzorgde voortuin kom je via entree aan de zijzijde binnen in een imposante hal met hoge plafonds en een klassieke trapopgang. Hier voel je het meteen: dit huis heeft iets bijzonders. Vanuit de hal is er tevens toegang tot de royale kelder welke perfect geschikt is als wijnkelder.
De woonkamer aan de voorzijde is sfeervol, met veel lichtinval, glas-in-loodramen en een open haard als blikvanger. Via ensuite deuren bereik je de achtergelegen eetkamer, die uitkijkt op de tuin en is voorzien van openslaande deuren en een marmeren schouw.
De keukenruimte is keurig en in lichte kleuren uitgevoerd, voorzien van een hoekopgestelde inrichting en apart kookgedeelte met afzuigschouw, voldoende vaste kasten en inbouwapparatuur. Aangrenzend bevindt zich een bijkeuken met plaats voor witgoed, c.v. installatie, een extra buitendeur en een separate toiletruimte.
Klassiek wonen, slapen in rust
Via de fraaie klassieke trapopgang is de ruime overloop te bereiken. Hier tref je een indrukwekkende hoofdslaapkamer, ruim 33 m² groot, voorheen waren dit 2 ruime slaapkamers. De kamer is voorzien van een dakkapel, vaste kasten en veel daglicht. De tweede slaapkamer is compact en geschikt als logeerkamer of werkruimte. De badkamer is royaal en compleet ingericht met ligbad, douche, tweede toilet en wastafel.
Een vlizotrap biedt toegang tot de bergzolder met stahoogte: ideaal voor opslag van seizoensspullen. De kelderruimte op de begane grond biedt nog eens extra bergruimte, praktisch en droog.
Een tuin om in weg te dromen
Rondom de woning ligt een prachtig aangelegde tuin – een groene oase in het hart van Reeuwijk. Bomen, heesters en slingerende paden maken van deze buitenruimte een plek die uitnodigt tot wandelen, lezen of simpelweg genieten van de rust. De brede oprit biedt ruimte aan meerdere auto’s en leidt naar twee geschakelde, vrijstaande stenen garages, beide voorzien van een op afstand bedienbare elektrische garagedeur.
De grootste garage beschikt over een zeer royale hobby-/bedrijfsruimte, ideaal voor opslag, het uitoefenen van een hobby of het stallen van meerdere auto’s. Direct eraan vast bevindt zich een tweede, afzonderlijke garage van circa 17 m², wat het geheel nog veelzijdiger maakt.
De tuin biedt volop privacy en vormt een heerlijke plek om lange zomerdagen door te brengen – in de zon of juist beschut onder de bomen.
Algemeen:
* Bouwjaar ca. 1920, woonoppervlakte ca. 145m², hobby-/bedrijfsruimte ca. 109m², garage ca. 17m², inhoud ca. 599m³;
* De woning en erf zijn vanwege schoonheid en cultuurhistorische waarde aangemerkt als Gemeentelijk Monument;
* Karakteristieke en monumentale vrijstaande chaletwoning met authentieke details zoals schuiframen, glas-in-lood en luiken;
* Fraai karakteristiek en in het oog springend torentje met piron en windvaan;
* Woning is goed onderhouden, schilderwerk uitgevoerd in 2024;
* Royale woonkamer en separate eetkamer met open haard;
* Praktische kelder en bergzolder;
* Royale vrijstaande garage en monumentale hobby-/bedrijfsruimte, ruime oprit met parkeergelegenheid voor meerdere auto’s;
* Centrale ligging in Reeuwijk, nabij voorzieningen en uitvalswegen en op zeer korte afstand van de Reeuwijkse Plassen;
* Wij verwijzen je tot slot naar de “nadere informatie bij het kopen van een onroerende zaak” welke in Move is toegevoegd aan de informatie bij deze woning.
Boer Makelaardij brengt je graag in contact met onze vaste hypotheekpartners Raymond Imbens of John Olsthoorn van Avant Groep Gouda voor een professioneel en onafhankelijk hypotheekadvies. Bel 085-8226222 of mail naar raymond@avantgroep.nl / john@avantgroep.nl
Kenmerken
Overdracht
Vraagprijs | € 1.085.000,- k.k. |
Status | beschikbaar |
Aanvaarding | in overleg |
Bouw
Soort woning | woonhuis |
Soort woonhuis | villa |
Type woonhuis | vrijstaande woning |
Aantal woonlagen | 3 |
Bouwvorm | bestaande bouw |
Bouwjaar | 1920 |
Huidige bestemming | woonruimte |
Onderhoud binnen | goed |
Onderhoud buiten | goed |
Voorzieningen | tv kabel, natuurlijke ventilatie |
Isolatie | vloerisolatie, grotendeels dubbelglas |
Energie
Verwarming | cv ketel |
Warm water | cv ketel |
C.V.-ketel | gas gestookte combi-ketel uit 2014 van Nefit, eigendom |
Oppervlakten en inhoud
Woonoppervlakte | 145 m² |
Perceeloppervlakte | 718 m² |
Inhoud | 599 m³ |
Inpandigeruimte oppervlakte | 14 m² |
Bergruimte oppervlakte | 126 m² |
Indeling
Aantal kamers | 3 |
Aantal slaapkamers | 2 |
Buitenruimte
Ligging | in woonwijk, vrij uitzicht |
Tuin | tuin rondom |
Overig
Parkeergelegenheid | op eigen terrein |
Schuur/berging | vrijstaand steen |