Vliegenstraat 35
2805 GG Gouda
beschikbaar
€ 350.000,- k.k.
Interesse in deze woning?
Omschrijving
Heb je altijd al willen wonen in de rustige en groene wijk Gouda Noord met volop licht, ruimte en een fijne tuin? Dan is deze charmante eindwoning aan de Vliegenstraat 35 in Gouda precies wat je zoekt. Deze verzorgde woning (circa 78 m² woonoppervlakte) ligt aan een autoluwe straat met vrij uitzicht over een groen plantsoen met speeltoestellen, ideaal voor gezinnen of liefhebbers van een rustige woonomgeving. Met drie slaapkamers, een sfeervolle woonkamer met open haard en een zonnige tuin biedt dit huis een solide basis om naar eigen smaak te moderniseren. Bouwjaar 1954, woonoppervlakte ca. 78m², vliering ca. 5m², berging ca. 5m², inhoud ca. 318m³.
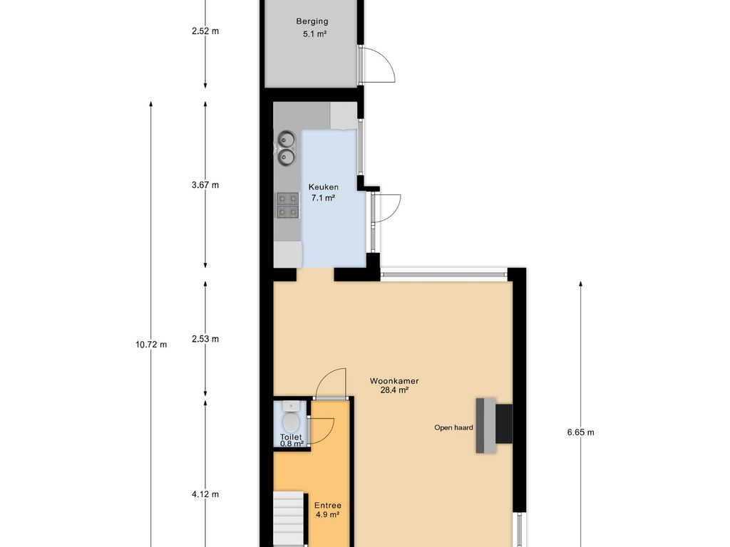
Begane grond
Via de nette voortuin bereik je de entree. In de hal bevinden zich de garderobe, trapkast, trapopgang en een separaat toilet. Zodra je de woonkamer betreedt, valt het licht op: grote ramen aan zowel de voor- als achterzijde zorgen de hele dag voor een prettige, natuurlijke lichtinval.
De woonkamer (ca. 28 m²) heeft een warme en uitnodigende sfeer dankzij de open haard met witgeschilderde bakstenen schouw en houten balk. De lichte wanden, plafonds en de vloer in natuurlijke houttint versterken het gevoel van ruimte. Aan de voorzijde is voldoende plek voor een gezellige zithoek met vrij uitzicht over het plantsoen, terwijl de achterzijde ruimte biedt voor een royale eettafel met zicht op de tuin.
De keuken (ca. 7 m²) bevindt zich aan de achterzijde en is ingericht in een praktische U-opstelling met crème fronten en een houten randafwerking. Er is een gaskookplaat, oven, afzuigkap, spoelbak en ruimte voor witgoed. Via de tuindeur loop je zo naar buiten.
Eerste verdieping
Op de eerste verdieping bevinden zich drie slaapkamers en de badkamer.
De hoofslaapkamer aan de achterzijde (ca. 12 m²) beschikt over een vaste kast en kijkt uit op de groene tuin. De tweede slaapkamer aan de voorzijde (ca. 9 m²) is eveneens ruim genoeg voor een tweepersoonsbed of thuiswerkplek. De derde kamer (ca. 5 m²) is compact, maar ideaal als logeer-, kinder- of werkkamer.
De badkamer (ca. 2 m²) is eenvoudig van opzet en voorzien van een douche en wastafel. Vanuit de overloop is via een vlizotrap de zolder bereikbaar.
Zolder / vliering
De vliering (ca. 4,6 m² gebruiksoppervlak) biedt praktische bergruimte voor koffers, seizoensspullen of archiefdozen. Ook bevindt zich hier de cv-installatie.
Tuin
De woning beschikt over zowel een ruime voor- als achtertuin, wat zorgt voor veel privacy en buitenruimte rondom het huis. De achtertuin is grotendeels bestraat en daarmee onderhoudsarm, met ruimte voor een tuinset, loungestoelen en plantenbakken. Langs de randen zorgen groene borders voor kleur en sfeer. Achterin staat een houten berging van ca. 5m², ideaal voor fietsen, gereedschap of hobbyspullen.
De tuin grenst aan een groen plantsoen met speeltoestellen, wat zorgt voor een vrij uitzicht en een veilige, kindvriendelijke omgeving. Ook de voortuin is keurig aangelegd en versterkt de verzorgde uitstraling van de woning.
Kortom
Vliegenstraat 35 is een fijne hoekwoning met karakter, veel licht en een heerlijke tuin. Een huis dat netjes is onderhouden en je de kans biedt om het stap voor stap te moderniseren tot je eigen, eigentijdse thuis. Een rustige ligging, volop groen, drie slaapkamers en een zonnige buitenruimte, dit is een plek waar je je direct thuis zult voelen.
Afmetingen:
Woonkamer ca. 6.65x3.50 m.
Keuken ca. 3.67x1.85 m.
Slaapkamer (1) ca. 4.05x2.99 m.
Slaapkamer (2) ca. 2.50x3.45 m.
Slaapkamer (3) ca. 2.56x2.19 m.
Badkamer ca. 2.42x0.85 m.
Berging ca. 2.52x2.05 m.
Algemeen:
* Bouwjaar 1954, woonoppervlakte ca. 78m², vliering ca. 5m², berging ca. 5m², inhoud ca. 318m³;
* Hoekwoning met veel licht en vrij uitzicht aan de achterzijde;
* Drie slaapkamers en bergzolder;
* Sfeervolle open haard in de woonkamer;
* Praktische keuken met tuindeur en karakteristieke tegels;
* Ruime voor- en achtertuin met houten berging;
* Gelegen aan een rustige straat nabij scholen, sportvelden en uitvalswegen;
* Degelijke woning met volop mogelijkheden om naar eigen smaak te moderniseren;
* Wij verwijzen je tot slot naar de “nadere informatie bij het kopen van een onroerende zaak” welke in Move is toegevoegd aan de informatie bij deze woning.
Boer Makelaardij kan jou in contact brengen met onze vaste partner Raymond Imbens of John Olsthoorn van Avant Groep Gouda voor een professioneel, onafhankelijk hypotheekadvies, 085-8226222, raymond@avantgroep.nl/john@avantgroep.nl.
Lees meer
Begane grond
Via de nette voortuin bereik je de entree. In de hal bevinden zich de garderobe, trapkast, trapopgang en een separaat toilet. Zodra je de woonkamer betreedt, valt het licht op: grote ramen aan zowel de voor- als achterzijde zorgen de hele dag voor een prettige, natuurlijke lichtinval.
De woonkamer (ca. 28 m²) heeft een warme en uitnodigende sfeer dankzij de open haard met witgeschilderde bakstenen schouw en houten balk. De lichte wanden, plafonds en de vloer in natuurlijke houttint versterken het gevoel van ruimte. Aan de voorzijde is voldoende plek voor een gezellige zithoek met vrij uitzicht over het plantsoen, terwijl de achterzijde ruimte biedt voor een royale eettafel met zicht op de tuin.
De keuken (ca. 7 m²) bevindt zich aan de achterzijde en is ingericht in een praktische U-opstelling met crème fronten en een houten randafwerking. Er is een gaskookplaat, oven, afzuigkap, spoelbak en ruimte voor witgoed. Via de tuindeur loop je zo naar buiten.
Eerste verdieping
Op de eerste verdieping bevinden zich drie slaapkamers en de badkamer.
De hoofslaapkamer aan de achterzijde (ca. 12 m²) beschikt over een vaste kast en kijkt uit op de groene tuin. De tweede slaapkamer aan de voorzijde (ca. 9 m²) is eveneens ruim genoeg voor een tweepersoonsbed of thuiswerkplek. De derde kamer (ca. 5 m²) is compact, maar ideaal als logeer-, kinder- of werkkamer.
De badkamer (ca. 2 m²) is eenvoudig van opzet en voorzien van een douche en wastafel. Vanuit de overloop is via een vlizotrap de zolder bereikbaar.
Zolder / vliering
De vliering (ca. 4,6 m² gebruiksoppervlak) biedt praktische bergruimte voor koffers, seizoensspullen of archiefdozen. Ook bevindt zich hier de cv-installatie.
Tuin
De woning beschikt over zowel een ruime voor- als achtertuin, wat zorgt voor veel privacy en buitenruimte rondom het huis. De achtertuin is grotendeels bestraat en daarmee onderhoudsarm, met ruimte voor een tuinset, loungestoelen en plantenbakken. Langs de randen zorgen groene borders voor kleur en sfeer. Achterin staat een houten berging van ca. 5m², ideaal voor fietsen, gereedschap of hobbyspullen.
De tuin grenst aan een groen plantsoen met speeltoestellen, wat zorgt voor een vrij uitzicht en een veilige, kindvriendelijke omgeving. Ook de voortuin is keurig aangelegd en versterkt de verzorgde uitstraling van de woning.
Kortom
Vliegenstraat 35 is een fijne hoekwoning met karakter, veel licht en een heerlijke tuin. Een huis dat netjes is onderhouden en je de kans biedt om het stap voor stap te moderniseren tot je eigen, eigentijdse thuis. Een rustige ligging, volop groen, drie slaapkamers en een zonnige buitenruimte, dit is een plek waar je je direct thuis zult voelen.
Afmetingen:
Woonkamer ca. 6.65x3.50 m.
Keuken ca. 3.67x1.85 m.
Slaapkamer (1) ca. 4.05x2.99 m.
Slaapkamer (2) ca. 2.50x3.45 m.
Slaapkamer (3) ca. 2.56x2.19 m.
Badkamer ca. 2.42x0.85 m.
Berging ca. 2.52x2.05 m.
Algemeen:
* Bouwjaar 1954, woonoppervlakte ca. 78m², vliering ca. 5m², berging ca. 5m², inhoud ca. 318m³;
* Hoekwoning met veel licht en vrij uitzicht aan de achterzijde;
* Drie slaapkamers en bergzolder;
* Sfeervolle open haard in de woonkamer;
* Praktische keuken met tuindeur en karakteristieke tegels;
* Ruime voor- en achtertuin met houten berging;
* Gelegen aan een rustige straat nabij scholen, sportvelden en uitvalswegen;
* Degelijke woning met volop mogelijkheden om naar eigen smaak te moderniseren;
* Wij verwijzen je tot slot naar de “nadere informatie bij het kopen van een onroerende zaak” welke in Move is toegevoegd aan de informatie bij deze woning.
Boer Makelaardij kan jou in contact brengen met onze vaste partner Raymond Imbens of John Olsthoorn van Avant Groep Gouda voor een professioneel, onafhankelijk hypotheekadvies, 085-8226222, raymond@avantgroep.nl/john@avantgroep.nl.
Kenmerken
Overdracht
| Vraagprijs | € 350.000,- k.k. |
| Status | beschikbaar |
| Aanvaarding | in overleg |
Bouw
| Soort woning | woonhuis |
| Soort woonhuis | eengezinswoning |
| Type woonhuis | eindwoning |
| Aantal woonlagen | 3 |
| Bouwvorm | bestaande bouw |
| Bouwjaar | 1954 |
| Huidige bestemming | woonruimte |
| Onderhoud binnen | redelijk |
| Onderhoud buiten | goed |
| Voorzieningen | glasvezel kabel, natuurlijke ventilatie |
| Isolatie | muurisolatie, dubbel glas |
Energie
| Energielabel | D |
| Verwarming | cv ketel |
| Warm water | cv ketel |
| C.V.-ketel | gas gestookte combi-ketel uit 2021 van Remeha, eigendom |
Oppervlakten en inhoud
| Woonoppervlakte | 78 m² |
| Perceeloppervlakte | 144 m² |
| Inhoud | 318 m³ |
| Inpandigeruimte oppervlakte | 5 m² |
| Bergruimte oppervlakte | 5 m² |
Indeling
| Aantal kamers | 4 |
| Aantal slaapkamers | 3 |
Buitenruimte
| Ligging | aan rustige weg, in woonwijk |
| Tuin | achtertuin met een oppervlakte van 60 m² en is gelegen op het westen |
Overig
| Parkeergelegenheid | openbaar parkeren |
| Schuur/berging | aangebouwd hout |




































