Van Staverenstraat 20a
2811 TL Reeuwijk
beschikbaar
€ 415.000,- k.k.
Interesse in deze woning?
Omschrijving
Zoek jij een woning die ruimte, comfort én een fijne sfeer perfect combineert? Dan zal deze verrassend ruime maisonnette woning in Reeuwijk je absoluut aanspreken. Met circa 108 m² woonoppervlakte, vier slaapkamers en een groot dakterras met vrij uitzicht biedt deze woning alles wat wonen plezierig maakt. De moderne afwerking, de royale lichtinval en de praktische indeling zorgen voor een heerlijk thuisgevoel. Bovendien liggen dagelijkse voorzieningen zoals winkels, scholen, openbaar vervoer en uitvalswegen allemaal binnen handbereik. Een ideale woning voor iedereen die houdt van licht, ruimte en gemak.
Bouwjaar 1955, woonoppervlakte ca. 108 m², dakterras ca. 25 m², balkon ca. 3 m², berging ca. 1 m².
Eerste verdieping
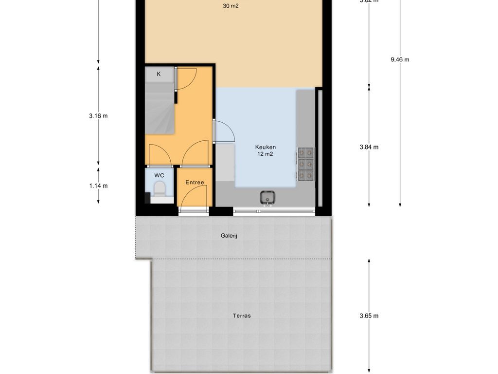
Via de entree kom je binnen in de ruime hal met meterkast, trapopgang en een modern separaat toilet. Vanuit hier loopt u door naar de sfeervolle woonkeuken van circa 12 m². Deze keuken is een echte blikvanger: strak, licht en voorzien van veel kastruimte, brede lades, een lang werkblad en moderne apparatuur, waaronder een groot gasfornuis met afzuigkap, oven, combimagnetron, koelkast, vriezer en vaatwasser. Dankzij het brede raam is dit een heerlijke lichte plek die uitnodigt tot koken en gezellig tafelen.
Aangrenzend vind je de royale woonkamer van circa 30 m², stijlvol afgewerkt met een houten laminaatvloer, een donkere accentmuur en grote raampartijen die voor een overvloed aan daglicht zorgen. De ruimte biedt volop mogelijkheden voor een comfortabele zit- én eethoek. Een bijzonder element is de indrukwekkende hoge boekenkast met ladder: zowel sfeervol als functioneel, een echte eyecatcher in de ruimte.
Eerste verdieping
Op de eerste verdieping bevinden zich vier slaapkamers, elk met een eigen karakter. Aan de achterzijde ligt een ruime slaapkamer van circa 15 m², voorzien van een grote raampartij. Daarnaast bevindt zich een tweede slaapkamer (ca. 7 m²) met toegang tot het balkon, perfect als werk-, logeer- of kinderkamer. Aan de voorzijde liggen nog twee kamers van 11 m² en 6 m², ideaal voor verschillende woonwensen.
De moderne badkamer is uitgerust met een ruime inloopdouche met glazen wand, een strak wastafelmeubel en een tweede toilet. De combinatie van zwarte en witte tegels zorgt voor een luxe, tijdloze uitstraling. Verder beschikt deze verdieping over een separate toiletruimte en een praktische bergruimte met CV-opstelling.
Terras
De woning heeft een ruim en zonnig dakterras (circa 25 m²), gelegen direct aan de woonverdieping. Hier geniet u van veel privacy en een vrij uitzicht over de omgeving. Dankzij de royale opzet is er voldoende ruimte voor een lounge- of eethoek. Het terras is sfeervol ingericht, onderhoudsvriendelijk en voorzien van een handige bergkast.
Algemeen:
* Bouwjaar 1955, woonoppervlakte ca. 108 m², dakterras ca. 25 m², balkon ca. 3 m², berging ca. 1 m²;
* Instapklaar en modern afgewerkt;
* Voorzien van energielabel C;
* Voorzien van 4 slaapkamers;
* Groot dakterras met vrij uitzicht;
* Nabij scholen, winkels en openbaar vervoer;
* Centrale ligging in Reeuwijk;
* Het betreft een slapende VvE; Er is wel een maandelijkse bijdrage van €50,= per maand m.b.t. gemeenschappelijke verlichting en kleine onderhoudswerkzaamheden van het trappenhuis en galerij;
* Wij verwijzen je tot slot naar de “nadere informatie bij het kopen van een onroerende zaak” welke in Move is toegevoegd aan de informatie bij deze woning.
Boer Makelaardij kan jou in contact brengen met onze vaste partner Raymond Imbens of John Olsthoorn van Avant Groep Gouda voor een professioneel, onafhankelijk hypotheekadvies, 085-8226222, raymond@avantgroep.nl/john@avantgroep.nl.
Lees meer
Bouwjaar 1955, woonoppervlakte ca. 108 m², dakterras ca. 25 m², balkon ca. 3 m², berging ca. 1 m².
Eerste verdieping
Via de entree kom je binnen in de ruime hal met meterkast, trapopgang en een modern separaat toilet. Vanuit hier loopt u door naar de sfeervolle woonkeuken van circa 12 m². Deze keuken is een echte blikvanger: strak, licht en voorzien van veel kastruimte, brede lades, een lang werkblad en moderne apparatuur, waaronder een groot gasfornuis met afzuigkap, oven, combimagnetron, koelkast, vriezer en vaatwasser. Dankzij het brede raam is dit een heerlijke lichte plek die uitnodigt tot koken en gezellig tafelen.
Aangrenzend vind je de royale woonkamer van circa 30 m², stijlvol afgewerkt met een houten laminaatvloer, een donkere accentmuur en grote raampartijen die voor een overvloed aan daglicht zorgen. De ruimte biedt volop mogelijkheden voor een comfortabele zit- én eethoek. Een bijzonder element is de indrukwekkende hoge boekenkast met ladder: zowel sfeervol als functioneel, een echte eyecatcher in de ruimte.
Eerste verdieping
Op de eerste verdieping bevinden zich vier slaapkamers, elk met een eigen karakter. Aan de achterzijde ligt een ruime slaapkamer van circa 15 m², voorzien van een grote raampartij. Daarnaast bevindt zich een tweede slaapkamer (ca. 7 m²) met toegang tot het balkon, perfect als werk-, logeer- of kinderkamer. Aan de voorzijde liggen nog twee kamers van 11 m² en 6 m², ideaal voor verschillende woonwensen.
De moderne badkamer is uitgerust met een ruime inloopdouche met glazen wand, een strak wastafelmeubel en een tweede toilet. De combinatie van zwarte en witte tegels zorgt voor een luxe, tijdloze uitstraling. Verder beschikt deze verdieping over een separate toiletruimte en een praktische bergruimte met CV-opstelling.
Terras
De woning heeft een ruim en zonnig dakterras (circa 25 m²), gelegen direct aan de woonverdieping. Hier geniet u van veel privacy en een vrij uitzicht over de omgeving. Dankzij de royale opzet is er voldoende ruimte voor een lounge- of eethoek. Het terras is sfeervol ingericht, onderhoudsvriendelijk en voorzien van een handige bergkast.
Algemeen:
* Bouwjaar 1955, woonoppervlakte ca. 108 m², dakterras ca. 25 m², balkon ca. 3 m², berging ca. 1 m²;
* Instapklaar en modern afgewerkt;
* Voorzien van energielabel C;
* Voorzien van 4 slaapkamers;
* Groot dakterras met vrij uitzicht;
* Nabij scholen, winkels en openbaar vervoer;
* Centrale ligging in Reeuwijk;
* Het betreft een slapende VvE; Er is wel een maandelijkse bijdrage van €50,= per maand m.b.t. gemeenschappelijke verlichting en kleine onderhoudswerkzaamheden van het trappenhuis en galerij;
* Wij verwijzen je tot slot naar de “nadere informatie bij het kopen van een onroerende zaak” welke in Move is toegevoegd aan de informatie bij deze woning.
Boer Makelaardij kan jou in contact brengen met onze vaste partner Raymond Imbens of John Olsthoorn van Avant Groep Gouda voor een professioneel, onafhankelijk hypotheekadvies, 085-8226222, raymond@avantgroep.nl/john@avantgroep.nl.
Kenmerken
Overdracht
| Vraagprijs | € 415.000,- k.k. |
| Status | beschikbaar |
| Aanvaarding | in overleg |
| VVE checklist | niet aanwezig |
Bouw
| Soort woning | appartement |
| Soort appartement | maisonnette |
| Aantal woonlagen | 2 |
| Woonlaag | 1 |
| Bouwvorm | bestaande bouw |
| Bouwjaar | 1955 |
| Open portiek | nee |
| Huidige bestemming | woonruimte |
| Onderhoud binnen | goed |
| Onderhoud buiten | goed |
| Voorzieningen | mechanische ventilatie, rolluiken, tv kabel, airconditioning |
| Isolatie | dubbel glas |
Energie
| Energielabel | C |
| Verwarming | cv ketel |
| Warm water | cv ketel |
| C.V.-ketel | gas gestookte combi-ketel uit 2017 van Remeha, eigendom |
Oppervlakten en inhoud
| Woonoppervlakte | 108 m² |
| Bergruimte oppervlakte | 1 m² |
Indeling
| Aantal kamers | 5 |
| Aantal slaapkamers | 4 |
Buitenruimte
| Ligging | in centrum, in woonwijk |
| Tuin | zonneterras met een oppervlakte van 21 m² |
Overig
| Garage | geen garage |
| Parkeergelegenheid | openbaar parkeren |
| Schuur/berging | inpandig |













































