Terwenstraat 32
2804 JW Gouda
beschikbaar
€ 469.000,- k.k.
Interesse in deze woning?
Omschrijving
Heb jij altijd al willen wonen in een groene, rustige omgeving met een tuin direct aan het water? Dan zou deze ruime en goed onderhouden uitgebouwde hoekeengezinswoning aan de Terwenstraat 32 met energielabel A zomaar jouw nieuwe thuis kunnen zijn. Met een woonoppervlakte van circa 111m2, drie woonlagen, vier slaapkamers, een lichte woonkamer en een royale vergrote zolderverdieping biedt deze woning alle ruimte die je zoekt. Dankzij de grote raampartijen en de gunstige ligging geniet je overal in huis van veel licht en een prachtig uitzicht op het groen. Een ideale plek voor gezinnen en voor iedereen die comfortabel en sfeervol wil wonen in Gouda nabij alle dagelijkse voorzieningen.
Bouwjaar 1984, woonoppervlakte ca. 111m², berging ca. 6m², inhoud ca. 411m³.
Begane grond
Via de voortuin kom je binnen in de hal, die is voorzien van een grijze plavuizenvloer. Vanuit hier heb je toegang tot het toilet, de meterkast, de trapopgang en de uitgebouwde woonkamer. De woonkamer strekt zich uit over de volledige diepte van de woning en voelt ruim en licht dankzij de grote ramen aan de zij- en achterzijde en de deur naar de tuin. De fraaie massief Jatoba houten vloer geeft de ruimte een warme luxe sfeer. De begane grond is in 2020 uitgebouwd en afgewerkt.
Aan de voorzijde vind je de keuken, uitgevoerd in een lichte kleurstelling en voorzien van alle nodige inbouwapparatuur, zoals een gasfornuis, combimagnetron, koelkast, vriezer en veel kastruimte. Door het grote raam kijk je uit op de voortuin en de eigen parkeerplaats. Daarnaast heb je vanuit de voortuin toegang tot de berging, ideaal voor fietsen, gereedschap en extra opslag.
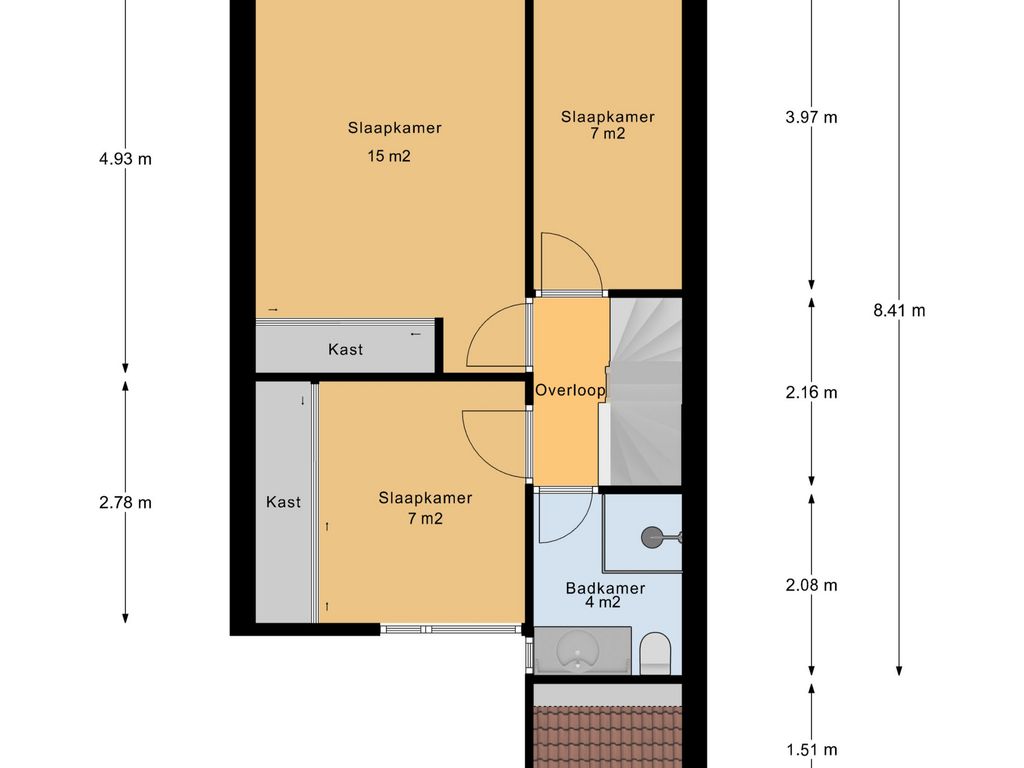
Eerste verdieping
Op de eerste verdieping liggen drie slaapkamers en de badkamer. De grootste slaapkamer, aan de achterzijde, heeft een prettig formaat van ongeveer 15 m². Daarnaast is er een slaapkamer van circa 7 m², perfect als werk-, kinder- of hobbykamer. Aan de voorzijde vind je een extra slaapkamer met vaste kast en de badkamer. De badkamer is praktisch ingedeeld en voorzien van een douche, wastafelmeubel en toilet. Grote ramen zorgen ook hier voor veel
licht.
Tweede verdieping
Op de tweede verdieping bevindt zich een ruime vierde slaapkamer van circa 12 m², met zowel een dakraam als een dakuitbouw (2024). Hierdoor voelt de ruimte licht en royaal aan. Dit is een ideale hoofd- of logeerkamer. Op de overloop vind je de wasmachineaansluiting, de CV-opstelling (2019) en extra bergruimte onder de schuine plafonds. Een zeer praktische verdieping die de woning nóg meer mogelijkheden geeft.
Tuin
De achtertuin is absoluut een van de grootste pluspunten van de woning. Vanuit de woonkamer stap je zo het terras op, omringd door groen. De tuin grenst direct aan het water, waardoor je hier heerlijk tot rust kunt komen, buiten kunt eten of gewoon kunt genieten van de natuur om je heen. Ook aan de voorzijde ligt een nette tuin met ruimte voor een auto (laadpaal op eigen terrein is mogelijk).
Algemeen:
* Bouwjaar 1984, woonoppervlakte ca. 111m², berging ca. 6m², inhoud ca. 411m³;
* Ruime eengezinswoning met drie verdiepingen;
* Goede staat van onderhoud binnen- en buitenzijde;
* Voorzien van energielabel A (dak-, muur-, vloerisolatie en deels HR++ glas en dubbel glas;
* Vier slaapkamers;
* Lichte en diepe uitgebouwde woonkamer (2020;
* Dakuitbouw 2024 met kunststof pui;
* Totaal 12 zonnepanelen 6 zonnepanelen uit uit 2012 en 6 uit 2023, nieuwe omvormer 2023;
* Achtertuin aan het water;
* Berging aan de voorzijde;
* Parkeren op eigen terrein;
* Gelegen in een groene en rustige woonwijk;
* Nabij scholen, winkels, speelvoorzieningen en uitvalswegen;
* Wij verwijzen je tot slot naar de “nadere informatie bij het kopen van een onroerende zaak” welke in Move is toegevoegd aan de informatie bij deze woning.
Bewoners aan het woord:
"Een beetje tot onze verbazing zetten wij ons huis te koop. Wij zijn de eerste bewoners van deze woning en hebben hier altijd met plezier gewoond. Inderdaad, te koop, tot onze eigen verbazing, want het was altijd de bedoeling om hier samen oud te worden. Maar soms loopt het leven toch anders als gedacht, na lang en rijp beraad hebben wij uiteindelijk toch besloten de Randstad te verlaten. Omdat het niet de bedoeling was te verhuizen is er de laatste jaren veel geïnvesteerd in onze woning. In 2020 hebben wij op de begane grond een uitbouw van 15m2 laten plaatsen. Hierbij is gelijk de hele beneden verdieping, hal en overloop gemoderniseerd, van stucwerk voorzien en gesaust. In 2023 is een royale dakopbouw geplaatst, met zeer strakke aftimmering.
De gehele zolderverdieping is gelijk voorzien van dak- en muurisolatie volgens hedendaagse norm.
Ook hier weer is alles gestukt en gesaust. Kortom, een zeer verzorgde woning.
De woning is gelegen in een rustig wijkje, met alleen bestemmingsverkeer. De voorzijde van de woning kijkt gunstig precies tussen twee woonblokken door. Aan de achterzijde kijk je vrij uit over diverse waterpartijen en groenstroken. De eerste bebouwing staat pas op een 50 meter afstand.
Alle voorzieningen, zoals medische zorg, supermarkten, sportvoorzieningen, scholen, of het uitgaansleven in de Goudse binnenstad zijn op loop c.q. fietsafstand. Maar ook het Reeuwijkse plassengebied ligt op loopafstand.
Gezinnen die al langer de huizenmarkt in de gaten houden, hebben misschien opgemerkt, dat hier al diverse huizen te koop hebben gestaan. Dat klopt. De straat is in snel tempo aan het verjongen.
Diverse bewoners die hier al jaren woonden zijn vanwege hun leeftijd naar een appartement verhuisd.
Met de nodige weemoed vertrekken wij uit “ons” wijkje. Wij wensen de komende bewoners veel woonplezier toe."
Boer Makelaardij kan jou in contact brengen met onze vaste partner Raymond Imbens of John Olsthoorn van Avant Groep Gouda voor een professioneel, onafhankelijk hypotheekadvies, 085-8226222, raymond@avantgroep.nl/john@avantgroep.nl.
Lees meer
Bouwjaar 1984, woonoppervlakte ca. 111m², berging ca. 6m², inhoud ca. 411m³.
Begane grond
Via de voortuin kom je binnen in de hal, die is voorzien van een grijze plavuizenvloer. Vanuit hier heb je toegang tot het toilet, de meterkast, de trapopgang en de uitgebouwde woonkamer. De woonkamer strekt zich uit over de volledige diepte van de woning en voelt ruim en licht dankzij de grote ramen aan de zij- en achterzijde en de deur naar de tuin. De fraaie massief Jatoba houten vloer geeft de ruimte een warme luxe sfeer. De begane grond is in 2020 uitgebouwd en afgewerkt.
Aan de voorzijde vind je de keuken, uitgevoerd in een lichte kleurstelling en voorzien van alle nodige inbouwapparatuur, zoals een gasfornuis, combimagnetron, koelkast, vriezer en veel kastruimte. Door het grote raam kijk je uit op de voortuin en de eigen parkeerplaats. Daarnaast heb je vanuit de voortuin toegang tot de berging, ideaal voor fietsen, gereedschap en extra opslag.
Eerste verdieping
Op de eerste verdieping liggen drie slaapkamers en de badkamer. De grootste slaapkamer, aan de achterzijde, heeft een prettig formaat van ongeveer 15 m². Daarnaast is er een slaapkamer van circa 7 m², perfect als werk-, kinder- of hobbykamer. Aan de voorzijde vind je een extra slaapkamer met vaste kast en de badkamer. De badkamer is praktisch ingedeeld en voorzien van een douche, wastafelmeubel en toilet. Grote ramen zorgen ook hier voor veel
licht.
Tweede verdieping
Op de tweede verdieping bevindt zich een ruime vierde slaapkamer van circa 12 m², met zowel een dakraam als een dakuitbouw (2024). Hierdoor voelt de ruimte licht en royaal aan. Dit is een ideale hoofd- of logeerkamer. Op de overloop vind je de wasmachineaansluiting, de CV-opstelling (2019) en extra bergruimte onder de schuine plafonds. Een zeer praktische verdieping die de woning nóg meer mogelijkheden geeft.
Tuin
De achtertuin is absoluut een van de grootste pluspunten van de woning. Vanuit de woonkamer stap je zo het terras op, omringd door groen. De tuin grenst direct aan het water, waardoor je hier heerlijk tot rust kunt komen, buiten kunt eten of gewoon kunt genieten van de natuur om je heen. Ook aan de voorzijde ligt een nette tuin met ruimte voor een auto (laadpaal op eigen terrein is mogelijk).
Algemeen:
* Bouwjaar 1984, woonoppervlakte ca. 111m², berging ca. 6m², inhoud ca. 411m³;
* Ruime eengezinswoning met drie verdiepingen;
* Goede staat van onderhoud binnen- en buitenzijde;
* Voorzien van energielabel A (dak-, muur-, vloerisolatie en deels HR++ glas en dubbel glas;
* Vier slaapkamers;
* Lichte en diepe uitgebouwde woonkamer (2020;
* Dakuitbouw 2024 met kunststof pui;
* Totaal 12 zonnepanelen 6 zonnepanelen uit uit 2012 en 6 uit 2023, nieuwe omvormer 2023;
* Achtertuin aan het water;
* Berging aan de voorzijde;
* Parkeren op eigen terrein;
* Gelegen in een groene en rustige woonwijk;
* Nabij scholen, winkels, speelvoorzieningen en uitvalswegen;
* Wij verwijzen je tot slot naar de “nadere informatie bij het kopen van een onroerende zaak” welke in Move is toegevoegd aan de informatie bij deze woning.
Bewoners aan het woord:
"Een beetje tot onze verbazing zetten wij ons huis te koop. Wij zijn de eerste bewoners van deze woning en hebben hier altijd met plezier gewoond. Inderdaad, te koop, tot onze eigen verbazing, want het was altijd de bedoeling om hier samen oud te worden. Maar soms loopt het leven toch anders als gedacht, na lang en rijp beraad hebben wij uiteindelijk toch besloten de Randstad te verlaten. Omdat het niet de bedoeling was te verhuizen is er de laatste jaren veel geïnvesteerd in onze woning. In 2020 hebben wij op de begane grond een uitbouw van 15m2 laten plaatsen. Hierbij is gelijk de hele beneden verdieping, hal en overloop gemoderniseerd, van stucwerk voorzien en gesaust. In 2023 is een royale dakopbouw geplaatst, met zeer strakke aftimmering.
De gehele zolderverdieping is gelijk voorzien van dak- en muurisolatie volgens hedendaagse norm.
Ook hier weer is alles gestukt en gesaust. Kortom, een zeer verzorgde woning.
De woning is gelegen in een rustig wijkje, met alleen bestemmingsverkeer. De voorzijde van de woning kijkt gunstig precies tussen twee woonblokken door. Aan de achterzijde kijk je vrij uit over diverse waterpartijen en groenstroken. De eerste bebouwing staat pas op een 50 meter afstand.
Alle voorzieningen, zoals medische zorg, supermarkten, sportvoorzieningen, scholen, of het uitgaansleven in de Goudse binnenstad zijn op loop c.q. fietsafstand. Maar ook het Reeuwijkse plassengebied ligt op loopafstand.
Gezinnen die al langer de huizenmarkt in de gaten houden, hebben misschien opgemerkt, dat hier al diverse huizen te koop hebben gestaan. Dat klopt. De straat is in snel tempo aan het verjongen.
Diverse bewoners die hier al jaren woonden zijn vanwege hun leeftijd naar een appartement verhuisd.
Met de nodige weemoed vertrekken wij uit “ons” wijkje. Wij wensen de komende bewoners veel woonplezier toe."
Boer Makelaardij kan jou in contact brengen met onze vaste partner Raymond Imbens of John Olsthoorn van Avant Groep Gouda voor een professioneel, onafhankelijk hypotheekadvies, 085-8226222, raymond@avantgroep.nl/john@avantgroep.nl.
Kenmerken
Overdracht
| Vraagprijs | € 469.000,- k.k. |
| Status | beschikbaar |
| Aanvaarding | in overleg |
Bouw
| Soort woning | woonhuis |
| Soort woonhuis | eengezinswoning |
| Type woonhuis | eindwoning |
| Aantal woonlagen | 3 |
| Bouwvorm | bestaande bouw |
| Bouwjaar | 1984 |
| Huidige bestemming | woonruimte |
| Onderhoud binnen | goed |
| Onderhoud buiten | goed |
| Voorzieningen | mechanische ventilatie, tv kabel, glasvezel kabel, zonnepanelen |
| Isolatie | dakisolatie, muurisolatie, vloerisolatie, dubbel glas |
Energie
| Energielabel | A |
| Verwarming | cv ketel |
| Warm water | cv ketel |
| C.V.-ketel | gas gestookte cv-ketel uit 2019 van Nefit, eigendom |
Oppervlakten en inhoud
| Woonoppervlakte | 111 m² |
| Perceeloppervlakte | 140 m² |
| Inhoud | 411 m³ |
| Inpandigeruimte oppervlakte | 6 m² |
Indeling
| Aantal kamers | 5 |
| Aantal slaapkamers | 4 |
Buitenruimte
| Ligging | aan rustige weg, in centrum |
| Tuin | achtertuin met een oppervlakte van 33 m² en is gelegen op het zuidoosten |
Overig
| Garage | geen garage |
| Parkeergelegenheid | op eigen terrein |
| Schuur/berging | aangebouwd steen |








































