Reigerstraat 10
2851 VN Haastrecht
beschikbaar
€ 375.000,- k.k.
Interesse in deze woning?
Omschrijving
In een rustige en kindvriendelijke woonwijk in Haastrecht staat deze verzorgde tussenwoning met circa 83 m² woonoppervlakte. De woning beschikt over een praktische indeling, een lichte woonkamer, een nette keuken, meerdere slaapkamers, een ruime voortuin en een fijne zeer ruime achtertuin met berging en achterom. Dankzij de zolderverdieping met dakkapel is er extra ruimte gerealiseerd, geschikt als slaapkamer, werk- of hobbyruimte. Een comfortabele woning met potentie, gelegen op korte afstand van voorzieningen, scholen en uitvalswegen.
Bouwjaar 1961, woonoppervlakte ca. 83m², berging ca. 6m², inhoud ca. 294m³.
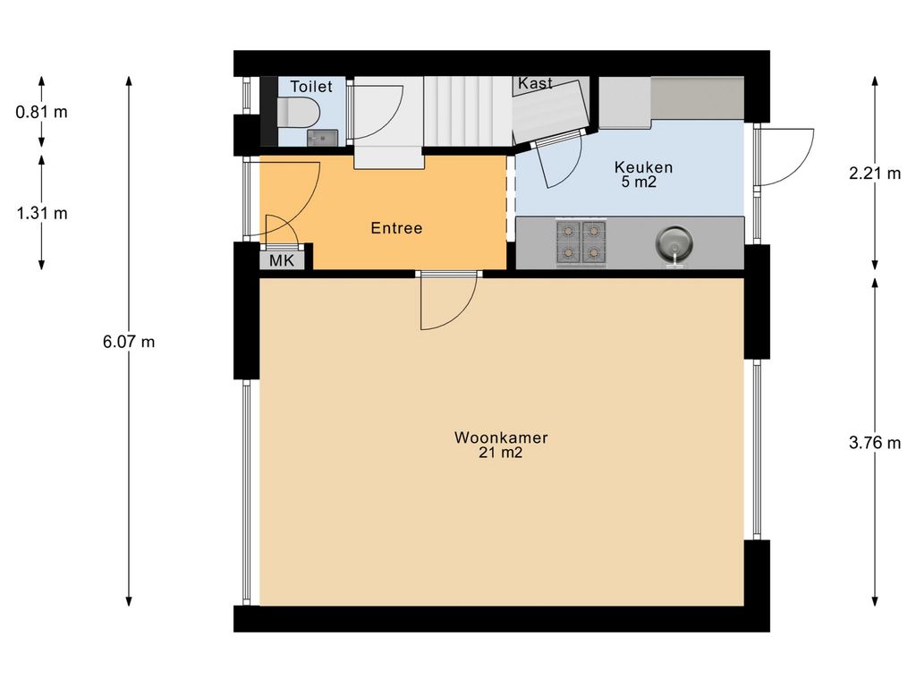
Begane grond
Via de voortuin bereik je de entree van de woning. In de hal bevinden zich de meterkast, het toilet en de trapopgang naar de eerste verdieping. Vanuit de hal is er toegang tot de woonkamer en de keuken.
De woonkamer is prettig licht dankzij de grote raampartij aan de voorzijde en biedt voldoende ruimte voor zowel een zit- als eethoek. De neutrale afwerking zorgt voor een rustige basis die eenvoudig aan te passen is aan een eigen woonstijl.
Aan de achterzijde van de woning bevindt zich de keuken, uitgevoerd in een praktische opstelling met diverse kastruimte en inbouwapparatuur, waaronder een koelvriescombinatie, gaskookplaat, afzuigkap en spoelbak. Vanuit de keuken de kelderkast bereikbaar en is er directe toegang tot de achtertuin.
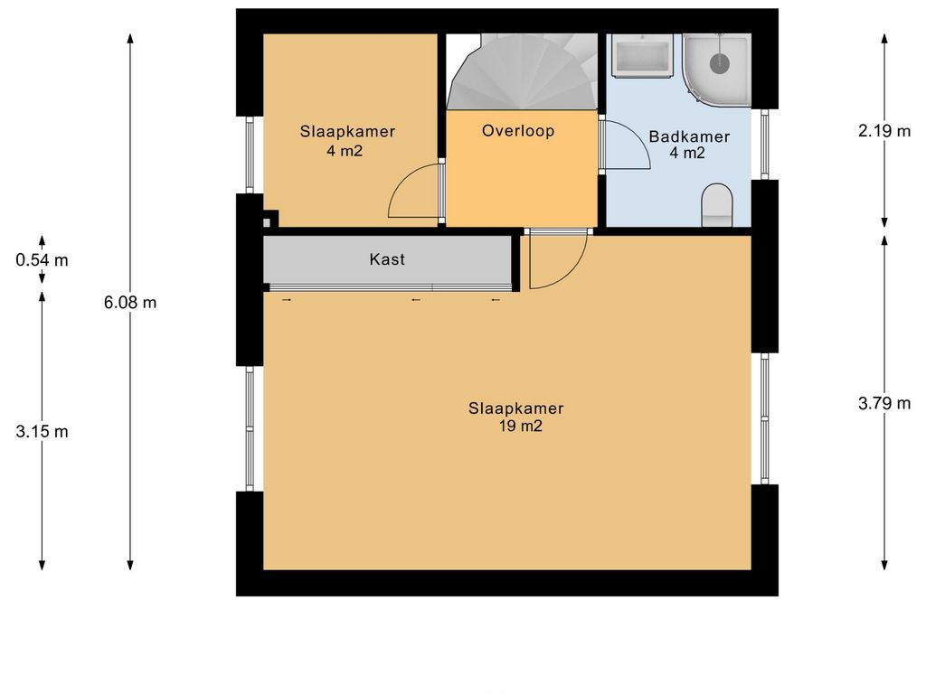
Eerste verdieping
De overloop geeft toegang tot twee slaapkamers en de badkamer.
De grootste slaapkamer bevindt over de hele lengte van de woning (voorheen 2 kamers) en beschikt over een vaste kast, wat zorgt voor extra bergruimte. De tweede slaapkamer ligt aan de voorzijde en is geschikt als kinder-, werk- of logeerkamer.
De badkamer is functioneel ingericht en voorzien van een douchecabine, handdoekenradiator, wastafelmeubel, spiegelkast en toilet. Dankzij het raam is er natuurlijke ventilatie en daglicht.
Tweede verdieping
Via een vaste trap is de zolderverdieping bereikbaar. Op de overloop bevinden zich de aansluitingen voor de wasapparatuur, de VHR cv combiketel en extra bergruimte achter de knieschotten.
De zolderkamer is voorzien van een dakkapel aan de achterzijde, wat zorgt voor veel licht en extra stahoogte. Deze ruimte is uitstekend te gebruiken als derde slaapkamer, thuiswerkplek of hobbyruimte.
Tuin
De achtertuin is verzorgd aangelegd en biedt voldoende ruimte om te ontspannen en buiten te zitten. Er is een vaste plantenbak. Achter in de tuin staat een stenen berging voor fietsen en tuingereedschap. Daarnaast is er een praktische achterom aanwezig.
Bijzonderheden
* Bouwjaar 1961, woonoppervlakte ca. 83m², berging ca. 6m², inhoud ca. 294m³;
* Tussenwoning in rustige woonstraat vlakbij een park;
* Kindvriendelijke woonomgeving met veel ruimte om buiten te spelen;
* goede staat van onderhoud binnen- en buitenzijde;
* De woning is voorzien van kunststof kozijnen met dubbel glas, dakisolatie en spouwmuurisolatie;
* Wij verwijzen je tot slot naar de “nadere informatie bij het kopen van een onroerende zaak” welke in Move is toegevoegd aan de informatie bij deze woning.
Boer Makelaardij kan jou in contact brengen met onze vaste partner Raymond Imbens of John Olsthoorn van Avant Groep Gouda voor een professioneel, onafhankelijk hypotheekadvies, 085-8226222, raymond@avantgroep.nl/john@avantgroep.nl.
Lees meer
Bouwjaar 1961, woonoppervlakte ca. 83m², berging ca. 6m², inhoud ca. 294m³.
Begane grond
Via de voortuin bereik je de entree van de woning. In de hal bevinden zich de meterkast, het toilet en de trapopgang naar de eerste verdieping. Vanuit de hal is er toegang tot de woonkamer en de keuken.
De woonkamer is prettig licht dankzij de grote raampartij aan de voorzijde en biedt voldoende ruimte voor zowel een zit- als eethoek. De neutrale afwerking zorgt voor een rustige basis die eenvoudig aan te passen is aan een eigen woonstijl.
Aan de achterzijde van de woning bevindt zich de keuken, uitgevoerd in een praktische opstelling met diverse kastruimte en inbouwapparatuur, waaronder een koelvriescombinatie, gaskookplaat, afzuigkap en spoelbak. Vanuit de keuken de kelderkast bereikbaar en is er directe toegang tot de achtertuin.
Eerste verdieping
De overloop geeft toegang tot twee slaapkamers en de badkamer.
De grootste slaapkamer bevindt over de hele lengte van de woning (voorheen 2 kamers) en beschikt over een vaste kast, wat zorgt voor extra bergruimte. De tweede slaapkamer ligt aan de voorzijde en is geschikt als kinder-, werk- of logeerkamer.
De badkamer is functioneel ingericht en voorzien van een douchecabine, handdoekenradiator, wastafelmeubel, spiegelkast en toilet. Dankzij het raam is er natuurlijke ventilatie en daglicht.
Tweede verdieping
Via een vaste trap is de zolderverdieping bereikbaar. Op de overloop bevinden zich de aansluitingen voor de wasapparatuur, de VHR cv combiketel en extra bergruimte achter de knieschotten.
De zolderkamer is voorzien van een dakkapel aan de achterzijde, wat zorgt voor veel licht en extra stahoogte. Deze ruimte is uitstekend te gebruiken als derde slaapkamer, thuiswerkplek of hobbyruimte.
Tuin
De achtertuin is verzorgd aangelegd en biedt voldoende ruimte om te ontspannen en buiten te zitten. Er is een vaste plantenbak. Achter in de tuin staat een stenen berging voor fietsen en tuingereedschap. Daarnaast is er een praktische achterom aanwezig.
Bijzonderheden
* Bouwjaar 1961, woonoppervlakte ca. 83m², berging ca. 6m², inhoud ca. 294m³;
* Tussenwoning in rustige woonstraat vlakbij een park;
* Kindvriendelijke woonomgeving met veel ruimte om buiten te spelen;
* goede staat van onderhoud binnen- en buitenzijde;
* De woning is voorzien van kunststof kozijnen met dubbel glas, dakisolatie en spouwmuurisolatie;
* Wij verwijzen je tot slot naar de “nadere informatie bij het kopen van een onroerende zaak” welke in Move is toegevoegd aan de informatie bij deze woning.
Boer Makelaardij kan jou in contact brengen met onze vaste partner Raymond Imbens of John Olsthoorn van Avant Groep Gouda voor een professioneel, onafhankelijk hypotheekadvies, 085-8226222, raymond@avantgroep.nl/john@avantgroep.nl.
Kenmerken
Overdracht
| Vraagprijs | € 375.000,- k.k. |
| Status | beschikbaar |
| Aanvaarding | in overleg |
Bouw
| Soort woning | woonhuis |
| Soort woonhuis | eengezinswoning |
| Type woonhuis | tussenwoning |
| Aantal woonlagen | 3 |
| Bouwvorm | bestaande bouw |
| Bouwjaar | 1961 |
| Huidige bestemming | woonruimte |
| Onderhoud binnen | goed |
| Onderhoud buiten | goed |
| Voorzieningen | glasvezel kabel, natuurlijke ventilatie |
| Isolatie | dakisolatie, muurisolatie, dubbel glas |
Energie
| Energielabel | C |
| Verwarming | cv ketel |
| Warm water | cv ketel |
| C.V.-ketel | gas gestookte cv-ketel uit 2023 van Vaillant, eigendom |
Oppervlakten en inhoud
| Woonoppervlakte | 83 m² |
| Perceeloppervlakte | 120 m² |
| Inhoud | 294 m³ |
| Bergruimte oppervlakte | 6 m² |
Indeling
| Aantal kamers | 4 |
| Aantal slaapkamers | 3 |
Buitenruimte
| Ligging | aan rustige weg, in woonwijk |
| Tuin | achtertuin met een oppervlakte van 57 m² en is gelegen op het noordwesten |
Overig
| Garage | geen garage |
| Parkeergelegenheid | openbaar parkeren |
| Schuur/berging | vrijstaand steen |










































