Regentesseplantsoen 33
2801 CM Gouda
beschikbaar
€ 325.000,- k.k.
Interesse in deze woning?
Omschrijving
Stel je voor: wonen op een van de meest sfeervolle locaties in Gouda, met een schitterend, vrij uitzicht over de Kattensingel én de gezelligheid van de binnenstad binnen handbereik. Deze charmante maisonnettewoning (ca. 69 m²) biedt je het beste van twee werelden: de rust van een fijne woonplek gecombineerd met de bruisende Goudse binnenstad.
Met een moderne keuken, twee fijne slaapkamers, en maar liefst twee privé-buitenruimtes – een balkon én een zonnig dakterras met stadszicht – is dit een heerlijke plek om comfortabel te wonen. Alle gemakken, zoals winkels, gezellige horeca en station Gouda, zijn hier letterlijk op loopafstand.
Bouwjaar 1978, woonoppervlakte ca. 69m², balkons ca. 18m², berging ca. 4m², inhoud ca. 233m³
Centrale entree
U betreedt het complex via een afgesloten entree met intercominstallatie. De centrale hal geeft toegang tot het trappenhuis met lift. Eenmaal op de eerste verdieping loopt u een heel gezellig 'binnenstraatje' in, waaraan de verschillende woningen grenzen. Aan de achterzijde van het complex bevindt zich bovendien een ruime gemeenschappelijke tuin en uw eigen externe berging.
Woonverdieping
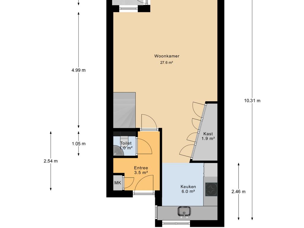
Bij binnenkomst in de woning treft u de hal met meterkast en de toiletruimte. De hal geeft direct toegang tot het hart van de woning: een ruime, lichte en sfeervolle woonkamer. Dankzij de grote ramen geniet u hier van veel daglicht en vooral van het schitterende, vrije uitzicht over de Kattensingel. Via de woonkamer bereikt u het kleine balkon, de ideale plek voor een rustige start van de dag met een kop koffie in de ochtendzon.
Aan de voorzijde bevindt zich de moderne keuken. Deze is uitgevoerd in een lichte, witte hoekopstelling met een donker werkblad en een handige grote kastenwand. De keuken is voorzien van diverse inbouwapparatuur, waaronder een inductiekookplaat, afzuigkap, oven, vaatwasser en koelkast.
Slaapverdieping en terras met stadszicht
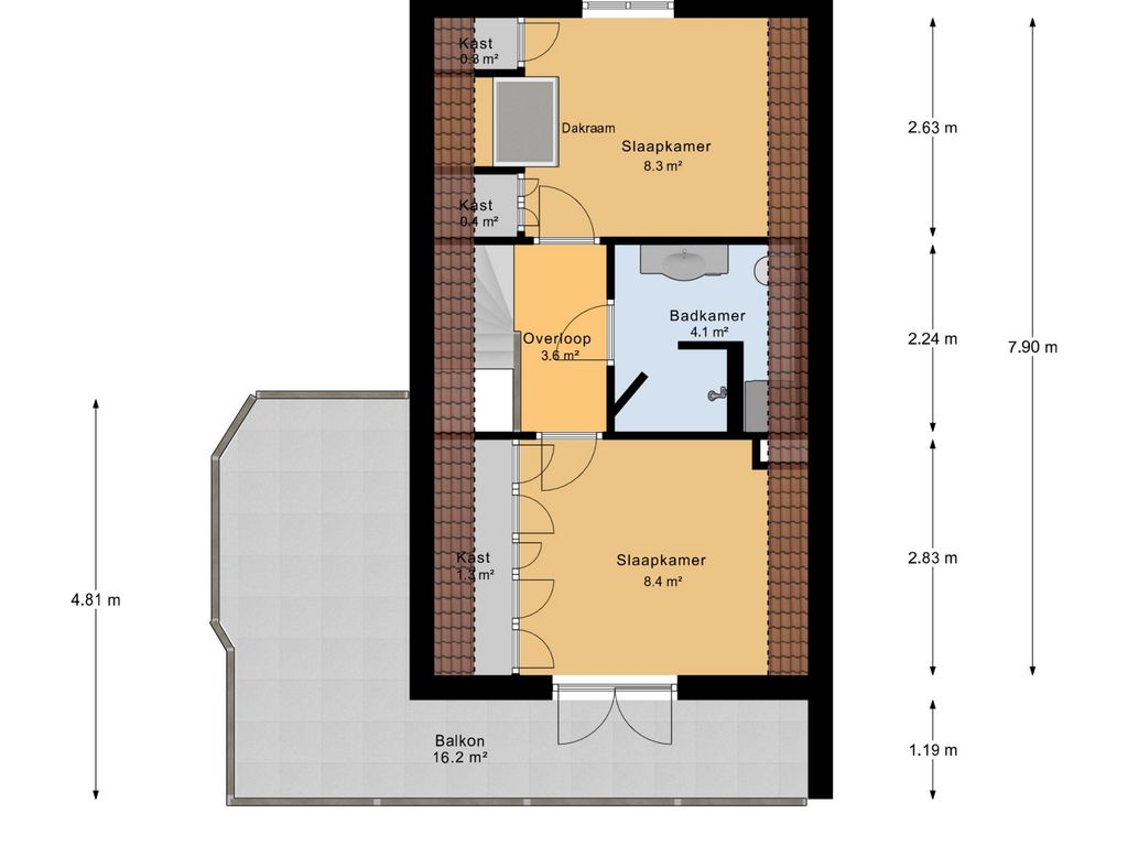
Via de vaste trap bereikt u de overloop van de slaapverdieping. Deze geeft toegang tot twee nette slaapkamers en de badkamer. Beide slaapkamers zijn verzorgd afgewerkt en beschikken over praktische (inbouw)kasten.
De slaapkamer aan de voorzijde geeft toegang tot het dakterras, bestaande uit twee delen. Dit is een fantastische, rustige plek om heerlijk te ontspannen en te genieten van een panoramisch uitzicht over de Goudse binnenstad! De badkamer is volledig betegeld en uitgerust met een douche, een wastafelmeubel en een tweede toilet.
Afmetingen
Woonkamer ca. 4.99x4.49 m.
Keuken ca. 2.46x2.38 m.
Slaapkamer (1) ca. 2.63x4.49 m.
Slaapkamer (2) ca. 2.83x3.49 m.
Badkamer ca. 2.24x2.32 m.
Bijzonderheden
* Bouwjaar 1978, woonoppervlakte ca. 69m², balkons ca. 18m², berging ca. 4m², inhoud ca. 233m³;
* Twee buitenruimtes: een balkon én een dakterras;
* Maandelijke bijdrage VvE bedraagt €288 bestaande uit reservering onderhoud en uitvoeren klein onderhoud, verzekering, tuinonderhoud, lift, beheer en administratie etc.;
* Voorschot stookkosten € 85 per maand;
* Prachtig uitzicht vanuit de woonkamer en vanaf het balkon;
* Voorzien van een gezamenlijke ruin;
* Twee slaapkamers, beide met (inbouw)kast;
* Externe berging;
* Ligging: Schitterende ligging binnen de grachten van het historische centrum van Gouda. De Markt, stadhuis, diverse winkels, supermarkten, restaurants en uitgaansgelegenheden bevinden zich allemaal binnen handbereik. Daarnaast liggen Cinema Gouda, De Goudse Schouwburg, het Groene Hart ziekenhuis en het Centraal Station alle op loopafstand;
* Heeft u een auto? Check de mogelijkheid tot het verkrijgen van een parkeervergunning op de Stadskaart parkeervergunningen via ParkeerService Gouda. Er kan géén eerste vergunning worden aangevraagd wat in de binnenstad betekend dat er een mogelijkheid bestaat om een Goudse sector gebonden parkeerterreinvergunning aan te vragen voor Vossenbuchkade, Schouwburgplein, Stationsgarage of Klein Amerika;
* Wij verwijzen je tot slot naar de “nadere informatie bij het kopen van een onroerende zaak” welke in Move is toegevoegd aan de informatie bij deze woning.
Boer Makelaardij kan jou in contact brengen met onze vaste partner Raymond Imbens of John Olsthoorn van Avant Groep Gouda voor een professioneel, onafhankelijk hypotheekadvies, 085-8226222, raymond@avantgroep.nl/john@avantgroep.nl.
Lees meer
Met een moderne keuken, twee fijne slaapkamers, en maar liefst twee privé-buitenruimtes – een balkon én een zonnig dakterras met stadszicht – is dit een heerlijke plek om comfortabel te wonen. Alle gemakken, zoals winkels, gezellige horeca en station Gouda, zijn hier letterlijk op loopafstand.
Bouwjaar 1978, woonoppervlakte ca. 69m², balkons ca. 18m², berging ca. 4m², inhoud ca. 233m³
Centrale entree
U betreedt het complex via een afgesloten entree met intercominstallatie. De centrale hal geeft toegang tot het trappenhuis met lift. Eenmaal op de eerste verdieping loopt u een heel gezellig 'binnenstraatje' in, waaraan de verschillende woningen grenzen. Aan de achterzijde van het complex bevindt zich bovendien een ruime gemeenschappelijke tuin en uw eigen externe berging.
Woonverdieping
Bij binnenkomst in de woning treft u de hal met meterkast en de toiletruimte. De hal geeft direct toegang tot het hart van de woning: een ruime, lichte en sfeervolle woonkamer. Dankzij de grote ramen geniet u hier van veel daglicht en vooral van het schitterende, vrije uitzicht over de Kattensingel. Via de woonkamer bereikt u het kleine balkon, de ideale plek voor een rustige start van de dag met een kop koffie in de ochtendzon.
Aan de voorzijde bevindt zich de moderne keuken. Deze is uitgevoerd in een lichte, witte hoekopstelling met een donker werkblad en een handige grote kastenwand. De keuken is voorzien van diverse inbouwapparatuur, waaronder een inductiekookplaat, afzuigkap, oven, vaatwasser en koelkast.
Slaapverdieping en terras met stadszicht
Via de vaste trap bereikt u de overloop van de slaapverdieping. Deze geeft toegang tot twee nette slaapkamers en de badkamer. Beide slaapkamers zijn verzorgd afgewerkt en beschikken over praktische (inbouw)kasten.
De slaapkamer aan de voorzijde geeft toegang tot het dakterras, bestaande uit twee delen. Dit is een fantastische, rustige plek om heerlijk te ontspannen en te genieten van een panoramisch uitzicht over de Goudse binnenstad! De badkamer is volledig betegeld en uitgerust met een douche, een wastafelmeubel en een tweede toilet.
Afmetingen
Woonkamer ca. 4.99x4.49 m.
Keuken ca. 2.46x2.38 m.
Slaapkamer (1) ca. 2.63x4.49 m.
Slaapkamer (2) ca. 2.83x3.49 m.
Badkamer ca. 2.24x2.32 m.
Bijzonderheden
* Bouwjaar 1978, woonoppervlakte ca. 69m², balkons ca. 18m², berging ca. 4m², inhoud ca. 233m³;
* Twee buitenruimtes: een balkon én een dakterras;
* Maandelijke bijdrage VvE bedraagt €288 bestaande uit reservering onderhoud en uitvoeren klein onderhoud, verzekering, tuinonderhoud, lift, beheer en administratie etc.;
* Voorschot stookkosten € 85 per maand;
* Prachtig uitzicht vanuit de woonkamer en vanaf het balkon;
* Voorzien van een gezamenlijke ruin;
* Twee slaapkamers, beide met (inbouw)kast;
* Externe berging;
* Ligging: Schitterende ligging binnen de grachten van het historische centrum van Gouda. De Markt, stadhuis, diverse winkels, supermarkten, restaurants en uitgaansgelegenheden bevinden zich allemaal binnen handbereik. Daarnaast liggen Cinema Gouda, De Goudse Schouwburg, het Groene Hart ziekenhuis en het Centraal Station alle op loopafstand;
* Heeft u een auto? Check de mogelijkheid tot het verkrijgen van een parkeervergunning op de Stadskaart parkeervergunningen via ParkeerService Gouda. Er kan géén eerste vergunning worden aangevraagd wat in de binnenstad betekend dat er een mogelijkheid bestaat om een Goudse sector gebonden parkeerterreinvergunning aan te vragen voor Vossenbuchkade, Schouwburgplein, Stationsgarage of Klein Amerika;
* Wij verwijzen je tot slot naar de “nadere informatie bij het kopen van een onroerende zaak” welke in Move is toegevoegd aan de informatie bij deze woning.
Boer Makelaardij kan jou in contact brengen met onze vaste partner Raymond Imbens of John Olsthoorn van Avant Groep Gouda voor een professioneel, onafhankelijk hypotheekadvies, 085-8226222, raymond@avantgroep.nl/john@avantgroep.nl.
Kenmerken
Overdracht
| Vraagprijs | € 325.000,- k.k. |
| Status | beschikbaar |
| Aanvaarding | in overleg |
| VVE checklist | niet aanwezig |
Bouw
| Soort woning | appartement |
| Soort appartement | maisonnette |
| Aantal woonlagen | 2 |
| Woonlaag | 2 |
| Bouwvorm | bestaande bouw |
| Bouwjaar | 1978 |
| Open portiek | nee |
| Huidige bestemming | woonruimte |
| Onderhoud binnen | goed |
| Onderhoud buiten | goed |
| Voorzieningen | mechanische ventilatie, glasvezel kabel |
| Isolatie | dubbel glas |
Energie
| Energielabel | D |
| Verwarming | blokverwarming |
| Warm water | elektrische boiler huur |
Oppervlakten en inhoud
| Woonoppervlakte | 69 m² |
| Bergruimte oppervlakte | 4 m² |
Indeling
| Aantal kamers | 3 |
| Aantal slaapkamers | 2 |
Buitenruimte
| Ligging | in centrum |
| Tuin | zonneterras met een oppervlakte van 16 m² |
Overig
| Parkeergelegenheid | openbaar parkeren, betaald parkeren |
| Schuur/berging | inpandig |







































