Ooievaardreef 23
2841 PA Moordrecht
beschikbaar
€ 525.000,- k.k.
Interesse in deze woning?
Omschrijving
Bent u op zoek naar een ruime, instapklare gezinswoning met veel leefruimte, meerdere slaapkamers, twee badkamers én een fijne tuin aan het water? Dan is deze moderne tussenwoning in Moordrecht precies wat u zoekt. De woning beschikt over een royale woonkamer, een open keuken, vier slaapkamers verdeeld over twee verdiepingen, infraroodsauna en maar liefst twee badkamers. Dankzij de praktische indeling, grote raampartijen en de nette afwerking voelt het huis licht, comfortabel en direct klaar om te betrekken. De woning ligt in een rustige, kindvriendelijke woonomgeving vlakbij basisscholen, kinderopvanglocaties, speelgelegenheden, sportclubs, kinderboerderij ‘In de Krom’, supermarkten en andere dagelijkse voorzieningen. Bouwjaar ca. 1998.
Woonoppervlakte circa 153 m² | inhoud circa 496 m³ | perceeloppervlakte circa 161 m² eigen grond.
Begane grond
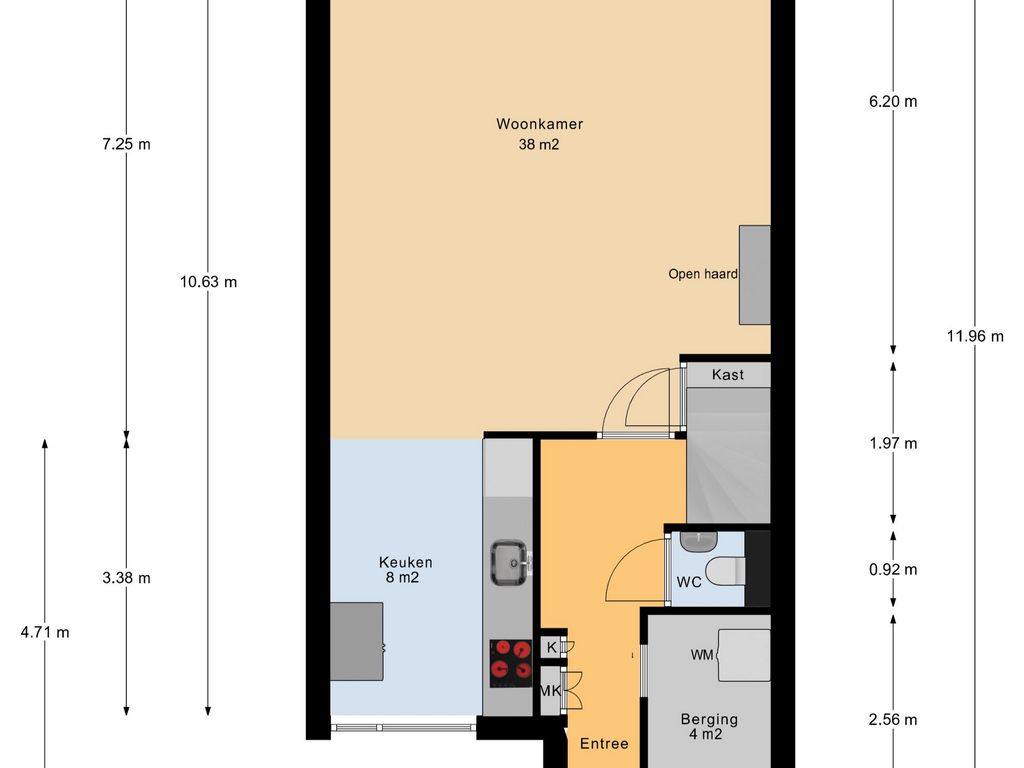
Via de entree stapt u binnen in de hal met garderoberuimte, meterkast en toilet. Vanuit hier heeft u toegang tot de berging met wasmachineaansluiting en de trapopgang. De ruime, in 2011 uitgebouwde, woonkamer van circa 38 m² is een heerlijke leefruimte waar direct het licht en de ruimte opvallen. Grote raampartijen en openslaande deuren naar de tuin met mobiele terrasoverkapping zorgen voor een prettige verbinding met buiten. De gashaard vormt een sfeervol middelpunt in de woonkamer en maakt dit een fijne plek om te ontspannen. De lichte plavuizen vloer met vloerverwarming geeft het geheel een moderne en rustige uitstraling.
Aan de voorzijde van de woning bevindt zich de keuken. Deze is praktisch ingericht en voorzien van een apothekerskast en diverse inbouwapparatuur, waaronder een keramische kookplaat, afzuigkap, vaatwasser en oven. Daarnaast is er een losstaande Amerikaanse koelkast.
Eerste verdieping
Op de eerste verdieping bevinden zich drie slaapkamers van circa 18 m², 11 m² en 6 m². De grootste slaapkamer (voorheen 2 kamers) biedt voldoende ruimte voor een tweepersoonsbed, een royale kastenwand en is voorzien van een rolluik. De overige slaapkamers zijn voorzien van screens en zijn ideaal te gebruiken als kinder-, werk- of logeerkamer. De kleinste slaapkamer beschikt over een vaste kastenwand en een infraroodsauna.
De moderne badkamer is voorzien van een ruime inloopdouche, een wastafelmeubel, handdoekradiator en toilet.
Op de overloop bevindt zich een aparte berging/kast met de cv-installatie, wat tevens zorgt voor extra praktische bergruimte.
Tweede verdieping
De tweede verdieping verrast met een ruime overloop die dankzij de lichtkoepel beschikt over veel daglicht. Hier bevindt zich de vierde slaapkamer van circa 8 m². Ook is er een tweede badkamer aanwezig, voorzien van een douche en wastafel. Een aparte kast biedt extra opslagruimte. Deze verdieping is uitstekend geschikt als werkverdieping, logeerruimte of een fijne extra slaapkamer.
Tuin
De achtertuin is netjes aangelegd, onderhoudsvriendelijk en prachtig gelegen aan het water. Dankzij de ligging op het zuiden geniet u hier de hele dag van de zon. Direct aan de woning bevindt zich een stenen, onderheid terras, gevolgd door een groen gazon. Achterin de tuin ligt een lager gelegen gedeelte, een heerlijke plek om buiten te eten of te genieten van lange zomeravonden. Daarnaast zijn er in de tuin zowel stroom- als wateraansluitingen aanwezig. De tuin is bereikbaar via de openslaande deuren in de woonkamer en biedt volop rust en privacy.
Bijzonderheden
* Bouwjaar 1998, woonoppervlakte circa 153 m², inhoud circa 496 m³, perceeloppervlakte circa 161 m²;
* Ruime en lichte tussenwoning;
* Uitbouw woonkamer uit 2011;
* Kunststof pui en kozijnen grotendeels kunststof;
* Glasvezel Delta en spoedig ook KPN;
* Buitenschilderwerk 2021;
* Energielabel A;
* Royale uitgebouwde woonkamer met gashaard en, m.u.v. de uitbouw, voorzien van vloerverwarming;
* Vier slaapkamers verdeeld over twee verdiepingen;
* Twee badkamers;
* Opbouw 2e verdieping uit 2006;
* Praktische indeling met veel bergruimte;
* Onderhoudsvriendelijke tuin aan het water;
* Erfgrens in hart van de sloot: er geldt een baggerplicht;
* Gelegen in een rustige en kindvriendelijke woonwijk;
* Wij verwijzen je tot slot naar de “nadere informatie bij het kopen van een onroerende zaak” welke in Move is toegevoegd aan de informatie bij deze woning.
Een complete en comfortabele gezinswoning met verrassend veel ruimte, zowel binnen als buiten. Maak snel een afspraak voor een bezichtiging en ervaar zelf wat deze woning jou te bieden heeft.
Boer Makelaardij brengt je graag in contact met onze vaste hypotheekpartners Raymond Imbens of John Olsthoorn van Avant Groep Gouda voor een professioneel en onafhankelijk hypotheekadvies. Bel 085-8226222 of mail naar raymond@avantgroep.nl / john@avantgroep.nl
Lees meer
Woonoppervlakte circa 153 m² | inhoud circa 496 m³ | perceeloppervlakte circa 161 m² eigen grond.
Begane grond
Via de entree stapt u binnen in de hal met garderoberuimte, meterkast en toilet. Vanuit hier heeft u toegang tot de berging met wasmachineaansluiting en de trapopgang. De ruime, in 2011 uitgebouwde, woonkamer van circa 38 m² is een heerlijke leefruimte waar direct het licht en de ruimte opvallen. Grote raampartijen en openslaande deuren naar de tuin met mobiele terrasoverkapping zorgen voor een prettige verbinding met buiten. De gashaard vormt een sfeervol middelpunt in de woonkamer en maakt dit een fijne plek om te ontspannen. De lichte plavuizen vloer met vloerverwarming geeft het geheel een moderne en rustige uitstraling.
Aan de voorzijde van de woning bevindt zich de keuken. Deze is praktisch ingericht en voorzien van een apothekerskast en diverse inbouwapparatuur, waaronder een keramische kookplaat, afzuigkap, vaatwasser en oven. Daarnaast is er een losstaande Amerikaanse koelkast.
Eerste verdieping
Op de eerste verdieping bevinden zich drie slaapkamers van circa 18 m², 11 m² en 6 m². De grootste slaapkamer (voorheen 2 kamers) biedt voldoende ruimte voor een tweepersoonsbed, een royale kastenwand en is voorzien van een rolluik. De overige slaapkamers zijn voorzien van screens en zijn ideaal te gebruiken als kinder-, werk- of logeerkamer. De kleinste slaapkamer beschikt over een vaste kastenwand en een infraroodsauna.
De moderne badkamer is voorzien van een ruime inloopdouche, een wastafelmeubel, handdoekradiator en toilet.
Op de overloop bevindt zich een aparte berging/kast met de cv-installatie, wat tevens zorgt voor extra praktische bergruimte.
Tweede verdieping
De tweede verdieping verrast met een ruime overloop die dankzij de lichtkoepel beschikt over veel daglicht. Hier bevindt zich de vierde slaapkamer van circa 8 m². Ook is er een tweede badkamer aanwezig, voorzien van een douche en wastafel. Een aparte kast biedt extra opslagruimte. Deze verdieping is uitstekend geschikt als werkverdieping, logeerruimte of een fijne extra slaapkamer.
Tuin
De achtertuin is netjes aangelegd, onderhoudsvriendelijk en prachtig gelegen aan het water. Dankzij de ligging op het zuiden geniet u hier de hele dag van de zon. Direct aan de woning bevindt zich een stenen, onderheid terras, gevolgd door een groen gazon. Achterin de tuin ligt een lager gelegen gedeelte, een heerlijke plek om buiten te eten of te genieten van lange zomeravonden. Daarnaast zijn er in de tuin zowel stroom- als wateraansluitingen aanwezig. De tuin is bereikbaar via de openslaande deuren in de woonkamer en biedt volop rust en privacy.
Bijzonderheden
* Bouwjaar 1998, woonoppervlakte circa 153 m², inhoud circa 496 m³, perceeloppervlakte circa 161 m²;
* Ruime en lichte tussenwoning;
* Uitbouw woonkamer uit 2011;
* Kunststof pui en kozijnen grotendeels kunststof;
* Glasvezel Delta en spoedig ook KPN;
* Buitenschilderwerk 2021;
* Energielabel A;
* Royale uitgebouwde woonkamer met gashaard en, m.u.v. de uitbouw, voorzien van vloerverwarming;
* Vier slaapkamers verdeeld over twee verdiepingen;
* Twee badkamers;
* Opbouw 2e verdieping uit 2006;
* Praktische indeling met veel bergruimte;
* Onderhoudsvriendelijke tuin aan het water;
* Erfgrens in hart van de sloot: er geldt een baggerplicht;
* Gelegen in een rustige en kindvriendelijke woonwijk;
* Wij verwijzen je tot slot naar de “nadere informatie bij het kopen van een onroerende zaak” welke in Move is toegevoegd aan de informatie bij deze woning.
Een complete en comfortabele gezinswoning met verrassend veel ruimte, zowel binnen als buiten. Maak snel een afspraak voor een bezichtiging en ervaar zelf wat deze woning jou te bieden heeft.
Boer Makelaardij brengt je graag in contact met onze vaste hypotheekpartners Raymond Imbens of John Olsthoorn van Avant Groep Gouda voor een professioneel en onafhankelijk hypotheekadvies. Bel 085-8226222 of mail naar raymond@avantgroep.nl / john@avantgroep.nl
Kenmerken
Overdracht
| Vraagprijs | € 525.000,- k.k. |
| Status | beschikbaar |
| Aanvaarding | in overleg |
Bouw
| Soort woning | woonhuis |
| Soort woonhuis | eengezinswoning |
| Type woonhuis | tussenwoning |
| Aantal woonlagen | 3 |
| Bouwvorm | bestaande bouw |
| Bouwjaar | 1998 |
| Huidige bestemming | woonruimte |
| Onderhoud binnen | goed |
| Onderhoud buiten | goed |
| Voorzieningen | mechanische ventilatie, glasvezel kabel |
| Isolatie | volledig geisoleerd, hr glas |
Energie
| Energielabel | A |
| Verwarming | cv ketel |
| Warm water | cv ketel |
| C.V.-ketel | gas gestookte combi-ketel uit 2021 van Nefit Topline, eigendom |
Oppervlakten en inhoud
| Woonoppervlakte | 153 m² |
| Perceeloppervlakte | 161 m² |
| Inhoud | 496 m³ |
Indeling
| Aantal kamers | 5 |
| Aantal slaapkamers | 4 |
Buitenruimte
| Ligging | aan rustige weg, in woonwijk |
| Tuin | achtertuin met een oppervlakte van 72 m² en is gelegen op het zuidoosten |
Overig
| Garage | geen garage |
| Parkeergelegenheid | openbaar parkeren |
| Schuur/berging | inpandig |






































