Nieuwehaven 266
2801 EE Gouda
beschikbaar
€ 375.000,- k.k.
Interesse in deze woning?
Omschrijving
In de historische binnenstad van Gouda, aan de schilderachtige Nieuwehaven, bevindt zich deze karakteristieke en verrassend ruime woning met een woonoppervlakte van circa 90 m². Het pand maakt deel uit van het hofje van Cincq en combineert de sfeer van een monumentaal gebouw met het comfort van modern wonen. De prachtige gevel en het wapenschild trekken direct de aandacht. Binnen wacht een sfeervolle woning met authentieke details, een moderne keuken, een ruime woonkamer met open haard en meerdere slaapkamers verdeeld over twee verdiepingen.
De ligging in een rustig en besloten binnenhof zorgt voor een bijzondere, bijna dorpse woonsfeer midden in de stad.
Een unieke kans om te wonen in een bijzonder stukje Goudse geschiedenis, met het comfort van nu. Deze woning biedt karakter, licht en ruimte. Midden in de stad, maar met de rust van een hofje. Laat je verrassen door de charme van Nieuwehaven 266 en plan vandaag nog een bezichtiging. Bouwjaar 1701, woonoppervlakte circa 90 m², inhoud circa 326m³.
Hofje van Cincq
De Fundatie van Mr. Cornelis Cincq, meest hofje van Cincq genoemd, gold als het meest luxe hofje in de stad. Het is via een centrale poort toegankelijk. Cincq was zoon van een Goudse burgemeester, wiens grote liefde onbeantwoord bleef en die zijn nalatenschap toen maar beschikbaar stelde voor de bouw van 12 huisjes voor armlastige ouden van dagen. Het kwam in 1700 gereed en werd rond 1860 nog eens grondig verbouwd. Onder andere werd het toen gepleisterd en kreeg het grote schuifvensters op de begane grond. Boven de toeganspoort bevindt zich de voormalige regentenkamer. In 1975 redden particulieren, die de afzonderlijke huisjes opkochten, het hofje van de sloop en namen de restauratie ter hand. Dit is het enige historische hofje in Gouda waar de woningen te koop zijn.
Verkoper vertelt
Wow! Ook na ruim zeven jaar voelen we dat nog elke keer als we door de poort het hofje op lopen. In elk seizoen en met elk weer is het spectaculair mooi. Toen we hier in 2018 introkken hadden we als nieuwe Gouwenaars meteen een sociaal netwerkje dankzij het hofje. Gezellig en ongedwongen. Jaarlijks met zijn allen een grote Kerstboom op het hofje optuigen. Midden in het historische centrum van Gouda wonen en toch 's nachts met het raam open alleen de blaadjes in de bomen horen ritselen. Bezoekers verrassen met de charme en het karakter in elke hoek van het huis. Jezèlf keer op keer verrassen met de charme van je eigen huis... Ja, eigenaar zijn van dit stukje historie is een bijzondere ervaring die we gaan missen. We zijn stiekem jaloers op de volgende eigenaar!
Begane grond
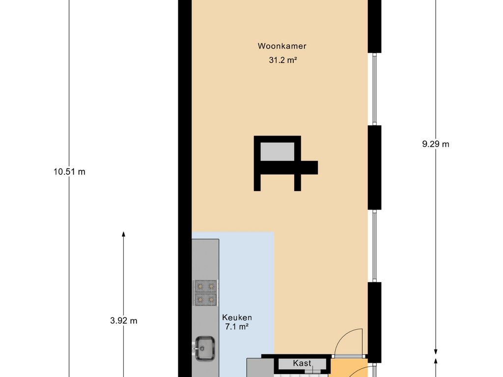
Via de entree aan de voorzijde kom je in de hal met toegang tot de trapopgang. De lichte woonkamer (circa 31 m²) heeft grote ramen met roedeverdeling die zorgen voor veel daglicht. De ruimte ademt karakter door de houten vloer, de balkenplafonds en de imposante open haard die centraal in de kamer staat.
De moderne keuken is uitgevoerd in wit met een donker werkblad en voorzien van inbouwapparatuur, waaronder een combimagnetron, gaskookplaat, afzuigkap, vaatwasser en spoelbak. Dankzij de open verbinding met de woonkamer ontstaat een ruimtelijk en gezellig geheel.
Eerste verdieping
De eerste verdieping beschikt over twee slaapkamers en een ruime badkamer. De grootste slaapkamer (ca. 11,8 m²) ligt aan de achterzijde en biedt veel licht en rust. De tweede slaapkamer (ca. 5,9 m²) is voorzien van een dakraam en is ideaal als logeerkamer, kinderkamer of werkkamer.
De badkamer (ca. 5,6 m²) heeft een lichte afwerking met blauwe mozaïektegels, een ligbad met douchefunctie, wastafel en een aansluiting voor de wasmachine. Het houten plafond met zichtbare balken geeft de ruimte een warme, karaktervolle uitstraling. Op de overloop bevinden zich een separaat toilet en meerdere bergkasten.
Tweede verdieping
Een trap leidt naar de tweede verdieping, bestaande uit twee zolderruimtes (ca. 6,0 m² en 4,7 m²), beide met een dakraam. De zolder is verrassend licht en veelzijdig in gebruik. Ideaal als extra slaapkamer, werkruimte of hobbykamer. Tevens is er een bergkast aanwezig met de cv-opstelling.
Buitenruimte
De woning maakt deel uit van een rustig en charmant hofje, een beschutte binnenplaats met karakteristieke bestrating en groene accenten. Hier is ruimte om een bankje of zitje te plaatsen om van de zon en de rust te genieten. Het hofje heeft een vriendelijke en gemoedelijke sfeer, waar buren elkaar nog kennen en waar kinderen veilig kunnen spelen.
Afmetingen:
Woonkamer ca. 9.29x3.89 m.
Keuken ca. 3.92x1.82 m.
Slaapkamer (1) ca. 3.21x3.89 m.
Slaapkamer (2) ca. 2.37x2.87 m.
Badkamer ca. 1.80x3.89 m.
Slaapkamer (3) ca. 2.88x2.95 m.
Slaapkamer (4) ca. 4.05x2.95 m.
Bijzonderheden
* Bouwjaar 1701, woonoppervlakte circa 90 m², inhoud circa 326m³;
* Rijksmonumentaal pand met historische gevel (bouwjaar circa 1700);
* Bij de restauratie in de jaren '70 zijn een aantal van de 12 hofjeswoningen samengevoegd om beter te voldoen aan moderne woonwensen. Deze woning is een samenvoeging van nummers 264 & 266;
* Authentieke details, zoals balkenplafonds en roedeverdeelde ramen;
* Ruime woonkamer met open haard;
* Moderne keuken met inbouwapparatuur;
* Twee slaapkamers en multifunctionele zolderverdieping;
* Gelegen in rustig hofje in de binnenstad van Gouda;
* Op loopafstand van winkels, restaurants en openbaar vervoer;
* Heeft u een auto? Check de mogelijkheid tot het verkrijgen van een parkeervergunning op de Stadskaart parkeervergunningen via ParkeerService Gouda;
* Gemeenschappelijke fietsenberging in poortgebouw
* De achtergelegen tuin en binnenplaats zijn gezamenlijk in eigendom met de 6 andere bewoners van het hofje.
* Bij koop van de woning wordt de bewoner lid van "vereniging Het Hofje van Cincq". Hier wordt jaarlijkse een contributiebedrag van € 150,- / € 200,- gerekend voor klein onderhoud en gezamenlijke kosten zoals de kerstboom en onderhoud aan het hof en de achtertuin, alsmede het tweejaarlijks inspectierapport dat Monumentenwacht opstelt.
* wij verwijzen je tot slot naar de “nadere informatie bij het kopen van een onroerende zaak” welke in Move is toegevoegd aan de informatie bij deze woning.
Boer Makelaardij brengt je graag in contact met onze vaste hypotheekpartners Raymond Imbens of John Olsthoorn van Avant Groep Gouda voor een professioneel en onafhankelijk hypotheekadvies. Bel 085-8226222 of mail naar raymond@avantgroep.nl / john@avantgroep.nl
Lees meer
De ligging in een rustig en besloten binnenhof zorgt voor een bijzondere, bijna dorpse woonsfeer midden in de stad.
Een unieke kans om te wonen in een bijzonder stukje Goudse geschiedenis, met het comfort van nu. Deze woning biedt karakter, licht en ruimte. Midden in de stad, maar met de rust van een hofje. Laat je verrassen door de charme van Nieuwehaven 266 en plan vandaag nog een bezichtiging. Bouwjaar 1701, woonoppervlakte circa 90 m², inhoud circa 326m³.
Hofje van Cincq
De Fundatie van Mr. Cornelis Cincq, meest hofje van Cincq genoemd, gold als het meest luxe hofje in de stad. Het is via een centrale poort toegankelijk. Cincq was zoon van een Goudse burgemeester, wiens grote liefde onbeantwoord bleef en die zijn nalatenschap toen maar beschikbaar stelde voor de bouw van 12 huisjes voor armlastige ouden van dagen. Het kwam in 1700 gereed en werd rond 1860 nog eens grondig verbouwd. Onder andere werd het toen gepleisterd en kreeg het grote schuifvensters op de begane grond. Boven de toeganspoort bevindt zich de voormalige regentenkamer. In 1975 redden particulieren, die de afzonderlijke huisjes opkochten, het hofje van de sloop en namen de restauratie ter hand. Dit is het enige historische hofje in Gouda waar de woningen te koop zijn.
Verkoper vertelt
Wow! Ook na ruim zeven jaar voelen we dat nog elke keer als we door de poort het hofje op lopen. In elk seizoen en met elk weer is het spectaculair mooi. Toen we hier in 2018 introkken hadden we als nieuwe Gouwenaars meteen een sociaal netwerkje dankzij het hofje. Gezellig en ongedwongen. Jaarlijks met zijn allen een grote Kerstboom op het hofje optuigen. Midden in het historische centrum van Gouda wonen en toch 's nachts met het raam open alleen de blaadjes in de bomen horen ritselen. Bezoekers verrassen met de charme en het karakter in elke hoek van het huis. Jezèlf keer op keer verrassen met de charme van je eigen huis... Ja, eigenaar zijn van dit stukje historie is een bijzondere ervaring die we gaan missen. We zijn stiekem jaloers op de volgende eigenaar!
Begane grond
Via de entree aan de voorzijde kom je in de hal met toegang tot de trapopgang. De lichte woonkamer (circa 31 m²) heeft grote ramen met roedeverdeling die zorgen voor veel daglicht. De ruimte ademt karakter door de houten vloer, de balkenplafonds en de imposante open haard die centraal in de kamer staat.
De moderne keuken is uitgevoerd in wit met een donker werkblad en voorzien van inbouwapparatuur, waaronder een combimagnetron, gaskookplaat, afzuigkap, vaatwasser en spoelbak. Dankzij de open verbinding met de woonkamer ontstaat een ruimtelijk en gezellig geheel.
Eerste verdieping
De eerste verdieping beschikt over twee slaapkamers en een ruime badkamer. De grootste slaapkamer (ca. 11,8 m²) ligt aan de achterzijde en biedt veel licht en rust. De tweede slaapkamer (ca. 5,9 m²) is voorzien van een dakraam en is ideaal als logeerkamer, kinderkamer of werkkamer.
De badkamer (ca. 5,6 m²) heeft een lichte afwerking met blauwe mozaïektegels, een ligbad met douchefunctie, wastafel en een aansluiting voor de wasmachine. Het houten plafond met zichtbare balken geeft de ruimte een warme, karaktervolle uitstraling. Op de overloop bevinden zich een separaat toilet en meerdere bergkasten.
Tweede verdieping
Een trap leidt naar de tweede verdieping, bestaande uit twee zolderruimtes (ca. 6,0 m² en 4,7 m²), beide met een dakraam. De zolder is verrassend licht en veelzijdig in gebruik. Ideaal als extra slaapkamer, werkruimte of hobbykamer. Tevens is er een bergkast aanwezig met de cv-opstelling.
Buitenruimte
De woning maakt deel uit van een rustig en charmant hofje, een beschutte binnenplaats met karakteristieke bestrating en groene accenten. Hier is ruimte om een bankje of zitje te plaatsen om van de zon en de rust te genieten. Het hofje heeft een vriendelijke en gemoedelijke sfeer, waar buren elkaar nog kennen en waar kinderen veilig kunnen spelen.
Afmetingen:
Woonkamer ca. 9.29x3.89 m.
Keuken ca. 3.92x1.82 m.
Slaapkamer (1) ca. 3.21x3.89 m.
Slaapkamer (2) ca. 2.37x2.87 m.
Badkamer ca. 1.80x3.89 m.
Slaapkamer (3) ca. 2.88x2.95 m.
Slaapkamer (4) ca. 4.05x2.95 m.
Bijzonderheden
* Bouwjaar 1701, woonoppervlakte circa 90 m², inhoud circa 326m³;
* Rijksmonumentaal pand met historische gevel (bouwjaar circa 1700);
* Bij de restauratie in de jaren '70 zijn een aantal van de 12 hofjeswoningen samengevoegd om beter te voldoen aan moderne woonwensen. Deze woning is een samenvoeging van nummers 264 & 266;
* Authentieke details, zoals balkenplafonds en roedeverdeelde ramen;
* Ruime woonkamer met open haard;
* Moderne keuken met inbouwapparatuur;
* Twee slaapkamers en multifunctionele zolderverdieping;
* Gelegen in rustig hofje in de binnenstad van Gouda;
* Op loopafstand van winkels, restaurants en openbaar vervoer;
* Heeft u een auto? Check de mogelijkheid tot het verkrijgen van een parkeervergunning op de Stadskaart parkeervergunningen via ParkeerService Gouda;
* Gemeenschappelijke fietsenberging in poortgebouw
* De achtergelegen tuin en binnenplaats zijn gezamenlijk in eigendom met de 6 andere bewoners van het hofje.
* Bij koop van de woning wordt de bewoner lid van "vereniging Het Hofje van Cincq". Hier wordt jaarlijkse een contributiebedrag van € 150,- / € 200,- gerekend voor klein onderhoud en gezamenlijke kosten zoals de kerstboom en onderhoud aan het hof en de achtertuin, alsmede het tweejaarlijks inspectierapport dat Monumentenwacht opstelt.
* wij verwijzen je tot slot naar de “nadere informatie bij het kopen van een onroerende zaak” welke in Move is toegevoegd aan de informatie bij deze woning.
Boer Makelaardij brengt je graag in contact met onze vaste hypotheekpartners Raymond Imbens of John Olsthoorn van Avant Groep Gouda voor een professioneel en onafhankelijk hypotheekadvies. Bel 085-8226222 of mail naar raymond@avantgroep.nl / john@avantgroep.nl
Kenmerken
Overdracht
| Vraagprijs | € 375.000,- k.k. |
| Status | beschikbaar |
| Aanvaarding | in overleg |
Bouw
| Soort woning | woonhuis |
| Soort woonhuis | eengezinswoning |
| Type woonhuis | tussenwoning |
| Aantal woonlagen | 3 |
| Bouwvorm | bestaande bouw |
| Bouwjaar | 1701 |
| Huidige bestemming | woonruimte |
| Onderhoud binnen | goed |
| Onderhoud buiten | goed |
| Voorzieningen | glasvezel kabel, natuurlijke ventilatie |
Energie
| Verwarming | cv ketel |
| Warm water | cv ketel |
| C.V.-ketel | gas gestookte combi-ketel uit 2025 van Intergas, eigendom |
Oppervlakten en inhoud
| Woonoppervlakte | 90 m² |
| Perceeloppervlakte | 48 m² |
| Inhoud | 326 m³ |
Indeling
| Aantal kamers | 5 |
| Aantal slaapkamers | 4 |
Buitenruimte
| Ligging | in centrum, beschutte ligging |
Overig
| Garage | geen garage |
| Parkeergelegenheid | parkeervergunningen |





































