Nansenstraat 43
2806 HK Gouda
beschikbaar
€ 399.500,- k.k.
Interesse in deze woning?
Omschrijving
Aan zeer ruim opgezette straat met groenzone gelegen hoekwoning met voor-, zij- en achtertuin met dubbele stenen berging. De woning is gunstig gelegen ten opzichte van supermarkten, scholen, recreatiegebieden Reeuwijkse Plassen en Goudse Hout en verrassend dicht bij het historische centrum en NS station. Bouwjaar 1959, woonoppervlakte circa 78 m², inhoud circa 318 m³, externe bergruimte circa 10 m².
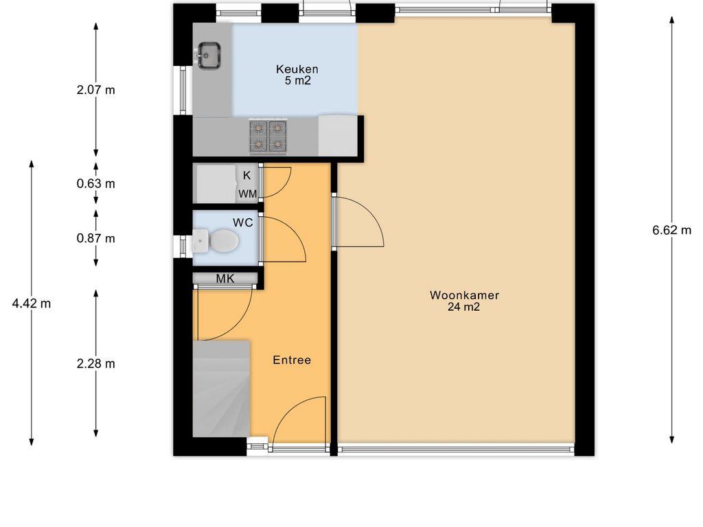
Entree, hal met meterkast, toilet en trapopgang naar de eerste verdieping. Vanuit de hal is er toegang tot de woonkamer. De woonkamer is zeer lichtvriendelijk door de grote ramen en heeft een vrij uitzicht over de tuin en de brede straat met groenzone. Aan de achterzijde van de woning bevindt zich de open keuken. Deze is uitgevoerd in een lichte kleurstelling en opgesteld in een praktische hoekopstelling. De keuken is voorzien van diverse inbouwapparatuur, waaronder een gaskookplaat, oven, afzuigkap en vaatwasser. Vanuit de keuken is er direct toegang tot de achtertuin.
Eerste verdieping
De eerste verdieping beschikt over twee ruime slaapkamers en een extra kamer, uitstekend geschikt als thuiswerkplek, kantoor of hobbyruimte, met toegang tot het balkon. De badkamer is compact en functioneel ingericht met een douche en wastafel. Op de overloop bevindt zich tevens de vlizotrap naar de zolder.
Tweede verdieping
Via de vlizotrap is de bergzolder bereikbaar. Deze verdieping biedt praktische extra bergruimte voor onder andere seizoensspullen en overige opslag.
Tuin
De achtertuin is verzorgd aangelegd en biedt voldoende ruimte voor een terras en groen. Een fijne plek om buiten te zitten en te ontspannen. Achterin de tuin staat een stenen berging, ideaal voor het stallen van fietsen en tuingereedschap. De tuin is tevens bereikbaar via een achterom.
Afmetingen:
Woonkamer ca. 6.62x3.70 m.
Keuken ca. 2.07x2.55 m.
Slaapkamer (1) ca. 2.86x3.70 m.
Slaapkamer (2) ca. 3.13x3.27 m.
Slaapkamer (3) ca. 2.09x2.57 m.
balkon ca. 1.16x2.82 m.
Badkamer ca. 1.88x1.03 m.
Bergzolder ca. 3.41x5.94 m.
Algemeen:
* Bouwjaar 1959, woonoppervlakte circa 78 m², inhoud circa 318 m³, externe bergruimte circa 10 m²;
* 3 slaapkamers;
* Energielabel F;
* Riante voor-, zij- en achtertuin met dubbele stenen berging, ideaal voor een hobby of opslag;
* Gunstig gelegen t.o.v. diverse voorzieningen zoals winkels, scholen & sportvoorzieningen, maar ook natuur, het centrum, NS station;
* Openbaar en vergunningsvrij parkeren;
* Opgenomen wordt de nimmer bewoond, de ouderdoms- en de asbestclausule;
* Wij verwijzen je tot slot naar de “nadere informatie bij het kopen van een onroerende zaak” welke in Move is toegevoegd aan de informatie bij deze woning.
Boer Makelaardij kan jou in contact brengen met onze vaste partner Raymond Imbens of John Olsthoorn van Avant Groep Gouda voor een professioneel, onafhankelijk hypotheekadvies, 085-8226222, raymond@avantgroep.nl/john@avantgroep.nl.
Lees meer
Entree, hal met meterkast, toilet en trapopgang naar de eerste verdieping. Vanuit de hal is er toegang tot de woonkamer. De woonkamer is zeer lichtvriendelijk door de grote ramen en heeft een vrij uitzicht over de tuin en de brede straat met groenzone. Aan de achterzijde van de woning bevindt zich de open keuken. Deze is uitgevoerd in een lichte kleurstelling en opgesteld in een praktische hoekopstelling. De keuken is voorzien van diverse inbouwapparatuur, waaronder een gaskookplaat, oven, afzuigkap en vaatwasser. Vanuit de keuken is er direct toegang tot de achtertuin.
Eerste verdieping
De eerste verdieping beschikt over twee ruime slaapkamers en een extra kamer, uitstekend geschikt als thuiswerkplek, kantoor of hobbyruimte, met toegang tot het balkon. De badkamer is compact en functioneel ingericht met een douche en wastafel. Op de overloop bevindt zich tevens de vlizotrap naar de zolder.
Tweede verdieping
Via de vlizotrap is de bergzolder bereikbaar. Deze verdieping biedt praktische extra bergruimte voor onder andere seizoensspullen en overige opslag.
Tuin
De achtertuin is verzorgd aangelegd en biedt voldoende ruimte voor een terras en groen. Een fijne plek om buiten te zitten en te ontspannen. Achterin de tuin staat een stenen berging, ideaal voor het stallen van fietsen en tuingereedschap. De tuin is tevens bereikbaar via een achterom.
Afmetingen:
Woonkamer ca. 6.62x3.70 m.
Keuken ca. 2.07x2.55 m.
Slaapkamer (1) ca. 2.86x3.70 m.
Slaapkamer (2) ca. 3.13x3.27 m.
Slaapkamer (3) ca. 2.09x2.57 m.
balkon ca. 1.16x2.82 m.
Badkamer ca. 1.88x1.03 m.
Bergzolder ca. 3.41x5.94 m.
Algemeen:
* Bouwjaar 1959, woonoppervlakte circa 78 m², inhoud circa 318 m³, externe bergruimte circa 10 m²;
* 3 slaapkamers;
* Energielabel F;
* Riante voor-, zij- en achtertuin met dubbele stenen berging, ideaal voor een hobby of opslag;
* Gunstig gelegen t.o.v. diverse voorzieningen zoals winkels, scholen & sportvoorzieningen, maar ook natuur, het centrum, NS station;
* Openbaar en vergunningsvrij parkeren;
* Opgenomen wordt de nimmer bewoond, de ouderdoms- en de asbestclausule;
* Wij verwijzen je tot slot naar de “nadere informatie bij het kopen van een onroerende zaak” welke in Move is toegevoegd aan de informatie bij deze woning.
Boer Makelaardij kan jou in contact brengen met onze vaste partner Raymond Imbens of John Olsthoorn van Avant Groep Gouda voor een professioneel, onafhankelijk hypotheekadvies, 085-8226222, raymond@avantgroep.nl/john@avantgroep.nl.
Kenmerken
Overdracht
| Vraagprijs | € 399.500,- k.k. |
| Status | beschikbaar |
| Aanvaarding | in overleg |
Bouw
| Soort woning | woonhuis |
| Soort woonhuis | eengezinswoning |
| Type woonhuis | hoekwoning |
| Aantal woonlagen | 3 |
| Bouwvorm | bestaande bouw |
| Bouwjaar | 1959 |
| Huidige bestemming | woonruimte |
| Onderhoud binnen | redelijk tot goed |
| Onderhoud buiten | redelijk tot goed |
| Voorzieningen | tv kabel, glasvezel kabel |
| Isolatie | dubbel glas |
Energie
| Energielabel | F |
| Verwarming | cv ketel |
| Warm water | cv ketel |
| C.V.-ketel | combi-ketel van Intergas, eigendom |
Oppervlakten en inhoud
| Woonoppervlakte | 78 m² |
| Perceeloppervlakte | 208 m² |
| Inhoud | 318 m³ |
| Inpandigeruimte oppervlakte | 8 m² |
| Bergruimte oppervlakte | 10 m² |
Indeling
| Aantal kamers | 4 |
| Aantal slaapkamers | 3 |
Buitenruimte
| Ligging | aan rustige weg, in woonwijk |
| Tuin | achtertuin met een oppervlakte van 115 m² en is gelegen op het oosten |
Overig
| Garage | geen garage |
| Parkeergelegenheid | op eigen terrein |
| Schuur/berging | vrijstaand steen |































