Kerkweg-West 10
2742 BD Waddinxveen
verkocht
Interesse in deze woning?
Omschrijving
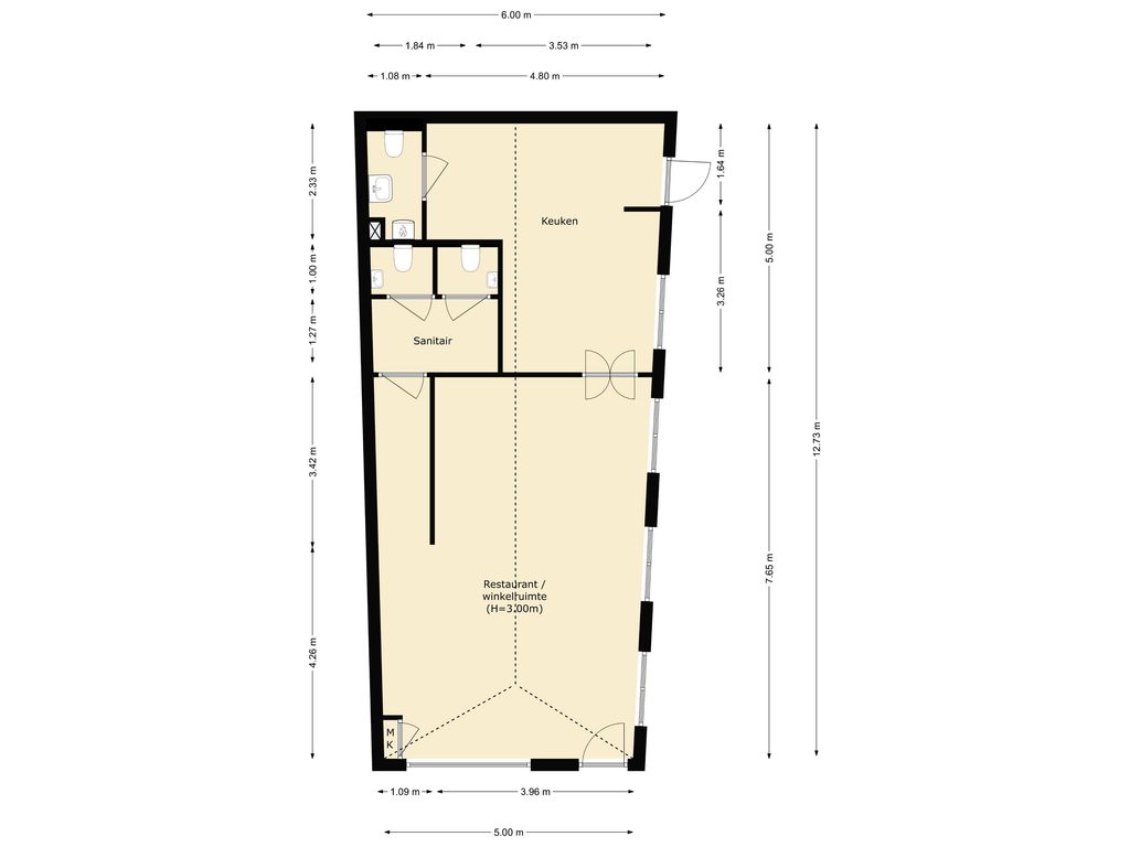
In de oude dorpskern van Waddinxveen gelegen multifunctionele bedrijfsruimte/kantoor/winkelpand met een verhuurbaar vloeroppervlakte van ca. 71m2 en inhoud ca. 258m3. Het pand is tot voor kort in gebruik geweest als bedrijf voor afhaal- en bezorgmaaltijden. De bedrijfsruimte is derhalve voorzien van keukeninventaris, dubbele toiletgroep en magazijnruimte.
Indeling:
Entree, meterkast met vernieuwde & uitgebreide groepenkast.
De winkelruimte (ca. 38m2) is voorzien van plavuizen, gestucd plafond, lambrisering en keukeninventaris.
Keuken (ca. 17m2) voorzien van keukeninventaris, afzuiginstallatie en zijdeur. Naastgelegen ruimte voorzien van toilet, fonteintje en opstelplaats C.V.-ketel van Intergas HR combi uit 2017
Open gang naar de dubbele toiletgroep beide voorzien van fonteintje.
Afmeting:
Winkelruimnte: ca. 7.65x5.00m
Keuken: ca. 5.00/3.26x4.80/2.90
Bestemming:
Het bestemmingsplan bij de pand is 'gemengd'. Dat wil zeggen; dienstverlening, detailhandel, bedrijfsmatige activiteiten cat. 1 & 2. Er is geen horecabestemming aanwezig.
Algemeen:
* bouwjaar 1927
* volledige (keuken)inventaris is inbegrepen;
* Intergas HR combi C.V-ketel uit 2017;
* dubbele toiletgroep en derde personeelstoilet;
* oplevering is mogelijk per direct;
Lees meer
Indeling:
Entree, meterkast met vernieuwde & uitgebreide groepenkast.
De winkelruimte (ca. 38m2) is voorzien van plavuizen, gestucd plafond, lambrisering en keukeninventaris.
Keuken (ca. 17m2) voorzien van keukeninventaris, afzuiginstallatie en zijdeur. Naastgelegen ruimte voorzien van toilet, fonteintje en opstelplaats C.V.-ketel van Intergas HR combi uit 2017
Open gang naar de dubbele toiletgroep beide voorzien van fonteintje.
Afmeting:
Winkelruimnte: ca. 7.65x5.00m
Keuken: ca. 5.00/3.26x4.80/2.90
Bestemming:
Het bestemmingsplan bij de pand is 'gemengd'. Dat wil zeggen; dienstverlening, detailhandel, bedrijfsmatige activiteiten cat. 1 & 2. Er is geen horecabestemming aanwezig.
Algemeen:
* bouwjaar 1927
* volledige (keuken)inventaris is inbegrepen;
* Intergas HR combi C.V-ketel uit 2017;
* dubbele toiletgroep en derde personeelstoilet;
* oplevering is mogelijk per direct;
Kenmerken
Overdracht
| Status | verkocht |
| Aanvaarding |
Bouw
| Hoofdbestemming | winkelruimte |
| Bouwjaar | 1927 |
| Oppervlakte | 71 m² |
| In units vanaf | 71 m² |
| Verdiepingen | 1 |
| Voorzieningen | Toilet, pantry, verwarming |
| Publieksgerichte dienstverlening | Ja |
| Detailhandel | Ja |
| Showroom | Ja |
| Oppervlakte | 71m² |
| In units vanaf | 71m² |
| Verkoopvloer oppervlakte | 42m² |
| Verdiepingen | 1 |
| Frontbreedte | 500 |
| Welstandsklasse type | B1 |
Buitenruimte
| Ligging | Wijkwinkelcentrum |
Parkeergelegenheid
| Faciliteiten | Openbaar parkeren |

























