Joubertstraat 206
2806 GL Gouda
beschikbaar
€ 489.000,- k.k.
Interesse in deze woning?
Omschrijving
Aan de brede en groene Joubertstraat in Gouda staat dit charmante jaren ’30-huis met karakter, comfort en een heerlijke zonnige tuin met garage. De huidige bewoners hebben hier ruim 30 jaar met plezier gewoond, dat zegt genoeg over de fijne sfeer van deze plek. Wonen met licht, warmte en karakter: de woonkamer is licht en uitnodigend, met een fraaie erker aan de voorzijde, een mooie mozaïek parketvloer en een werkende houtkachel. Aan de achterzijde ligt de halfopen keuken en de zonnige tuin biedt veel privacy. De woning ligt op slechts een steenworp afstand van het historische centrum van Gouda, het NS-Station en verschillende uitvalswegen, zoals de A12 en A20. Op loopafstand zijn tevens verschillende basis- en middelbare scholen te bereiken, net zoals verschillende supermarkten en sportvelden.
Bouwjaar: 1930 | Woonoppervlakte: 119 m² | Inhoud: 434 m³ | Garage/berging: 24 m²
Indeling
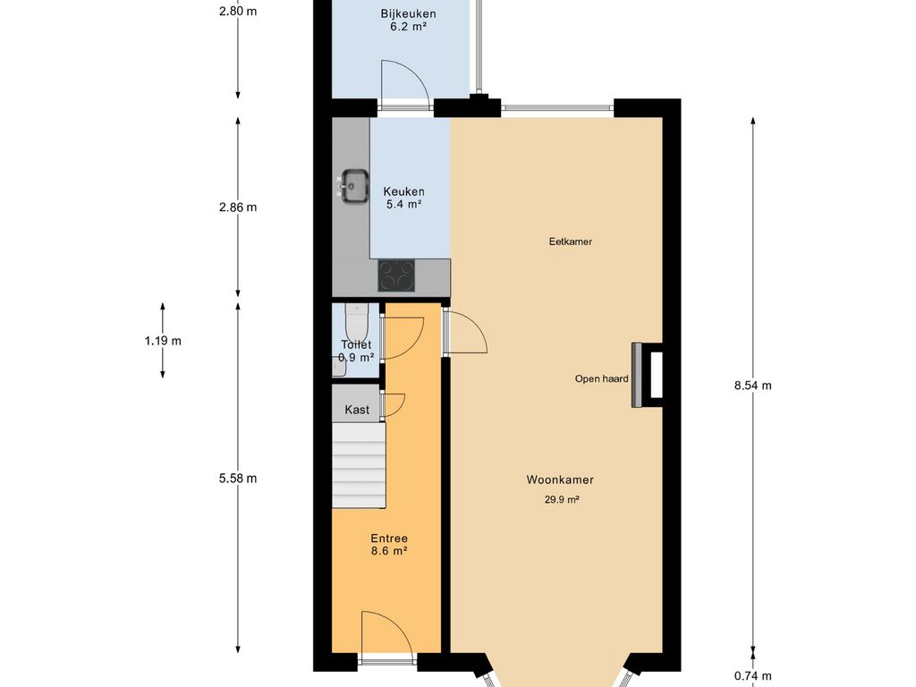
Begane grond
Via de entree met trapopgang naar de eerste verdieping, meterkast met daarnaast een garderobekast, een trapkast/berging (onder de trap) en toiletruimte bereikt u de lichte woonkamer met mooie mozaïek parketvloer, erker en houtkachel. De halfopen keuken beschikt over diverse apparatuur zoals een oven, vaatwasser en keramische kookplaat en geeft via een afgesloten, geïsoleerde en onderheide, klompenhok/bijkeuken. Hier bevindt zich ook de aansluiting voor wasapparatuur.
Eerste verdieping
Op de eerste verdieping bevinden zich drie slaapkamers en een badkamer met ligbad, wastafelmeubel en toilet. De hoofdslaapkamer, circa 12 m², bevindt zich aan de achterzijde en biedt toegang tot het balkon. De twee andere slaapkamers, van circa 11.5 m² en 5.4 m², zijn gesitueerd aan de voorzijde van de woning. De badkamer is netjes en voorzien van een bad met regendouche en handdouche, een 2e toilet en een wastafelmeubel.
Tweede verdieping
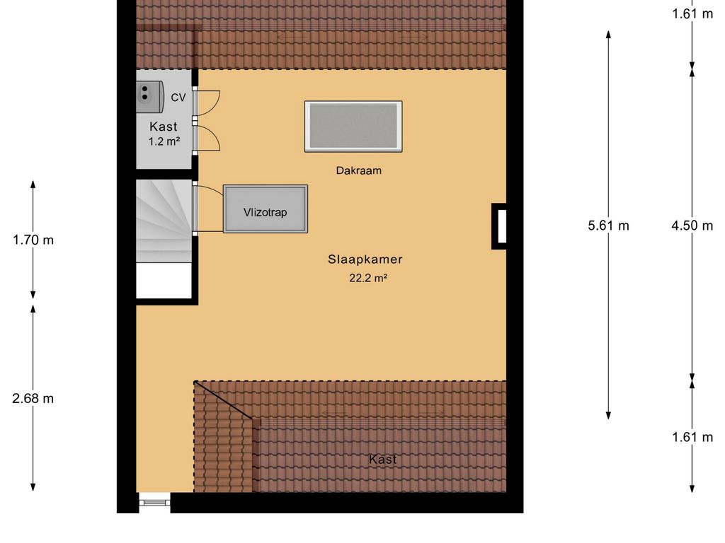
Op de tweede verdieping bevindt zich een ruime, afgesloten en geïsoleerde zolder-/slaapkamer met veel bergruimte, een dakraam en kopgevel: met circa 22 m² een fijne extra slaapkamer of werkkamer. Tevens is hier in een afgesloten ruimte de C.V.-installatie netjes weggewerkt.
Vliering
Via een vlizotrap is de vliering bereikbaar met een oppervlakte van circa 9 m².
Tuin
Verzorgde voortuin en 23m! diepe tuin op het westen biedt volop zon en ruimte. De tuin is in de loop der jaren opgehoogd en goed onderhouden. Achterin staat een garage met stenen voet en houten opbouw, ideaal voor opslag of hobby. Via de poort aan de zijkant kan de auto achterom.
Afmetingen:
Woonkamer ca. 5.58x3.38m.
Eetkamer ca 2.86x3.38m
Keuken ca. 2.86x2.20m.
Bijkeuken ca. 2.80x 2.20m.
Slaapkamer (1) ca. 3.86x3.40m.
Slaapkamer (2) ca. 3.74x3.09m.
Slaapkamer (3) ca. 2.03x2.67m.
Badkamer ca. 3.03/2.10x1.77/0.93m.
Balkon ca. 5.43x1.03m.
Slaapkamer (4) ca. 5.84x2.52m.
Vliering ca. 6.24x1.24m.
Achtertuin ca. 23.00x5.0m.
Bijzonderheden:
* bouwjaar 1930, woonoppervlakte 119 m², inhoud: 434 m³, garage/berging (met kanteldeur) 24 m²
* diepe achtertuin op het westen met garage en achterom
* rustige, brede straat met groenstrook en water aan de overzijde
* goede staat van onderhoud binnen- en buitenzijde
* pannen dak volledig vernieuwd (pannen, panlatten, folie en lood)
* dak-, vloer- en spouwmuurisolatie en vrijwel geheel dubbel glas
* vernieuwde meterkast
* nieuw kozijn naar balkon
* riolering vernieuwd (ca. 10 jaar geleden, 2 woningen op 1 aansluiting)
Kortom: een sfeervol, degelijk huis met veel ruimte, een zonnige tuin en belangrijke verbeteringen al gedaan. Hier kun je zó in, met ruimte om het helemaal eigen te maken.
* ligging nabij centrum van Gouda, NS-Station, verschillende uitvalswegen, zoals de A12 en A20, verschillende basis- en middelbare scholen, supermarkten en sportvelden.
Boer Makelaardij brengt je graag in contact met onze vaste hypotheekpartners Raymond Imbens of John Olsthoorn van Avant Groep Gouda voor een professioneel en onafhankelijk hypotheekadvies. Bel 085-8226222 of mail naar raymond@avantgroep.nl / john@avantgroep.nl
Lees meer
Bouwjaar: 1930 | Woonoppervlakte: 119 m² | Inhoud: 434 m³ | Garage/berging: 24 m²
Indeling
Begane grond
Via de entree met trapopgang naar de eerste verdieping, meterkast met daarnaast een garderobekast, een trapkast/berging (onder de trap) en toiletruimte bereikt u de lichte woonkamer met mooie mozaïek parketvloer, erker en houtkachel. De halfopen keuken beschikt over diverse apparatuur zoals een oven, vaatwasser en keramische kookplaat en geeft via een afgesloten, geïsoleerde en onderheide, klompenhok/bijkeuken. Hier bevindt zich ook de aansluiting voor wasapparatuur.
Eerste verdieping
Op de eerste verdieping bevinden zich drie slaapkamers en een badkamer met ligbad, wastafelmeubel en toilet. De hoofdslaapkamer, circa 12 m², bevindt zich aan de achterzijde en biedt toegang tot het balkon. De twee andere slaapkamers, van circa 11.5 m² en 5.4 m², zijn gesitueerd aan de voorzijde van de woning. De badkamer is netjes en voorzien van een bad met regendouche en handdouche, een 2e toilet en een wastafelmeubel.
Tweede verdieping
Op de tweede verdieping bevindt zich een ruime, afgesloten en geïsoleerde zolder-/slaapkamer met veel bergruimte, een dakraam en kopgevel: met circa 22 m² een fijne extra slaapkamer of werkkamer. Tevens is hier in een afgesloten ruimte de C.V.-installatie netjes weggewerkt.
Vliering
Via een vlizotrap is de vliering bereikbaar met een oppervlakte van circa 9 m².
Tuin
Verzorgde voortuin en 23m! diepe tuin op het westen biedt volop zon en ruimte. De tuin is in de loop der jaren opgehoogd en goed onderhouden. Achterin staat een garage met stenen voet en houten opbouw, ideaal voor opslag of hobby. Via de poort aan de zijkant kan de auto achterom.
Afmetingen:
Woonkamer ca. 5.58x3.38m.
Eetkamer ca 2.86x3.38m
Keuken ca. 2.86x2.20m.
Bijkeuken ca. 2.80x 2.20m.
Slaapkamer (1) ca. 3.86x3.40m.
Slaapkamer (2) ca. 3.74x3.09m.
Slaapkamer (3) ca. 2.03x2.67m.
Badkamer ca. 3.03/2.10x1.77/0.93m.
Balkon ca. 5.43x1.03m.
Slaapkamer (4) ca. 5.84x2.52m.
Vliering ca. 6.24x1.24m.
Achtertuin ca. 23.00x5.0m.
Bijzonderheden:
* bouwjaar 1930, woonoppervlakte 119 m², inhoud: 434 m³, garage/berging (met kanteldeur) 24 m²
* diepe achtertuin op het westen met garage en achterom
* rustige, brede straat met groenstrook en water aan de overzijde
* goede staat van onderhoud binnen- en buitenzijde
* pannen dak volledig vernieuwd (pannen, panlatten, folie en lood)
* dak-, vloer- en spouwmuurisolatie en vrijwel geheel dubbel glas
* vernieuwde meterkast
* nieuw kozijn naar balkon
* riolering vernieuwd (ca. 10 jaar geleden, 2 woningen op 1 aansluiting)
Kortom: een sfeervol, degelijk huis met veel ruimte, een zonnige tuin en belangrijke verbeteringen al gedaan. Hier kun je zó in, met ruimte om het helemaal eigen te maken.
* ligging nabij centrum van Gouda, NS-Station, verschillende uitvalswegen, zoals de A12 en A20, verschillende basis- en middelbare scholen, supermarkten en sportvelden.
Boer Makelaardij brengt je graag in contact met onze vaste hypotheekpartners Raymond Imbens of John Olsthoorn van Avant Groep Gouda voor een professioneel en onafhankelijk hypotheekadvies. Bel 085-8226222 of mail naar raymond@avantgroep.nl / john@avantgroep.nl
Kenmerken
Overdracht
| Vraagprijs | € 489.000,- k.k. |
| Status | beschikbaar |
| Aanvaarding | in overleg |
Bouw
| Soort woning | woonhuis |
| Soort woonhuis | eengezinswoning |
| Type woonhuis | tussenwoning |
| Aantal woonlagen | 3 |
| Bouwvorm | bestaande bouw |
| Bouwjaar | 1930 |
| Huidige bestemming | woonruimte |
| Onderhoud binnen | goed |
| Onderhoud buiten | goed |
| Voorzieningen | tv kabel, rookkanaal, glasvezel kabel, domotica, natuurlijke ventilatie |
| Isolatie | dakisolatie, muurisolatie, vloerisolatie, dubbel glas |
Energie
| Energielabel | C |
| Verwarming | cv ketel, houtkachel |
| Warm water | cv ketel |
| C.V.-ketel | gas gestookte combi-ketel uit 2013 van Nefit Proline HRC, eigendom |
Oppervlakten en inhoud
| Woonoppervlakte | 119 m² |
| Perceeloppervlakte | 201 m² |
| Inhoud | 434 m³ |
| Bergruimte oppervlakte | 24 m² |
Indeling
| Aantal kamers | 5 |
| Aantal slaapkamers | 4 |
Buitenruimte
| Ligging | aan rustige weg, in woonwijk, vrij uitzicht |
| Tuin | achtertuin met een oppervlakte van 109 m² en is gelegen op het westen |
Overig
| Parkeergelegenheid | parkeervergunningen |









































