Gansstraat 28
2802 CW Gouda
beschikbaar
€ 350.000,- k.k.
Interesse in deze woning?
Omschrijving
Gelegen in de prettige Vogelbuurt bevindt zich deze charmante eengezinswoning met keukenuitbouw, dakkapel en een zeer diepe achtertuin met berging en achterom. De woning ligt in een rustige straat met diverse voorzieningen in de directe omgeving, waaronder het historisch centrum, NS station, sportvoorzieningen, scholen, supermarkten, winkels en goede uitvalswegen.
De woning beschikt over een sfeervolle woonkamer , een uitgebouwde keuken, twee slaapkamers op de eerste verdieping, een badkamer met toegang tot het dakterras en een zolderverdieping met dakkapel. Een fijne gezinswoning met volop mogelijkheden.
Bouwjaar 1939, woonoppervlakte ca. 69m² (exclusief de zolderverdieping ca. 19m² welke net iets lager is dan 2.00m om tot woonoppervlakte gerekend te worden), balkon ca. 7m², berging ca. 6m², inhoud ca. 308m³.
Indeling
Begane grond:
Via de entree kom je binnen in de hal met toilet, trapopgang en praktische vaste kast.
De woonkamer is ruim opgezet (ca. 26 m²) en kenmerkt zich door de grote gemetselde schouw die direct in het oog springt. De ruimte is afgewerkt met granol wandafwerking en een laminaatvloer. Aan de achterzijde zorgen de dubbele openslaande deuren voor een prettige lichtinval en een directe verbinding met de tuin. Onder de deuren bevindt zich een convectorput.
De keuken (ca. 6m²) is aan de achterzijde uitgebouwd en eenvoudig uitgevoerd. De ruimte is grotendeels betegeld en biedt diverse opbergmogelijkheden. Vanuit de keuken is er toegang tot de achtertuin en de aangrenzende berging met opstelplaats voor de cv-installatie.
Eerste verdieping:
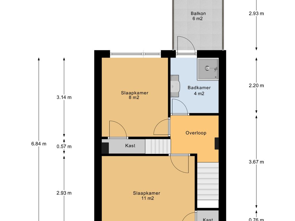
De overloop geeft toegang tot twee slaapkamers en de badkamer.
De slaapkamer aan de voorzijde van ca. 11m² beschikt over een vaste kast. De slaapkamer aan de achterzijde van ca. 8m² is eveneens voorzien van een vaste kast.
De badkamer van ca. 4m² is uitgerust met een douchecabine, wastafelmeubel, handdoekenradiator en aansluiting voor de wasmachine. Vanuit de badkamer is er toegang tot het dakterras, een prettige extra buitenruimte.
Tweede verdieping:
Via een vaste trap bereik je de tweede verdieping. De voorzolder is afgewerkt met kunststof schroten en biedt bergruimte.
De zolderslaapkamer van ca. 11m² is voorzien van een dakkapel, wat zorgt voor extra ruimte en daglicht. Deze verdieping is geschikt als extra slaapkamer, werkruimte of hobbykamer.
Buitenruimte
De woning beschikt over een zeer diepe achtertuin, wat uitzonderlijk is voor dit type woning. De tuin biedt volop mogelijkheden voor het creëren van meerdere zitplekken, speelruimte of een groene oase. Achterin de tuin bevindt zich een berging.
Afmetingen:
Woonkamer ca. 6.92x4.64 m.
Keuken ca. 3.73x1.65 m.
Slaapkamer (1) ca. 2.93x3.74 m.
Slaapkamer (2) ca. 3.14x2.63 m.
Badkamer ca. 2.20x1.91 m.
Balkon ca. 2.93x2.02 m.
Zolderkamer ca. 2.47x4.40 m.
Berging ca. 3.06x1.87 m.
Algemeen:
* Bouwjaar 1939, woonoppervlakte ca. 69m², zolderverdieping ca. 19m², balkon ca. 7m², berging ca. 6m², inhoud ca. 308m³;
* De woning is netjes onderhouden;
* Parkeren met parkeervergunning. Check de mogelijkheden op de Stadskaart parkeervergunningen via ParkeerService Gouda;
* Voorzien van 2 slaapkamers op de eerste verdieping en een ruime zolderkamer;
* Zeer diepe achtertuin,
* Gunstig gelegen t.o.v. diverse winkels, sportvoorzieningen, scholen en uitvalswegen;
* Voorzien van energielabel E;
* Het betreft een voormalig verhuurde woning, opgenomen wordt de ouderdoms-, de asbest- en de nimmerbewoond clausule;
* wij verwijzen je tot slot naar de “nadere informatie bij het kopen van een onroerende zaak” welke in Move is toegevoegd aan de informatie bij deze woning.
Boer Makelaardij kan jou in contact brengen met onze vaste partner Raymond Imbens of John Olsthoorn van Avant Groep Gouda voor een professioneel, onafhankelijk hypotheekadvies, 085-8226222, raymond@avantgroep.nl/john@avantgroep.nl.
Lees meer
De woning beschikt over een sfeervolle woonkamer , een uitgebouwde keuken, twee slaapkamers op de eerste verdieping, een badkamer met toegang tot het dakterras en een zolderverdieping met dakkapel. Een fijne gezinswoning met volop mogelijkheden.
Bouwjaar 1939, woonoppervlakte ca. 69m² (exclusief de zolderverdieping ca. 19m² welke net iets lager is dan 2.00m om tot woonoppervlakte gerekend te worden), balkon ca. 7m², berging ca. 6m², inhoud ca. 308m³.
Indeling
Begane grond:
Via de entree kom je binnen in de hal met toilet, trapopgang en praktische vaste kast.
De woonkamer is ruim opgezet (ca. 26 m²) en kenmerkt zich door de grote gemetselde schouw die direct in het oog springt. De ruimte is afgewerkt met granol wandafwerking en een laminaatvloer. Aan de achterzijde zorgen de dubbele openslaande deuren voor een prettige lichtinval en een directe verbinding met de tuin. Onder de deuren bevindt zich een convectorput.
De keuken (ca. 6m²) is aan de achterzijde uitgebouwd en eenvoudig uitgevoerd. De ruimte is grotendeels betegeld en biedt diverse opbergmogelijkheden. Vanuit de keuken is er toegang tot de achtertuin en de aangrenzende berging met opstelplaats voor de cv-installatie.
Eerste verdieping:
De overloop geeft toegang tot twee slaapkamers en de badkamer.
De slaapkamer aan de voorzijde van ca. 11m² beschikt over een vaste kast. De slaapkamer aan de achterzijde van ca. 8m² is eveneens voorzien van een vaste kast.
De badkamer van ca. 4m² is uitgerust met een douchecabine, wastafelmeubel, handdoekenradiator en aansluiting voor de wasmachine. Vanuit de badkamer is er toegang tot het dakterras, een prettige extra buitenruimte.
Tweede verdieping:
Via een vaste trap bereik je de tweede verdieping. De voorzolder is afgewerkt met kunststof schroten en biedt bergruimte.
De zolderslaapkamer van ca. 11m² is voorzien van een dakkapel, wat zorgt voor extra ruimte en daglicht. Deze verdieping is geschikt als extra slaapkamer, werkruimte of hobbykamer.
Buitenruimte
De woning beschikt over een zeer diepe achtertuin, wat uitzonderlijk is voor dit type woning. De tuin biedt volop mogelijkheden voor het creëren van meerdere zitplekken, speelruimte of een groene oase. Achterin de tuin bevindt zich een berging.
Afmetingen:
Woonkamer ca. 6.92x4.64 m.
Keuken ca. 3.73x1.65 m.
Slaapkamer (1) ca. 2.93x3.74 m.
Slaapkamer (2) ca. 3.14x2.63 m.
Badkamer ca. 2.20x1.91 m.
Balkon ca. 2.93x2.02 m.
Zolderkamer ca. 2.47x4.40 m.
Berging ca. 3.06x1.87 m.
Algemeen:
* Bouwjaar 1939, woonoppervlakte ca. 69m², zolderverdieping ca. 19m², balkon ca. 7m², berging ca. 6m², inhoud ca. 308m³;
* De woning is netjes onderhouden;
* Parkeren met parkeervergunning. Check de mogelijkheden op de Stadskaart parkeervergunningen via ParkeerService Gouda;
* Voorzien van 2 slaapkamers op de eerste verdieping en een ruime zolderkamer;
* Zeer diepe achtertuin,
* Gunstig gelegen t.o.v. diverse winkels, sportvoorzieningen, scholen en uitvalswegen;
* Voorzien van energielabel E;
* Het betreft een voormalig verhuurde woning, opgenomen wordt de ouderdoms-, de asbest- en de nimmerbewoond clausule;
* wij verwijzen je tot slot naar de “nadere informatie bij het kopen van een onroerende zaak” welke in Move is toegevoegd aan de informatie bij deze woning.
Boer Makelaardij kan jou in contact brengen met onze vaste partner Raymond Imbens of John Olsthoorn van Avant Groep Gouda voor een professioneel, onafhankelijk hypotheekadvies, 085-8226222, raymond@avantgroep.nl/john@avantgroep.nl.
Kenmerken
Overdracht
| Vraagprijs | € 350.000,- k.k. |
| Status | beschikbaar |
| Aanvaarding | in overleg |
Bouw
| Soort woning | woonhuis |
| Soort woonhuis | eengezinswoning |
| Type woonhuis | tussenwoning |
| Aantal woonlagen | 3 |
| Bouwvorm | bestaande bouw |
| Bouwjaar | 1939 |
| Huidige bestemming | woonruimte |
| Onderhoud binnen | goed |
| Onderhoud buiten | goed |
| Voorzieningen | tv kabel, natuurlijke ventilatie |
| Isolatie | hr glas |
Energie
| Energielabel | E |
| Verwarming | cv ketel |
| Warm water | cv ketel |
| C.V.-ketel | gas gestookte combi-ketel uit 2019 van A.W.B. ThermoElegance, eigendom |
Oppervlakten en inhoud
| Woonoppervlakte | 69 m² |
| Perceeloppervlakte | 123 m² |
| Inhoud | 308 m³ |
| Inpandigeruimte oppervlakte | 19 m² |
| Bergruimte oppervlakte | 6 m² |
Indeling
| Aantal kamers | 4 |
| Aantal slaapkamers | 3 |
Buitenruimte
| Ligging | aan rustige weg, in woonwijk |
| Tuin | achtertuin met een oppervlakte van 74 m² en is gelegen op het noordoosten |
Overig
| Garage | geen garage |
| Parkeergelegenheid | betaald parkeren, parkeervergunningen |
| Schuur/berging | aangebouwd hout |







































