Eline Verestraat 3
2801 SW Gouda
verkocht
Interesse in deze woning?

Omschrijving
Bent u op zoek naar een gezinswoning met volop mogelijkheden om er echt úw plek van te maken? Deze verrassend ruime woning met drie volwaardige verdiepingen biedt een fijne basis voor wie droomt van een eigen stijl, comfort en karakter. Dankzij het balkon en de rustige, groene ligging is het hier heerlijk wonen, perfect voor starters of jonge gezinnen die graag de handen uit de mouwen steken.
De woning is toe aan een frisse update. Precies wat dit huis zo interessant maakt: met wat modernisering maak je hier eenvoudig een sfeervol en eigentijds thuis van. Bouwjaar 1956, woonoppervlakte circa 106 m², balkon ca. 8m, inhoud circa 334 m³.
Begane grond
Bij binnenkomst komt u in de entreehal met meterkast en trapopgang naar de eerste verdieping. Op deze verdieping vindt u drie kamers: twee ruime kamers van circa 9 m² aan de voor- en achterzijde, en een kleinere kamer van circa 6 m². Deze indeling maakt de begane grond uitermate geschikt voor gebruik als kantoorruimte, opslagruimte of hobbykamer. Tevens bevindt zich hier de cv-installatie en een praktische inbouwkast voor opslag.
Eerste verdieping
De eerste verdieping is ingericht als woonverdieping. Je komt boven op de lichte overloop, die toegang biedt tot een ruime en nette woonkamer aan de achterzijde van het huis. Vanuit hier stap je zo het balkon op met uitzicht over het groen. Een heerlijk plekje voor uw ochtendkoffie of avondzon.
Aan de voorzijde bevindt zich de keuken, eenvoudig van opzet maar met voldoende daglicht en ruimte om te koken. Vanuit de hal vind je een separaat toilet. In de hal is bovendien een handige kast beschikbaar voor extra voorraad of schoonmaakmiddelen.
Tweede verdieping
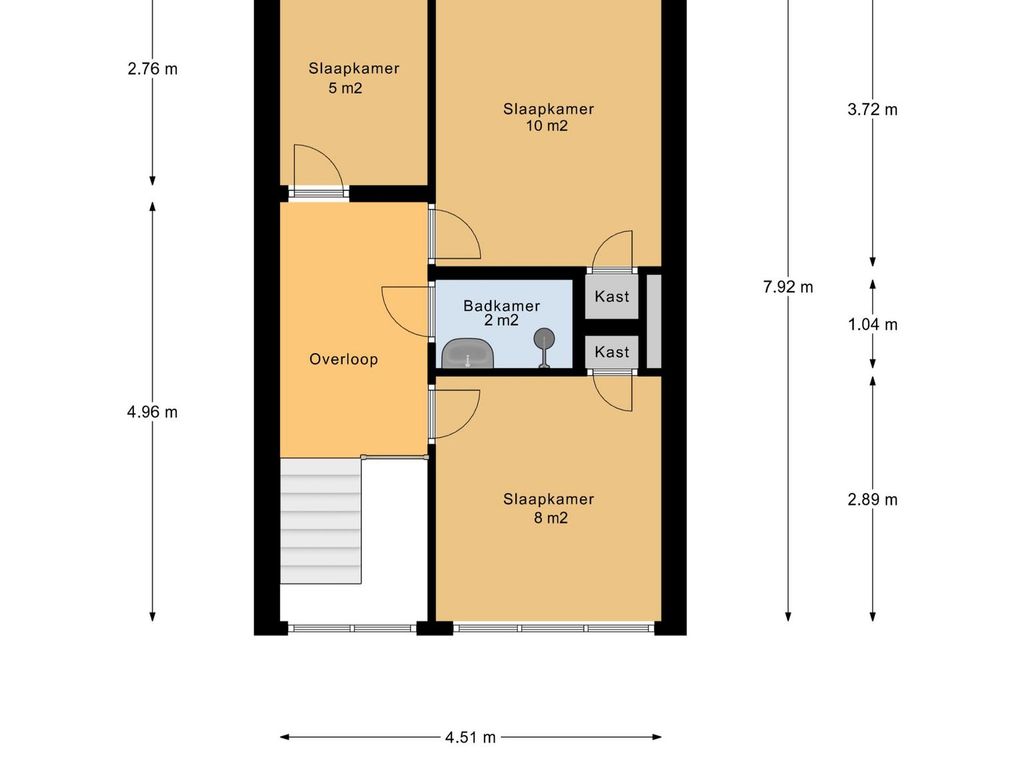
De tweede verdieping biedt nog eens drie slaapkamers: twee aan de achterzijde, waarvan één met toegang tot een eigen klein balkon en een derde kamer aan de voorzijde. De grootste slaapkamer van circa 10 m² heeft veel lichtinval en een prettig uitzicht op de groene woonomgeving. De twee kleinere kamers (8 en 5 m²) zijn uitermate geschikt als kinderkamer, logeerkamer of thuiswerkplek.
In het midden van de verdieping bevindt zich de badkamer, voorzien van douche en wastafel. Daarnaast beschikt deze verdieping over twee vaste kasten voor extra opbergruimte.
Ben je op zoek naar een woning met potentie, ruimte én een fijne ligging? Dan is Eline Verestraat 3 in Gouda zeker een bezichtiging waard.
Algemeen:
* Bouwjaar 1956, woonoppervlakte circa 106 m², balkon ca. 8m, inhoud circa 334 m³;
* Drie verdiepingen met functionele indeling;
* Maar liefst zes kamers, waarvan vijf slaapkamers;
* Balkon aan zowel voor- als achterzijde;
* Goede lichtinval en doordachte plattegrond;
* Eenvoudige, doch verzorgde keuken en badkamer;
* C.v.-installatie op begane grond;
* Veel bergruimte in vaste kasten;
* Asbest inventarisatie aanwezig;'
* Rustige en groene woonomgeving in Gouda;
* Perfecte woning om naar eigen wens te moderniseren;
* Koper is verplicht om tot uiterlijk vijf jaar na de ondertekening van de akte van
levering het verkochte daadwerkelijk als hoofdbewoner zelf te bewonen;
* in de koopovereenkomst zal een nimmer bewoond clausule opgenomen worden;
* Wij verwijzen je tot slot naar de “nadere informatie bij het kopen van een onroerende zaak” welke is toegevoegd aan de brochure van deze woning.
Boer Makelaardij brengt je graag in contact met onze vaste hypotheekpartners Raymond Imbens of John Olsthoorn van Avant Groep Gouda voor een professioneel en onafhankelijk hypotheekadvies. Bel 085-8226222 of mail naar raymond@avantgroep.nl / john@avantgroep.nl
Lees meer
De woning is toe aan een frisse update. Precies wat dit huis zo interessant maakt: met wat modernisering maak je hier eenvoudig een sfeervol en eigentijds thuis van. Bouwjaar 1956, woonoppervlakte circa 106 m², balkon ca. 8m, inhoud circa 334 m³.
Begane grond
Bij binnenkomst komt u in de entreehal met meterkast en trapopgang naar de eerste verdieping. Op deze verdieping vindt u drie kamers: twee ruime kamers van circa 9 m² aan de voor- en achterzijde, en een kleinere kamer van circa 6 m². Deze indeling maakt de begane grond uitermate geschikt voor gebruik als kantoorruimte, opslagruimte of hobbykamer. Tevens bevindt zich hier de cv-installatie en een praktische inbouwkast voor opslag.
Eerste verdieping
De eerste verdieping is ingericht als woonverdieping. Je komt boven op de lichte overloop, die toegang biedt tot een ruime en nette woonkamer aan de achterzijde van het huis. Vanuit hier stap je zo het balkon op met uitzicht over het groen. Een heerlijk plekje voor uw ochtendkoffie of avondzon.
Aan de voorzijde bevindt zich de keuken, eenvoudig van opzet maar met voldoende daglicht en ruimte om te koken. Vanuit de hal vind je een separaat toilet. In de hal is bovendien een handige kast beschikbaar voor extra voorraad of schoonmaakmiddelen.
Tweede verdieping
De tweede verdieping biedt nog eens drie slaapkamers: twee aan de achterzijde, waarvan één met toegang tot een eigen klein balkon en een derde kamer aan de voorzijde. De grootste slaapkamer van circa 10 m² heeft veel lichtinval en een prettig uitzicht op de groene woonomgeving. De twee kleinere kamers (8 en 5 m²) zijn uitermate geschikt als kinderkamer, logeerkamer of thuiswerkplek.
In het midden van de verdieping bevindt zich de badkamer, voorzien van douche en wastafel. Daarnaast beschikt deze verdieping over twee vaste kasten voor extra opbergruimte.
Ben je op zoek naar een woning met potentie, ruimte én een fijne ligging? Dan is Eline Verestraat 3 in Gouda zeker een bezichtiging waard.
Algemeen:
* Bouwjaar 1956, woonoppervlakte circa 106 m², balkon ca. 8m, inhoud circa 334 m³;
* Drie verdiepingen met functionele indeling;
* Maar liefst zes kamers, waarvan vijf slaapkamers;
* Balkon aan zowel voor- als achterzijde;
* Goede lichtinval en doordachte plattegrond;
* Eenvoudige, doch verzorgde keuken en badkamer;
* C.v.-installatie op begane grond;
* Veel bergruimte in vaste kasten;
* Asbest inventarisatie aanwezig;'
* Rustige en groene woonomgeving in Gouda;
* Perfecte woning om naar eigen wens te moderniseren;
* Koper is verplicht om tot uiterlijk vijf jaar na de ondertekening van de akte van
levering het verkochte daadwerkelijk als hoofdbewoner zelf te bewonen;
* in de koopovereenkomst zal een nimmer bewoond clausule opgenomen worden;
* Wij verwijzen je tot slot naar de “nadere informatie bij het kopen van een onroerende zaak” welke is toegevoegd aan de brochure van deze woning.
Boer Makelaardij brengt je graag in contact met onze vaste hypotheekpartners Raymond Imbens of John Olsthoorn van Avant Groep Gouda voor een professioneel en onafhankelijk hypotheekadvies. Bel 085-8226222 of mail naar raymond@avantgroep.nl / john@avantgroep.nl
Kenmerken
Overdracht
Status | verkocht |
Aanvaarding | in overleg |
Bouw
Soort woning | woonhuis |
Soort woonhuis | eengezinswoning |
Type woonhuis | tussenwoning |
Aantal woonlagen | 3 |
Bouwvorm | bestaande bouw |
Bouwjaar | 1956 |
Huidige bestemming | woonruimte |
Onderhoud binnen | matig |
Onderhoud buiten | matig |
Voorzieningen | natuurlijke ventilatie |
Isolatie | dubbel glas, hr glas |
Energie
Energielabel | G |
Verwarming | cv ketel |
Warm water | cv ketel |
C.V.-ketel | gas gestookte combi-ketel uit 2016 van Intergas HRE Combi, eigendom |
Oppervlakten en inhoud
Woonoppervlakte | 106 m² |
Perceeloppervlakte | 46 m² |
Inhoud | 334 m³ |
Indeling
Aantal kamers | 7 |
Aantal slaapkamers | 5 |
Buitenruimte
Ligging | in woonwijk |
Overig
Parkeergelegenheid | openbaar parkeren |
Schuur/berging | inpandig |