Dunantstraat 100
2851 CB Haastrecht
beschikbaar
€ 395.000,- k.k.
Interesse in deze woning?
Omschrijving
Gelegen in het sfeervolle Haastrecht, op loopafstand van winkels en restaurants en nabij de prachtige Hollandsche IJssel, bevindt zich deze goed onderhouden eengezinswoning met vier slaapkamers, zonnige achtertuin en energielabel B. De woning is voorzien van 4 zonnepanelen en een elektrisch zonnescherm en combineert comfort met een fijne, centrale ligging.
De rustige straat, het groene uitzicht op de dijk aan de voorzijde en de verzorgd aangelegde achtertuin maken dit een heerlijke plek om thuis te komen.
Bouwjaar 1967, woonoppervlakte ca. 86m², berging ca. 7m², inhoud ca. 307m³.
Indeling
Begane grond:
Via de hal met meterkast (8 groepen en 2 aardlekschakelaars) en modern toilet betreed je de woning.
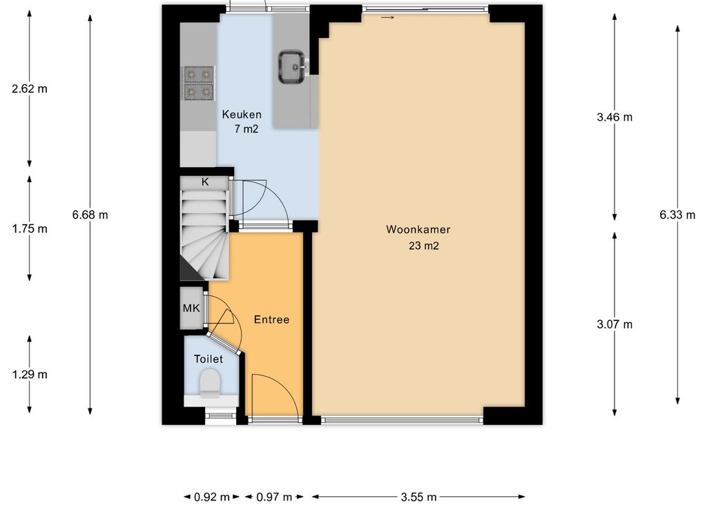
De woonkamer (ca. 23 m²) is sfeervol afgewerkt met een eikenhouten vloer, gestucte wanden en een geschuurd plafond. Dankzij de grote raampartijen en de schuifpui aan de achterzijde is er veel natuurlijke lichtinval en een prettige verbinding met de tuin.
De open keuken (2022) (ca. 7m²) bevindt zich aan de achterzijde en is voorzien van een praktische kelderkast, spoeleiland en diverse inbouwapparatuur, waaronder een inductiekookplaat, afzuigkap, vaatwasser, combimagnetron en koel-/vriescombinatie. Daarnaast is er een close-in boiler aanwezig voor direct warm water.
Eerste verdieping:
De overloop met vaste kast geeft toegang tot drie slaapkamers en de vergrote badkamer.
Aan de voorzijde bevinden zich twee slaapkamers (één van 5m² en één van 11m²), aan de achterzijde de derde slaapkamer (ca. 8m²).
De vergrote badkamer van ca. 5m² is compleet uitgevoerd en beschikt over een inloopdouche, toilet, wastafelmeubel, aansluiting voor de wasmachine en mechanische ventilatie.
Tweede verdieping:
De open zolderverdieping van ca. 11m² is verrassend ruim en voorzien van knieschotten voor extra bergruimte, een dakraam voor daglichttoetreding en inbouwspots. Hier bevinden zich tevens de Intergas cv-combiketel en de mechanische ventilatie-unit.
Deze verdieping is uitstekend geschikt als vierde slaapkamer, werkruimte of hobbykamer.
Buitenruimte
De fraai aangelegde achtertuin (2025) is verzorgd en biedt voldoende ruimte om heerlijk buiten te zitten. Daarnaast is de woning voorzien van een elektrisch zonnescherm, wat extra comfort biedt op zonnige dagen.
Afmetingen:
Woonkamer ca. 6.33x3.44m.
Keuken ca. 2.62x2.16m.
Slaapkamer (1) ca. 1.97x2.76 m.
Slaapkamer (2) ca. 3.81x2.85 m.
Slaapkamer (3) ca. 2.58x2.98 m.
Badkamer ca. 2.46x2.62 m.
Zolderkamer ca. 3.22x5.74 m.
Berging ca. 2.82x2.51 m.
Algemeen:
* Bouwjaar 1967, woonoppervlakte ca. 86m², berging ca. 7m², inhoud ca. 307m³;
* Voorzien van energielabel B;
* Spouwmuurisolatie (2021) (isolatieparels);
* Elektrisch zonnescherm;
* Voorzien van 4 zonnepanelen (2018);
* Verzorgde, mooi aangelegde achtertuin (2025);
* Vier slaapkamers;
* wij verwijzen je tot slot naar de “nadere informatie bij het kopen van een onroerende zaak” welke in Move is toegevoegd aan de informatie bij deze woning.
Boer Makelaardij kan jou in contact brengen met onze vaste partner Raymond Imbens of John Olsthoorn van Avant Groep Gouda voor een professioneel, onafhankelijk hypotheekadvies, 085-8226222, raymond@avantgroep.nl/john@avantgroep.nl.
Lees meer
De rustige straat, het groene uitzicht op de dijk aan de voorzijde en de verzorgd aangelegde achtertuin maken dit een heerlijke plek om thuis te komen.
Bouwjaar 1967, woonoppervlakte ca. 86m², berging ca. 7m², inhoud ca. 307m³.
Indeling
Begane grond:
Via de hal met meterkast (8 groepen en 2 aardlekschakelaars) en modern toilet betreed je de woning.
De woonkamer (ca. 23 m²) is sfeervol afgewerkt met een eikenhouten vloer, gestucte wanden en een geschuurd plafond. Dankzij de grote raampartijen en de schuifpui aan de achterzijde is er veel natuurlijke lichtinval en een prettige verbinding met de tuin.
De open keuken (2022) (ca. 7m²) bevindt zich aan de achterzijde en is voorzien van een praktische kelderkast, spoeleiland en diverse inbouwapparatuur, waaronder een inductiekookplaat, afzuigkap, vaatwasser, combimagnetron en koel-/vriescombinatie. Daarnaast is er een close-in boiler aanwezig voor direct warm water.
Eerste verdieping:
De overloop met vaste kast geeft toegang tot drie slaapkamers en de vergrote badkamer.
Aan de voorzijde bevinden zich twee slaapkamers (één van 5m² en één van 11m²), aan de achterzijde de derde slaapkamer (ca. 8m²).
De vergrote badkamer van ca. 5m² is compleet uitgevoerd en beschikt over een inloopdouche, toilet, wastafelmeubel, aansluiting voor de wasmachine en mechanische ventilatie.
Tweede verdieping:
De open zolderverdieping van ca. 11m² is verrassend ruim en voorzien van knieschotten voor extra bergruimte, een dakraam voor daglichttoetreding en inbouwspots. Hier bevinden zich tevens de Intergas cv-combiketel en de mechanische ventilatie-unit.
Deze verdieping is uitstekend geschikt als vierde slaapkamer, werkruimte of hobbykamer.
Buitenruimte
De fraai aangelegde achtertuin (2025) is verzorgd en biedt voldoende ruimte om heerlijk buiten te zitten. Daarnaast is de woning voorzien van een elektrisch zonnescherm, wat extra comfort biedt op zonnige dagen.
Afmetingen:
Woonkamer ca. 6.33x3.44m.
Keuken ca. 2.62x2.16m.
Slaapkamer (1) ca. 1.97x2.76 m.
Slaapkamer (2) ca. 3.81x2.85 m.
Slaapkamer (3) ca. 2.58x2.98 m.
Badkamer ca. 2.46x2.62 m.
Zolderkamer ca. 3.22x5.74 m.
Berging ca. 2.82x2.51 m.
Algemeen:
* Bouwjaar 1967, woonoppervlakte ca. 86m², berging ca. 7m², inhoud ca. 307m³;
* Voorzien van energielabel B;
* Spouwmuurisolatie (2021) (isolatieparels);
* Elektrisch zonnescherm;
* Voorzien van 4 zonnepanelen (2018);
* Verzorgde, mooi aangelegde achtertuin (2025);
* Vier slaapkamers;
* wij verwijzen je tot slot naar de “nadere informatie bij het kopen van een onroerende zaak” welke in Move is toegevoegd aan de informatie bij deze woning.
Boer Makelaardij kan jou in contact brengen met onze vaste partner Raymond Imbens of John Olsthoorn van Avant Groep Gouda voor een professioneel, onafhankelijk hypotheekadvies, 085-8226222, raymond@avantgroep.nl/john@avantgroep.nl.
Kenmerken
Overdracht
| Vraagprijs | € 395.000,- k.k. |
| Status | beschikbaar |
| Aanvaarding | in overleg |
Bouw
| Soort woning | woonhuis |
| Soort woonhuis | eengezinswoning |
| Type woonhuis | tussenwoning |
| Aantal woonlagen | 3 |
| Bouwvorm | bestaande bouw |
| Bouwjaar | 1967 |
| Huidige bestemming | woonruimte |
| Onderhoud binnen | goed |
| Onderhoud buiten | goed |
| Voorzieningen | mechanische ventilatie, dakraam, glasvezel kabel, zonnepanelen |
| Isolatie | dakisolatie, muurisolatie, vloerisolatie, dubbel glas, hr glas |
Energie
| Energielabel | B |
| Verwarming | cv ketel |
| Warm water | cv ketel |
| C.V.-ketel | gas gestookte cv-ketel uit 2007 van Intergas, eigendom |
Oppervlakten en inhoud
| Woonoppervlakte | 86 m² |
| Perceeloppervlakte | 127 m² |
| Inhoud | 307 m³ |
| Bergruimte oppervlakte | 7 m² |
Indeling
| Aantal kamers | 5 |
| Aantal slaapkamers | 4 |
Buitenruimte
| Ligging | in woonwijk |
| Tuin | achtertuin met een oppervlakte van 74 m² en is gelegen op het zuiden |
Overig
| Garage | geen garage |
| Parkeergelegenheid | openbaar parkeren |
| Schuur/berging | vrijstaand steen |









































