Binnenpolderweg 30
2807 LB Gouda
verkocht
Interesse in deze woning?
Omschrijving
Droomt u van een ruime nagenoeg vrijstaande woning met veel licht, comfort én een zonnige tuin? Dan is de woning aan de Binnenpolderweg 30 in Gouda precies wat u zoekt! Deze goed onderhouden woning combineert ruimte, sfeer en functionaliteit op een ideale manier. Met een royale garage en een prachtige tuin is dit het perfecte gezinshuis op een rustige, groene locatie waar u zich direct thuis zult voelen.
Bouwjaar 1990, woonoppervlakte circa 161 m², garage ca. 18m², inhoud ca. 653m³.
Begane grond
Bij binnenkomst voelt u direct de prettige, lichte sfeer. In de hal vindt u de meterkast, trapopgang, garderobe en een modern toilet. Vanuit hier loopt u door naar de royale woonkamer van ca. 53m2 met een prachtige houten vloer. Dankzij de grote raampartijen geniet u van volop daglicht en een heerlijk uitzicht op de tuin. De gezellige kachel zorgt voor een warme, uitnodigende sfeer.
Aan de voorzijde bevindt zich de open keuken, uitgerust met volop kastruimte, een oven, elektrische kookplaat, afzuigkap en een vaatwasser. Terwijl u kookt, kijkt u uit over de straat. Prettig voor wie graag contact houdt met de omgeving.
Vanuit de hal is ook de ruime, aangebouwde garage bereikbaar, ideaal voor fietsen, opslag of uw auto.
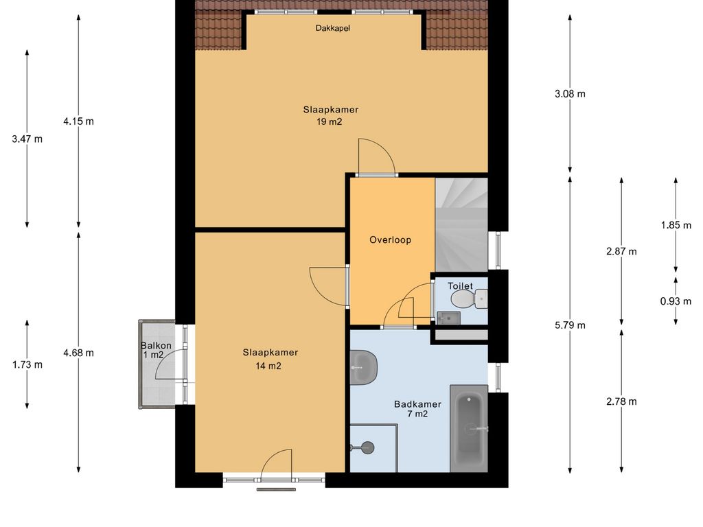
Eerste verdieping
Op de eerste verdieping vindt u twee ruime slaapkamers en een verzorgde badkamer.
De hoofdslaapkamer aan de voorzijde heeft een eigen speels balkon. De tweede slaapkamer (voorheen 2 kamers) aan de achterzijde is eveneens royaal en beschikt over een dakkapel.
De badkamer is stijlvol afgewerkt met neutrale tegels en voorzien van een ligbad, aparte douche, wastafel met granieten blad. Daarnaast is deze verdieping voorzien van een tweede toilet.
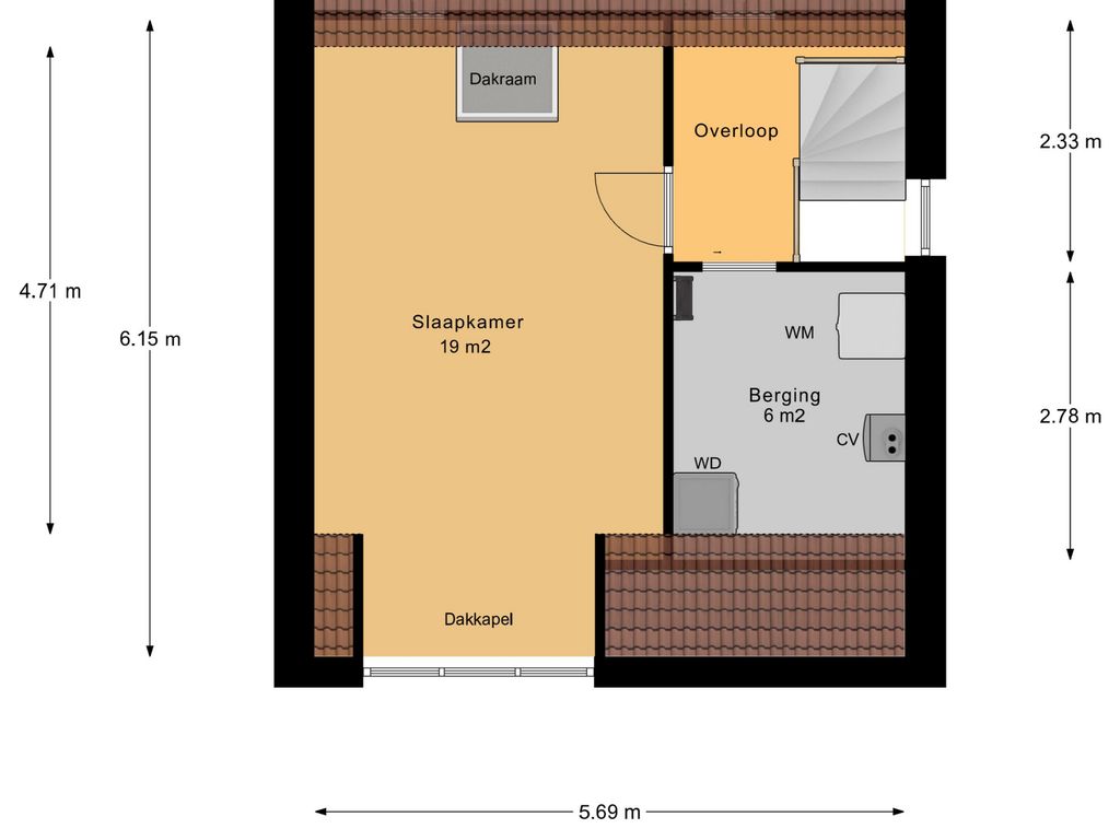
Tweede verdieping
De tweede verdieping biedt een derde, bijzonder ruime slaapkamer met dakkapel aan de voorzijde. Dankzij het vele licht is dit een fijne, open ruimte die ook uitstekend kan dienen als werkkamer of hobbyruimte. Verder vindt u hier een praktische berging met aansluitingen voor de wasmachine en droger, én de cv-installatie.
Zolder
Via een vlizotrap bereikt u de zolderruimte over de volle breedte van de woning. Perfect voor het opbergen van koffers, seizoensspullen of archiefdozen.
Tuin
Rondom de woning ligt een verzorgde, groene tuin. Er is ruimte voor meerdere zithoeken en een eettafel, omringd door bloeiende hortensia’s en volwassen beplanting. U kijkt uit op het naastliggende slootje, wat zorgt voor een extra gevoel van ruimte en natuur.
Afmetingen:
Woonkamer: ca. 5.53/4.51x5.69x3.60 m.
Keuken ca. 3.96x3.41 m.
Slaapkamer (1) ca. 4.68x2.92 m.
Slaapkamer (2) ca. 4.15/3.08x5.71 m.
Badkamer ca. 2.78x2.69 m.
Slaapkamer (3) ca. 6.15x3.42 m.
Berging / Garage ca. 6.43x2.79 m.
Algemeen:
* Bouwjaar 1990, woonoppervlakte circa 161 m², garage ca. 18m², inhoud ca. 653m³
* Goede staat van onderhoud binnen- en buitenzijde
* Vrijstaande woning, enkel geschakeld met de garage
* Garage en oprit met mogelijkheid aanbrengen van een laadpaal
* Lichte zeer ruime woonkamer met grote raampartijen
* 3 ruime slaapkamers (voorheen 4 kamers)
* Zonnige ruime tuin aan 3 zijden
* Rustige, kindvriendelijke ligging nabij scholen, winkels, uitvalswegen en natuur;
* Heeft u een auto? Check de mogelijkheid tot het verkrijgen van een parkeervergunning op de Stadskaart parkeervergunningen via ParkeerService Gouda;
* Wij verwijzen je tot slot naar de “nadere informatie bij het kopen van een onroerende zaak” welke in Move is toegevoegd aan de informatie bij deze woning.
Boer Makelaardij brengt je graag in contact met onze vaste hypotheekpartners Raymond Imbens of John Olsthoorn van Avant Groep Gouda voor een professioneel en onafhankelijk hypotheekadvies. Bel 085-8226222 of mail naar raymond@avantgroep.nl / john@avantgroep.nl
Lees meer
Bouwjaar 1990, woonoppervlakte circa 161 m², garage ca. 18m², inhoud ca. 653m³.
Begane grond
Bij binnenkomst voelt u direct de prettige, lichte sfeer. In de hal vindt u de meterkast, trapopgang, garderobe en een modern toilet. Vanuit hier loopt u door naar de royale woonkamer van ca. 53m2 met een prachtige houten vloer. Dankzij de grote raampartijen geniet u van volop daglicht en een heerlijk uitzicht op de tuin. De gezellige kachel zorgt voor een warme, uitnodigende sfeer.
Aan de voorzijde bevindt zich de open keuken, uitgerust met volop kastruimte, een oven, elektrische kookplaat, afzuigkap en een vaatwasser. Terwijl u kookt, kijkt u uit over de straat. Prettig voor wie graag contact houdt met de omgeving.
Vanuit de hal is ook de ruime, aangebouwde garage bereikbaar, ideaal voor fietsen, opslag of uw auto.
Eerste verdieping
Op de eerste verdieping vindt u twee ruime slaapkamers en een verzorgde badkamer.
De hoofdslaapkamer aan de voorzijde heeft een eigen speels balkon. De tweede slaapkamer (voorheen 2 kamers) aan de achterzijde is eveneens royaal en beschikt over een dakkapel.
De badkamer is stijlvol afgewerkt met neutrale tegels en voorzien van een ligbad, aparte douche, wastafel met granieten blad. Daarnaast is deze verdieping voorzien van een tweede toilet.
Tweede verdieping
De tweede verdieping biedt een derde, bijzonder ruime slaapkamer met dakkapel aan de voorzijde. Dankzij het vele licht is dit een fijne, open ruimte die ook uitstekend kan dienen als werkkamer of hobbyruimte. Verder vindt u hier een praktische berging met aansluitingen voor de wasmachine en droger, én de cv-installatie.
Zolder
Via een vlizotrap bereikt u de zolderruimte over de volle breedte van de woning. Perfect voor het opbergen van koffers, seizoensspullen of archiefdozen.
Tuin
Rondom de woning ligt een verzorgde, groene tuin. Er is ruimte voor meerdere zithoeken en een eettafel, omringd door bloeiende hortensia’s en volwassen beplanting. U kijkt uit op het naastliggende slootje, wat zorgt voor een extra gevoel van ruimte en natuur.
Afmetingen:
Woonkamer: ca. 5.53/4.51x5.69x3.60 m.
Keuken ca. 3.96x3.41 m.
Slaapkamer (1) ca. 4.68x2.92 m.
Slaapkamer (2) ca. 4.15/3.08x5.71 m.
Badkamer ca. 2.78x2.69 m.
Slaapkamer (3) ca. 6.15x3.42 m.
Berging / Garage ca. 6.43x2.79 m.
Algemeen:
* Bouwjaar 1990, woonoppervlakte circa 161 m², garage ca. 18m², inhoud ca. 653m³
* Goede staat van onderhoud binnen- en buitenzijde
* Vrijstaande woning, enkel geschakeld met de garage
* Garage en oprit met mogelijkheid aanbrengen van een laadpaal
* Lichte zeer ruime woonkamer met grote raampartijen
* 3 ruime slaapkamers (voorheen 4 kamers)
* Zonnige ruime tuin aan 3 zijden
* Rustige, kindvriendelijke ligging nabij scholen, winkels, uitvalswegen en natuur;
* Heeft u een auto? Check de mogelijkheid tot het verkrijgen van een parkeervergunning op de Stadskaart parkeervergunningen via ParkeerService Gouda;
* Wij verwijzen je tot slot naar de “nadere informatie bij het kopen van een onroerende zaak” welke in Move is toegevoegd aan de informatie bij deze woning.
Boer Makelaardij brengt je graag in contact met onze vaste hypotheekpartners Raymond Imbens of John Olsthoorn van Avant Groep Gouda voor een professioneel en onafhankelijk hypotheekadvies. Bel 085-8226222 of mail naar raymond@avantgroep.nl / john@avantgroep.nl
Kenmerken
Overdracht
| Status | verkocht |
| Aanvaarding | in overleg |
Bouw
| Soort woning | woonhuis |
| Soort woonhuis | eengezinswoning |
| Type woonhuis | geschakelde woning |
| Aantal woonlagen | 3 |
| Bouwvorm | bestaande bouw |
| Bouwjaar | 1990 |
| Huidige bestemming | woonruimte |
| Onderhoud binnen | goed |
| Onderhoud buiten | goed |
| Voorzieningen | tv kabel, buitenzonwering, schuifpui, glasvezel kabel |
| Isolatie | dakisolatie, muurisolatie, vloerisolatie, dubbel glas |
Energie
| Energielabel | C |
| Verwarming | cv ketel |
| Warm water | cv ketel |
| C.V.-ketel | cv-ketel van Nefit, eigendom |
Oppervlakten en inhoud
| Woonoppervlakte | 161 m² |
| Perceeloppervlakte | 285 m² |
| Inhoud | 653 m³ |
| Inpandigeruimte oppervlakte | 18 m² |
Indeling
| Aantal kamers | 4 |
| Aantal slaapkamers | 3 |
Buitenruimte
| Ligging | aan water, in woonwijk |
| Tuin | achtertuin met een oppervlakte van 108 m² en is gelegen op het zuiden |
Overig
| Garage | aangebouwde stenen garage |
| Parkeergelegenheid | op eigen terrein |


















































