Tweede Hieronymus van Alphenstraat 52
2806RV Gouda
verkocht
Omschrijving
Deze woning is afgelopen week verkocht en is niet meer te bezichtigen tijdens de NVM Open Huizen Dag.
Gelegen in de populaire en kindvriendelijke Kadebuurt in Gouda vindt u een karakteristieke en verrassend ruime jaren 30 hoekwoning van ca. 97 m² woonoppervlakte met een zeer royale garage van ca. 51 m². De woning ligt op korte afstand van scholen, winkels, sportvoorzieningen en het NS-intercitystation van Gouda. Ook het historische stadscentrum is binnen enkele minuten bereikbaar. De woning combineert de charme van de jaren ’30 bouwstijl zoals de bakstenen gevel, grote raampartijen en een fraaie houten voordeur, met het comfort van een modern interieur. Binnen treft u een lichte woonkamer met eikenhouten vloer, een open keuken met toegang tot de tuin, drie slaapkamers en een moderne badkamer. De zolder biedt extra ruimte dankzij een dakkapel en dakramen. De tuin is groen en sfeervol ingericht, met een terras, borders en een berging. De enorme garage maakt deze woning uniek: ideaal voor hobby, werkplaats, opslag of als uitbreiding van woonruimte!
Bouwjaar 1933, woonoppervlakte ca. 97m², garage ca. 51m², berging ca. 2m², inhoud ca. 634m³
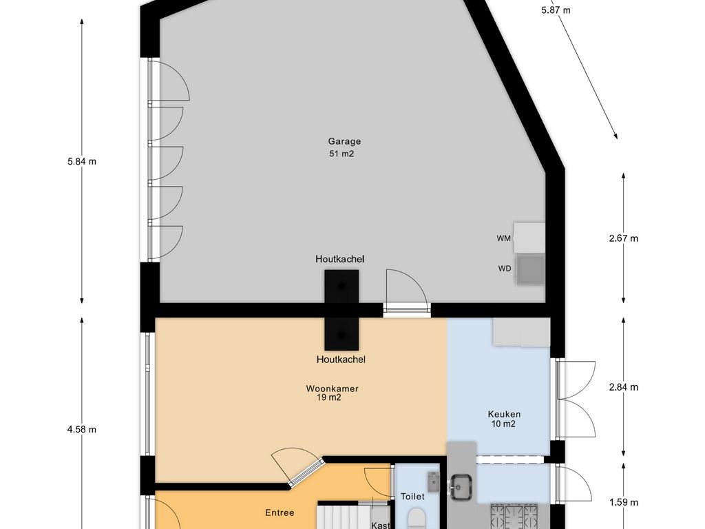
Begane grond
Bij binnenkomst via de houten voordeur komt u in de hal met de trapopgang naar de eerste verdieping en een modern toilet. De woonkamer is afgewerkt met een lichte eikenhouten lamel parket vloer (parket dat bestaat uit planken opgebouwd uit verschillende lagen) en witte wanden, waardoor de ruimte een frisse en warme uitstraling heeft. In de woonkamer bevindt zich bovendien een houtkachel, wat zorgt voor extra sfeer en warmte. Grote raampartijen aan de voorzijde zorgen voor veel natuurlijk lichtinval. De woonkamer heeft aan de achterzijde dubbele openslaande deuren met directe toegang tot de groene tuin. Achterin de woning is ruimte voor een grote eettafel, de vaste wandbank met oranje bekleding en de drie moderne hanglampen benadrukken het eigentijdse karakter!
De open Siematic keuken is uitgevoerd met greeploze fronten in neutrale tinten, een donker werkblad en een roestvrijstalen afzuigkap. De keuken is voorzien van een gasfornuis, spoelbak, heetwaterkraan en inbouwapparatuur zoals oven, vaatwasser en koelkast, en door de grote ramen en de dubbele deuren stroomt er veel daglicht binnen en heeft u veel contact met de tuin. De antracietkleurige vloertegels zijn onderhoudsvriendelijk en stijlvol!
Vanuit de woonkamer bereikt u de enorme garage (ca. 51 m²). Deze multifunctionele ruimte heeft een betonnen vloer, open kapconstructie met houten balken, veel opslagmogelijkheden door stellingen en kasten, én aansluitingen voor wasmachine en droger. Ook is er een houtkachel aanwezig die zorgt voor een robuuste uitstraling en extra warmte.
Eerste verdieping
Op de eerste verdieping treft u twee ruime slaapkamers die beide een prettige en lichte uitstraling hebben. Beide kamers zijn bovendien voorzien van handige inbouwkasten, waardoor er meer ruimte overblijft voor andere meubels en spullen. Daarnaast is er nog een kleinere kamer die zich uitstekend leent als kinder- of kantoorkamer.
De badkamer van circa 5 m² is modern ingericht en volledig betegeld in wit met een donkere tegelvloer. Hier beschikt u over een ligbad met glazen douchewand en een douchefunctie in bad, een wastafel en een tweede toilet. Dankzij het raam valt er prettig daglicht binnen.
Tweede verdieping (zolder)
De zolderverdieping is een volwaardige woonlaag dankzij de kunststof dakkapel en twee extra dakramen. Hier is een grote slaapkamer van ca. 19 m² (gemeten +1.50m) gerealiseerd. Onder de schuine wanden zijn praktische kasten en bergruimtes aanwezig.
Tuin
De achtertuin is een heerlijke plek met een mix van groen en zitruimte. Direct achter de woning ligt een houten vlonderterras met pergola, perfect voor een loungehoek of eettafel in de zomer. Verder naar achteren vindt u een groene tuin met borders, hagen en bestrating in oude klinkers. Helemaal achterin staat een vrijstaande houten berging (ca. 2 m²), ideaal voor tuinstoelen of je BBQ. De tuin heeft een achterom en biedt veel privacy!
Afmetingen:
Woonkamer ca. 5.75x2.84 m.
Keuken ca. 2.12x4.43 m.
Slaapkamer (1) ca. 3.45x2.29 m.
Slaapkamer (2) ca. 3.84x2.88 m.
Slaapkamer (3) ca. 2.71x1.62 m.
Badkamer ca. 2.22x2.11 m.
Slaapkamer (4) ca, 4.97x3.57 m.
Berging ca. 2.17x1.08 m.
Garage ca. 5.84x7.86 m.
Bijzonderheden
* Bouwjaar 1933, woonoppervlakte ca. 97m², garage ca. 51m², berging ca. 2m², inhoud ca. 634m³;
* De woning ligt op korte afstand van scholen, winkels, sportvoorzieningen en het NS-intercitystation van Gouda. Ook het historische stadscentrum is binnen enkele minuten bereikbaar;
* Dakisolatie en dubbel glas toegepast;
* Zeer ruime intern toegankelijke garage van 51m²;
* Fraai aangelegde tuin met terras, groen, berging en achterom;
* Karakteristieke bakstenen gevel met houten voordeur en grote raampartijen;
* Verkoper heeft een concept bouwplan om de garage tot woonruimte te verbouwen. Het ODMH heeft in een vooroverleg hier positief op gereageerd.
* Wij verwijzen je tot slot naar de “nadere informatie bij het kopen van een onroerende zaak” welke in Move is toegevoegd aan de informatie bij deze woning.
Boer Makelaardij brengt je graag in contact met onze vaste hypotheekpartners Raymond Imbens of John Olsthoorn van Avant Groep Gouda voor een professioneel en onafhankelijk hypotheekadvies. Bel 085-8226222 of mail naar raymond@avantgroep.nl / john@avantgroep.nl
Lees meer
Gelegen in de populaire en kindvriendelijke Kadebuurt in Gouda vindt u een karakteristieke en verrassend ruime jaren 30 hoekwoning van ca. 97 m² woonoppervlakte met een zeer royale garage van ca. 51 m². De woning ligt op korte afstand van scholen, winkels, sportvoorzieningen en het NS-intercitystation van Gouda. Ook het historische stadscentrum is binnen enkele minuten bereikbaar. De woning combineert de charme van de jaren ’30 bouwstijl zoals de bakstenen gevel, grote raampartijen en een fraaie houten voordeur, met het comfort van een modern interieur. Binnen treft u een lichte woonkamer met eikenhouten vloer, een open keuken met toegang tot de tuin, drie slaapkamers en een moderne badkamer. De zolder biedt extra ruimte dankzij een dakkapel en dakramen. De tuin is groen en sfeervol ingericht, met een terras, borders en een berging. De enorme garage maakt deze woning uniek: ideaal voor hobby, werkplaats, opslag of als uitbreiding van woonruimte!
Bouwjaar 1933, woonoppervlakte ca. 97m², garage ca. 51m², berging ca. 2m², inhoud ca. 634m³
Begane grond
Bij binnenkomst via de houten voordeur komt u in de hal met de trapopgang naar de eerste verdieping en een modern toilet. De woonkamer is afgewerkt met een lichte eikenhouten lamel parket vloer (parket dat bestaat uit planken opgebouwd uit verschillende lagen) en witte wanden, waardoor de ruimte een frisse en warme uitstraling heeft. In de woonkamer bevindt zich bovendien een houtkachel, wat zorgt voor extra sfeer en warmte. Grote raampartijen aan de voorzijde zorgen voor veel natuurlijk lichtinval. De woonkamer heeft aan de achterzijde dubbele openslaande deuren met directe toegang tot de groene tuin. Achterin de woning is ruimte voor een grote eettafel, de vaste wandbank met oranje bekleding en de drie moderne hanglampen benadrukken het eigentijdse karakter!
De open Siematic keuken is uitgevoerd met greeploze fronten in neutrale tinten, een donker werkblad en een roestvrijstalen afzuigkap. De keuken is voorzien van een gasfornuis, spoelbak, heetwaterkraan en inbouwapparatuur zoals oven, vaatwasser en koelkast, en door de grote ramen en de dubbele deuren stroomt er veel daglicht binnen en heeft u veel contact met de tuin. De antracietkleurige vloertegels zijn onderhoudsvriendelijk en stijlvol!
Vanuit de woonkamer bereikt u de enorme garage (ca. 51 m²). Deze multifunctionele ruimte heeft een betonnen vloer, open kapconstructie met houten balken, veel opslagmogelijkheden door stellingen en kasten, én aansluitingen voor wasmachine en droger. Ook is er een houtkachel aanwezig die zorgt voor een robuuste uitstraling en extra warmte.
Eerste verdieping
Op de eerste verdieping treft u twee ruime slaapkamers die beide een prettige en lichte uitstraling hebben. Beide kamers zijn bovendien voorzien van handige inbouwkasten, waardoor er meer ruimte overblijft voor andere meubels en spullen. Daarnaast is er nog een kleinere kamer die zich uitstekend leent als kinder- of kantoorkamer.
De badkamer van circa 5 m² is modern ingericht en volledig betegeld in wit met een donkere tegelvloer. Hier beschikt u over een ligbad met glazen douchewand en een douchefunctie in bad, een wastafel en een tweede toilet. Dankzij het raam valt er prettig daglicht binnen.
Tweede verdieping (zolder)
De zolderverdieping is een volwaardige woonlaag dankzij de kunststof dakkapel en twee extra dakramen. Hier is een grote slaapkamer van ca. 19 m² (gemeten +1.50m) gerealiseerd. Onder de schuine wanden zijn praktische kasten en bergruimtes aanwezig.
Tuin
De achtertuin is een heerlijke plek met een mix van groen en zitruimte. Direct achter de woning ligt een houten vlonderterras met pergola, perfect voor een loungehoek of eettafel in de zomer. Verder naar achteren vindt u een groene tuin met borders, hagen en bestrating in oude klinkers. Helemaal achterin staat een vrijstaande houten berging (ca. 2 m²), ideaal voor tuinstoelen of je BBQ. De tuin heeft een achterom en biedt veel privacy!
Afmetingen:
Woonkamer ca. 5.75x2.84 m.
Keuken ca. 2.12x4.43 m.
Slaapkamer (1) ca. 3.45x2.29 m.
Slaapkamer (2) ca. 3.84x2.88 m.
Slaapkamer (3) ca. 2.71x1.62 m.
Badkamer ca. 2.22x2.11 m.
Slaapkamer (4) ca, 4.97x3.57 m.
Berging ca. 2.17x1.08 m.
Garage ca. 5.84x7.86 m.
Bijzonderheden
* Bouwjaar 1933, woonoppervlakte ca. 97m², garage ca. 51m², berging ca. 2m², inhoud ca. 634m³;
* De woning ligt op korte afstand van scholen, winkels, sportvoorzieningen en het NS-intercitystation van Gouda. Ook het historische stadscentrum is binnen enkele minuten bereikbaar;
* Dakisolatie en dubbel glas toegepast;
* Zeer ruime intern toegankelijke garage van 51m²;
* Fraai aangelegde tuin met terras, groen, berging en achterom;
* Karakteristieke bakstenen gevel met houten voordeur en grote raampartijen;
* Verkoper heeft een concept bouwplan om de garage tot woonruimte te verbouwen. Het ODMH heeft in een vooroverleg hier positief op gereageerd.
* Wij verwijzen je tot slot naar de “nadere informatie bij het kopen van een onroerende zaak” welke in Move is toegevoegd aan de informatie bij deze woning.
Boer Makelaardij brengt je graag in contact met onze vaste hypotheekpartners Raymond Imbens of John Olsthoorn van Avant Groep Gouda voor een professioneel en onafhankelijk hypotheekadvies. Bel 085-8226222 of mail naar raymond@avantgroep.nl / john@avantgroep.nl
Kenmerken
Overdracht
- Aangeboden sinds
- 19 september 2025
- Status
- Verkocht
- Aanvaarding
- In overleg
Bouw
- Soort woning
- Woonhuis
- Bouwjaar
- 1933
- Soort dak
- Zadeldak
Oppervlakten en inhoud
- Oppervlakte wonen
- 97 m²
- Oppervlakte overige inpandige ruimte
- 51 m²
- Oppervlakte externe bergruimte
- 2 m²
- Perceel
- 184 m²
- Inhoud
- 634 m³
Indeling
- Aantal kamers
- 5
- Aantal slaapkamers
- 4
- Aantal badkamers
- 1
- Badkamervoorzieningen
- Ligbad, toilet, douche en wastafel
- Aantal woonlagen
- 3 woonlagen
- Voorzieningen
- Tv-kabel en glasvezel kabel
Energie
- Energielabel
- E
- Isolatie
- Dakisolatie en dubbel glas
- Verwarming
- Cv-ketel
- Warm water
- Cv-ketel
- Cv-ketel
- hr cv combi (combiketel)
Buitenruimte
- Ligging
- Aan rustige weg en in woonwijk
- Tuin
- Achtertuin
- Achtertuin
- 68 m² gelegen op het zuidwesten met achterom
Bergruimte
- Schuur/berging
- Vrijstaand hout
Garage
- Soort garage
- Aangebouwd steen
- Capaciteit
- 4
- Voorzieningen
- Elektra en water
Interesse in deze woning?