Maerlantburg 55
2804AD Gouda
onder_optie
€ 507.650,- v.o.n.
Omschrijving
Wonen van Loon: comfortabel wonen in Gouda
In de groene wijk Bloemendaal staat Wonen van Loon: een nieuwbouwproject waar gemak, kwaliteit en comfort centraal staan.
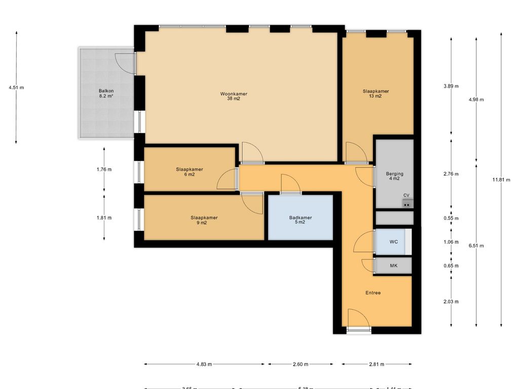
Maerlantburg 55 - Appartement type C - Bouwnummer 12B
Appartement 12B is gelegen in woongebouw B op de 2e verdieping. Het zonnige complete hoekappartement heeft een woonoppervlakte van ca. 99m2, woonkamer met open keuken, 3 slaapkamers, badkamer, buitenruimte met balkon op het westen, vloerverwarming en -koeling en 1 parkeerplaats in de garage.
Genoemde prijs is exclusief 1 (verplichte) parkeerplaats ad. € 20.400,- en aangebrachte extra opties ad. € 3.890,-.
De V.v.E. is onlangs opgericht. De servicekosten (reservering onderhoud, klein onderheid, gemeenschappelijke elektra, schoonmaken gemeenschappelijke ruimten, verzekering, beheer etc) bedragen ca. € 258,52. Ten behoeve van warmte-koeling-warm water dient koper een contract af te sluiten met Vaanster.
Het nieuwe complex Wonen van Loon laat de – nu al gezellige – woonwijk Bloemendaal extra bruisen. Parkeren doet u op uw eigen overdekte parkeerplaats, de fiets is te stallen in de gezamenlijke fietsenstalling.
Het complex wordt omringd door een parkachtige tuin. Centraal in het plan ligt de tweelaagse parkeergarage waar op de begane grond een eigen parkeerplaats is gesitueerd. Bewoners kunnen tevens gebruik maken van deelauto's. Duurzaam en klaar voor de toekomst!
De wijk Bloemendaal in Gouda ligt uiterst centraal in de Randstad op ca. 20 minuten per trein en auto van Rotterdam, Den Haag en Utrecht. Het complex ligt op loopafstand van het winkelcentrum Bloemendaal met alle winkelgemakken en voorzieningen van dien. De bus stopt bijna voor de deur en het historische centrum en het NS-intercitystation liggen op fietsafstand.
Gouda, de stad met de historische binnenstad. De stad met haar eeuwenoude geschiedenis. De stad die wereldberoemd is om haar kazen, stroopwafels en kaarsen. Maar ook een stad die buiten deze geschiedenis en mooie ambachten veel meer te bieden heeft. Namelijk een stad waar het heerlijk wonen is! Gouda is een stad van gezelligheid en heeft alle voorzieningen in de buurt. De vele charmante straatjes, grachten, pleinen, horeca en winkels… u hoeft zich nooit te vervelen. Daarnaast heeft Gouda haar eigen ziekenhuis, schouwburg en bioscoop. En ook zijn er vele sportverenigingen en scholen.
Geniet u graag van het buitenleven? Ook dan zit u goed. Op nog geen 10 minuten fietsafstand zijn de Reeuwijkse Plassen gelegen, een heerlijk buitengebied waar het goed vertoeven is. Maak een heerlijke fiets- of wandeltocht of ga met een bootje het water op en geniet van de rust en natuur.
Lees meer
In de groene wijk Bloemendaal staat Wonen van Loon: een nieuwbouwproject waar gemak, kwaliteit en comfort centraal staan.
Maerlantburg 55 - Appartement type C - Bouwnummer 12B
Appartement 12B is gelegen in woongebouw B op de 2e verdieping. Het zonnige complete hoekappartement heeft een woonoppervlakte van ca. 99m2, woonkamer met open keuken, 3 slaapkamers, badkamer, buitenruimte met balkon op het westen, vloerverwarming en -koeling en 1 parkeerplaats in de garage.
Genoemde prijs is exclusief 1 (verplichte) parkeerplaats ad. € 20.400,- en aangebrachte extra opties ad. € 3.890,-.
De V.v.E. is onlangs opgericht. De servicekosten (reservering onderhoud, klein onderheid, gemeenschappelijke elektra, schoonmaken gemeenschappelijke ruimten, verzekering, beheer etc) bedragen ca. € 258,52. Ten behoeve van warmte-koeling-warm water dient koper een contract af te sluiten met Vaanster.
Het nieuwe complex Wonen van Loon laat de – nu al gezellige – woonwijk Bloemendaal extra bruisen. Parkeren doet u op uw eigen overdekte parkeerplaats, de fiets is te stallen in de gezamenlijke fietsenstalling.
Het complex wordt omringd door een parkachtige tuin. Centraal in het plan ligt de tweelaagse parkeergarage waar op de begane grond een eigen parkeerplaats is gesitueerd. Bewoners kunnen tevens gebruik maken van deelauto's. Duurzaam en klaar voor de toekomst!
De wijk Bloemendaal in Gouda ligt uiterst centraal in de Randstad op ca. 20 minuten per trein en auto van Rotterdam, Den Haag en Utrecht. Het complex ligt op loopafstand van het winkelcentrum Bloemendaal met alle winkelgemakken en voorzieningen van dien. De bus stopt bijna voor de deur en het historische centrum en het NS-intercitystation liggen op fietsafstand.
Gouda, de stad met de historische binnenstad. De stad met haar eeuwenoude geschiedenis. De stad die wereldberoemd is om haar kazen, stroopwafels en kaarsen. Maar ook een stad die buiten deze geschiedenis en mooie ambachten veel meer te bieden heeft. Namelijk een stad waar het heerlijk wonen is! Gouda is een stad van gezelligheid en heeft alle voorzieningen in de buurt. De vele charmante straatjes, grachten, pleinen, horeca en winkels… u hoeft zich nooit te vervelen. Daarnaast heeft Gouda haar eigen ziekenhuis, schouwburg en bioscoop. En ook zijn er vele sportverenigingen en scholen.
Geniet u graag van het buitenleven? Ook dan zit u goed. Op nog geen 10 minuten fietsafstand zijn de Reeuwijkse Plassen gelegen, een heerlijk buitengebied waar het goed vertoeven is. Maak een heerlijke fiets- of wandeltocht of ga met een bootje het water op en geniet van de rust en natuur.
Kenmerken
Overdracht
- Vraagprijs
- € 507.650 v.o.n.
- Vraagprijs per m²
- € 5.128
- Aangeboden sinds
- 6 februari 2026
- Status
- Onder optie
- Aanvaarding
- In overleg
- Bijdrage VvE
- € 258,52 per maand
Bouw
- Soort woning
- Appartement
- Soort appartement
- Portiekflat
- Bouwjaar
- 2025
Oppervlakten en inhoud
- Oppervlakte wonen
- 99 m²
- Oppervlakte gebouwgebonden buitenruimte
- 8 m²
- Inhoud
- 324 m³
Indeling
- Aantal kamers
- 4
- Aantal slaapkamers
- 3
- Aantal badkamers
- 1
- Aantal woonlagen
- 1 woonlaag
- Gelegen op
- 2e woonlaag
- Voorzieningen
- Lift, glasvezel kabel, balansventilatie en natuurlijke ventilatie
Energie
- Energielabel
- A+++
- Isolatie
- Volledig geïsoleerd
- Verwarming
- Vloerverwarming geheel, warmtepomp en warmte terugwininstallatie
- Warm water
- Centrale voorziening
Buitenruimte
- Ligging
- In woonwijk en vrij uitzicht
- Tuin
- Geen tuin
Bergruimte
- Schuur/berging
- Inpandig
Garage
- Soort garage
- Parkeerkelder
Vereniging van Eigenaren
- Inschrijving KvK
- Ja
- Jaarlijkse vergadering
- Ja
- Periodieke bijdrage
- Reservefonds aanwezig
- Ja
- Onderhoudsplan
- Ja
- Opstalverzekering
- Ja
Interesse in deze woning?