Goudseweg 77
2808NM Gouda
verkocht
Omschrijving
Aan de rand van Gouda, gelegen goed onderhouden en netjes afgewerkte hoekwoning met ruime woonkamer met openhaard, nette keuken, moderne badkamer, 4 slaapkamers, bergvliering, voortuin en zonnige achtertuin.
Gelegen dichtbij de natuur en toch zijn het centrum van Gouda en alle voorzieningen op 5 minuten fietsen aanwezig. Bouwjaar ca. 1900, woonoppervlakte ca. 104 m², inhoud ca. 362 m³, externe bergruimte ca. 9 m², eigen grond 191 m².
Indeling begane grond:
Entree aan de achterzijde van de woning. Hal voorzien van toiletruimte en toegang tot bijkeuken met opstelling c.v. combiketel en aansluiting wasapparatuur.
Ruime lichte L-vormige woonkamer ca. 28 m² voorzien van schouw met openhaard, vaste kast en kurken vloerafwerking.
Open keukenruimte ca. 9 m² voorzien van hoekopgestelde inrichting met 5-pits gaskookplaat, afzuigschouw, oven, koelkast en vaatwasser. Vanuit de keukenruimte is de 1e verdieping toegankelijk.
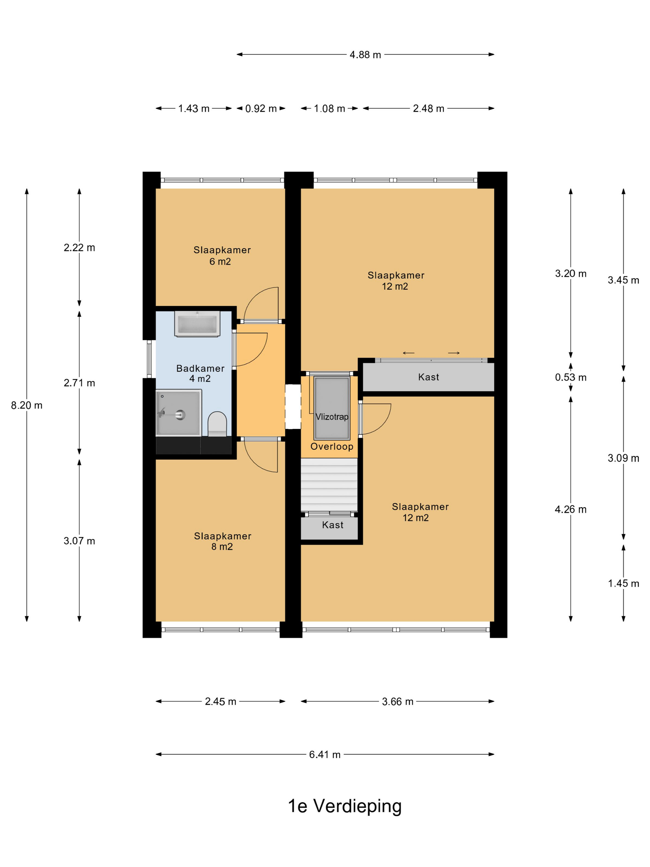
1e verdieping:
Overloop voorzien van vaste kast en middels vlizotrap toegang tot bergvliering.
Aan de achterzijde gelegen ruime slaapkamer (1) ca. 12 m².
Aan de achterzijde gelegen slaapkamer (2) ca. 8 m².
Aan de voorzijde gelegen ruime slaapkamer (3) ca. 12 m² voorzien van kastenwand.
Aan de voorzijde gelegen slaapkamer (4) ca 6 m².
Volledig betegelde en modern afgewerkte badkamer ca. 4 m² voorzien van wastafelmeubel, inloopdouche, wandcloset en handdoekradiator.
Buitenzijde:
Netjes aangelegde voortuin, zijpad naar de entree aan de achterzijde. Op het noordoosten gelegen zonnige achtertuin voorzien van betegeling, diverse beplanting en houten chaletberging.
Afmetingen:
Woonkamer ca. 6.31x4.76/3.01m.
Keukenruimte ca. 3.47x2.44m.
Slaapkamer (1) ca. 4.26x3.66/2.48m.
Slaapkamer (2) ca. 3.07x2.45m.
Slaapkamer (3) ca. 3.66x3.45m.
Slaapkamer (4) ca. 2.45x2.22m.
Badkamer ca. 2.71x1.43m.
Achtertuin ca. 10.00x9.00m.
Berging ca. 2.94x2.94m.
Verkoper vertelt:
Het is heerlijk wonen op de Goudseweg…Woon hier al 37 jaar met veel plezier, fijne buren om ons heen. Het is een buurtschap, met loslopende kippen dichtbij de stad waar je heen kan wandelen. Maar ook zo in de natuur, de straat uit en je kan prachtige fietstochten maken. Wij zijn nu toe aan de volgende stap een appartement. Hopen dat de volgende bewoners hier net met zoveel plezier gaan wonen.
Algemeen:
* bouwjaar ca. 1900, woonoppervlakte ca. 104 m², inhoud ca. 362 m³, externe bergruimte ca. 9 m², eigen grond 191 m²;
* energielabel D;
* buitenschilderwerk uitgevoerd in 2024;
* aan de rand van Gouda gelegen met het centrum en alle voorzieingen toch in de nabijheid gelegen;
* wij verwijzen je tot slot naar de “nadere informatie bij het kopen van een onroerende zaak” welke in Move is toegevoegd aan de informatie bij deze woning.
Boer Makelaardij kan jou in contact brengen met onze vaste partner Raymond Imbens of John Olsthoorn van Avant Groep Gouda voor een professioneel, onafhankelijk hypotheekadvies, 085-8226222, raymond@avantgroep.nl/john@avantgroep.nl.
Lees meer
Gelegen dichtbij de natuur en toch zijn het centrum van Gouda en alle voorzieningen op 5 minuten fietsen aanwezig. Bouwjaar ca. 1900, woonoppervlakte ca. 104 m², inhoud ca. 362 m³, externe bergruimte ca. 9 m², eigen grond 191 m².
Indeling begane grond:
Entree aan de achterzijde van de woning. Hal voorzien van toiletruimte en toegang tot bijkeuken met opstelling c.v. combiketel en aansluiting wasapparatuur.
Ruime lichte L-vormige woonkamer ca. 28 m² voorzien van schouw met openhaard, vaste kast en kurken vloerafwerking.
Open keukenruimte ca. 9 m² voorzien van hoekopgestelde inrichting met 5-pits gaskookplaat, afzuigschouw, oven, koelkast en vaatwasser. Vanuit de keukenruimte is de 1e verdieping toegankelijk.
1e verdieping:
Overloop voorzien van vaste kast en middels vlizotrap toegang tot bergvliering.
Aan de achterzijde gelegen ruime slaapkamer (1) ca. 12 m².
Aan de achterzijde gelegen slaapkamer (2) ca. 8 m².
Aan de voorzijde gelegen ruime slaapkamer (3) ca. 12 m² voorzien van kastenwand.
Aan de voorzijde gelegen slaapkamer (4) ca 6 m².
Volledig betegelde en modern afgewerkte badkamer ca. 4 m² voorzien van wastafelmeubel, inloopdouche, wandcloset en handdoekradiator.
Buitenzijde:
Netjes aangelegde voortuin, zijpad naar de entree aan de achterzijde. Op het noordoosten gelegen zonnige achtertuin voorzien van betegeling, diverse beplanting en houten chaletberging.
Afmetingen:
Woonkamer ca. 6.31x4.76/3.01m.
Keukenruimte ca. 3.47x2.44m.
Slaapkamer (1) ca. 4.26x3.66/2.48m.
Slaapkamer (2) ca. 3.07x2.45m.
Slaapkamer (3) ca. 3.66x3.45m.
Slaapkamer (4) ca. 2.45x2.22m.
Badkamer ca. 2.71x1.43m.
Achtertuin ca. 10.00x9.00m.
Berging ca. 2.94x2.94m.
Verkoper vertelt:
Het is heerlijk wonen op de Goudseweg…Woon hier al 37 jaar met veel plezier, fijne buren om ons heen. Het is een buurtschap, met loslopende kippen dichtbij de stad waar je heen kan wandelen. Maar ook zo in de natuur, de straat uit en je kan prachtige fietstochten maken. Wij zijn nu toe aan de volgende stap een appartement. Hopen dat de volgende bewoners hier net met zoveel plezier gaan wonen.
Algemeen:
* bouwjaar ca. 1900, woonoppervlakte ca. 104 m², inhoud ca. 362 m³, externe bergruimte ca. 9 m², eigen grond 191 m²;
* energielabel D;
* buitenschilderwerk uitgevoerd in 2024;
* aan de rand van Gouda gelegen met het centrum en alle voorzieingen toch in de nabijheid gelegen;
* wij verwijzen je tot slot naar de “nadere informatie bij het kopen van een onroerende zaak” welke in Move is toegevoegd aan de informatie bij deze woning.
Boer Makelaardij kan jou in contact brengen met onze vaste partner Raymond Imbens of John Olsthoorn van Avant Groep Gouda voor een professioneel, onafhankelijk hypotheekadvies, 085-8226222, raymond@avantgroep.nl/john@avantgroep.nl.
Kenmerken
Overdracht
- Aangeboden sinds
- 13 juni 2025
- Status
- Verkocht
- Aanvaarding
- In overleg
Bouw
- Soort woning
- Woonhuis
- Bouwjaar
- 1900
- Soort dak
- Samengesteld dak
Oppervlakten en inhoud
- Oppervlakte wonen
- 104 m²
- Oppervlakte externe bergruimte
- 9 m²
- Perceel
- 191 m²
- Inhoud
- 362 m³
Indeling
- Aantal kamers
- 5
- Aantal slaapkamers
- 4
- Aantal badkamers
- 1
- Badkamervoorzieningen
- Toilet, wastafel, wastafelmeubel en inloopdouche
- Aantal woonlagen
- 3 woonlagen
- Voorzieningen
- Rookkanaal en natuurlijke ventilatie
Energie
- Energielabel
- D
- Isolatie
- Dakisolatie en dubbel glas
- Verwarming
- Cv-ketel
- Warm water
- Cv-ketel
- Cv-ketel
- Nefit Topline (combiketel uit 2021)
Buitenruimte
- Ligging
- Aan rustige weg en vrij uitzicht
- Tuin
- Achtertuin, voortuin en zijtuin
- Achtertuin
- 90 m² gelegen op het noordoosten met achterom
Bergruimte
- Schuur/berging
- Vrijstaand hout
Garage
- Soort garage
- Geen garage
Interesse in deze woning?