Baljuwslag 12
2805DA Gouda
verkocht
Omschrijving
Instapklare eengezinswoning met zonnige tuin in Gouda!
Deze verzorgde woning aan de Baljuwslag 12 biedt alles wat je zoekt: een lichte woonkamer met vloerverwarming en openslaande deuren, een luxe keuken met inbouwapparatuur, drie slaapkamers én een ruime zolderkamer. Geniet van parkeergelegenheid op eigen terrein, de zonnige achtertuin op het zuiden met stenen berging en ervaar het woongemak van een rustige, kindvriendelijke wijk dichtbij alle voorzieningen.
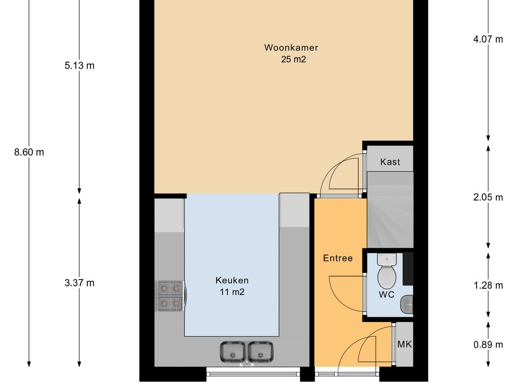
Indeling begane grond
Via de verzorgde voortuin met parkeergelegenheid bereik je de entree. Hier vind je de hal met meterkast, toiletruimte en trapopgang. Vanuit de hal stap je de ruime woonkamer (ca. 25 m²) binnen. Dankzij de nieuwe achterpui met dubbele openslaande deuren geniet je van veel lichtinval en een prachtig zicht op de zonnige tuin.
Aan de voorzijde ligt de moderne keukenruimte (ca. 11 m²), uitgerust met diverse inbouwapparatuur en volop werk- en kastruimte – ideaal voor kookliefhebbers.
De gehele begane grond is voorzien van een nette plavuizenvloer met comfortabele vloerverwarming.
Tuin
De fraai aangelegde achtertuin op het zuiden is een heerlijke plek om te genieten van de zon. De tuin is voorzien van een gevelbreed zonnescherm, een stenen berging en een achterom.
Eerste verdieping
De overloop biedt toegang tot drie slaapkamers van respectievelijk 15 m², 10 m² en 8 m². De slaapkamers zijn praktisch ingedeeld en bieden veel licht. De badkamer (ca. 5 m²) is netjes en compleet ingericht met een ligbad, aparte douche, wastafelmeubel en toilet.
Tweede verdieping
Op de voorzolder vind je de opstelplaats voor wasapparatuur en de c.v. ketel, daglicht komt binnen via de dakramen. Daarnaast is er veel bergruimte beschikbaar. De royale zolderkamer (ca. 16 m²) is voorzien van dakramen aan zowel de voor- als achterzijde, waardoor dit een volwaardige extra slaapkamer of werkruimte is. Boven deze verdieping bevindt zich nog een handige vliering. Eventueel is de slaapkamer te splitsen in 2 kamers.
Kenmerken
* bouwjaar ca. 1985;
* totale gebruiksoppervlakte wonen: ca. 117 m²;
* goede isolatie, energielabel B;
* moderne keuken met luxe inbouwapparatuur;
* pavuizenvloer met vloerverwarming;
* nieuwe achterpui met openslaande deuren;
* zonnige achtertuin op het zuiden met stenen berging;
* voortuin met parkeergelegenheid en mogelijkheid tot het aanbrengen van een laadpunt voor een EV.
Omgeving
De woning ligt in de rustige wijk Achterwillens in Gouda, met op loopafstand speelvoorzieningen en het Goudse Hout en De Reeuwijkse Plassen. Winkels, basisscholen en sportfaciliteiten zijn snel bereikbaar. Binnen enkele minuten zit je op de uitvalswegen richting de A12 en A20. Ook het gezellige historische centrum en het NS station van Gouda bevindt zich op fietsafstand.
Wij verwijzen je tot slot naar de “nadere informatie bij het kopen van een onroerende zaak” welke in Move is toegevoegd aan de informatie bij deze woning.
Boer Makelaardij kan jou in contact brengen met onze vaste partner Raymond Imbens of John Olsthoorn van Avant Groep Gouda voor een professioneel, onafhankelijk hypotheekadvies, 085-8226222, raymond@avantgroep.nl/john@avantgroep.nl.
Lees meer
Deze verzorgde woning aan de Baljuwslag 12 biedt alles wat je zoekt: een lichte woonkamer met vloerverwarming en openslaande deuren, een luxe keuken met inbouwapparatuur, drie slaapkamers én een ruime zolderkamer. Geniet van parkeergelegenheid op eigen terrein, de zonnige achtertuin op het zuiden met stenen berging en ervaar het woongemak van een rustige, kindvriendelijke wijk dichtbij alle voorzieningen.
Indeling begane grond
Via de verzorgde voortuin met parkeergelegenheid bereik je de entree. Hier vind je de hal met meterkast, toiletruimte en trapopgang. Vanuit de hal stap je de ruime woonkamer (ca. 25 m²) binnen. Dankzij de nieuwe achterpui met dubbele openslaande deuren geniet je van veel lichtinval en een prachtig zicht op de zonnige tuin.
Aan de voorzijde ligt de moderne keukenruimte (ca. 11 m²), uitgerust met diverse inbouwapparatuur en volop werk- en kastruimte – ideaal voor kookliefhebbers.
De gehele begane grond is voorzien van een nette plavuizenvloer met comfortabele vloerverwarming.
Tuin
De fraai aangelegde achtertuin op het zuiden is een heerlijke plek om te genieten van de zon. De tuin is voorzien van een gevelbreed zonnescherm, een stenen berging en een achterom.
Eerste verdieping
De overloop biedt toegang tot drie slaapkamers van respectievelijk 15 m², 10 m² en 8 m². De slaapkamers zijn praktisch ingedeeld en bieden veel licht. De badkamer (ca. 5 m²) is netjes en compleet ingericht met een ligbad, aparte douche, wastafelmeubel en toilet.
Tweede verdieping
Op de voorzolder vind je de opstelplaats voor wasapparatuur en de c.v. ketel, daglicht komt binnen via de dakramen. Daarnaast is er veel bergruimte beschikbaar. De royale zolderkamer (ca. 16 m²) is voorzien van dakramen aan zowel de voor- als achterzijde, waardoor dit een volwaardige extra slaapkamer of werkruimte is. Boven deze verdieping bevindt zich nog een handige vliering. Eventueel is de slaapkamer te splitsen in 2 kamers.
Kenmerken
* bouwjaar ca. 1985;
* totale gebruiksoppervlakte wonen: ca. 117 m²;
* goede isolatie, energielabel B;
* moderne keuken met luxe inbouwapparatuur;
* pavuizenvloer met vloerverwarming;
* nieuwe achterpui met openslaande deuren;
* zonnige achtertuin op het zuiden met stenen berging;
* voortuin met parkeergelegenheid en mogelijkheid tot het aanbrengen van een laadpunt voor een EV.
Omgeving
De woning ligt in de rustige wijk Achterwillens in Gouda, met op loopafstand speelvoorzieningen en het Goudse Hout en De Reeuwijkse Plassen. Winkels, basisscholen en sportfaciliteiten zijn snel bereikbaar. Binnen enkele minuten zit je op de uitvalswegen richting de A12 en A20. Ook het gezellige historische centrum en het NS station van Gouda bevindt zich op fietsafstand.
Wij verwijzen je tot slot naar de “nadere informatie bij het kopen van een onroerende zaak” welke in Move is toegevoegd aan de informatie bij deze woning.
Boer Makelaardij kan jou in contact brengen met onze vaste partner Raymond Imbens of John Olsthoorn van Avant Groep Gouda voor een professioneel, onafhankelijk hypotheekadvies, 085-8226222, raymond@avantgroep.nl/john@avantgroep.nl.
Kenmerken
Overdracht
- Aangeboden sinds
- 25 september 2025
- Status
- Verkocht
- Aanvaarding
- In overleg
Bouw
- Soort woning
- Woonhuis
- Bouwjaar
- 1985
- Soort dak
- Zadeldak
Oppervlakten en inhoud
- Oppervlakte wonen
- 117 m²
- Oppervlakte externe bergruimte
- 6 m²
- Perceel
- 143 m²
- Inhoud
- 406 m³
Indeling
- Aantal kamers
- 5
- Aantal slaapkamers
- 4
- Aantal badkamers
- 1
- Badkamervoorzieningen
- Ligbad, toilet, douche en wastafelmeubel
- Aantal woonlagen
- 3 woonlagen
- Voorzieningen
- Mechanische ventilatie, tv-kabel en glasvezel kabel
Energie
- Energielabel
- B
- Isolatie
- Dakisolatie, muurisolatie, vloerisolatie en dubbel glas
- Verwarming
- Cv-ketel
- Warm water
- Cv-ketel
- Cv-ketel
- HR c.v. ketel (combiketel uit 2004)
Buitenruimte
- Ligging
- Aan rustige weg en in woonwijk
- Tuin
- Achtertuin en voortuin
- Achtertuin
- 59 m² gelegen op het zuiden met achterom
Bergruimte
- Schuur/berging
- Vrijstaand steen
- Voorzieningen
- Voorzien van elektra
Garage
- Soort garage
- Geen garage
Interesse in deze woning?