Anna van Hensbeeksingel 20
2803LH Gouda
verkocht
Omschrijving
Aan de rustige Anna van Hensbeeksingel in Gouda gelegen goed onderhouden, ruim en verduurzaamd herenhuis (energielabel A), 5 slaapkamers en een garage. Dankzij kunststof kozijnen met HR++ glas en horren (geplaatst eind 2023/begin 2024), een hardhouten schuifpui, zonnepanelen en isolerende maatregelen is het huis energiezuinig en praktisch in gebruik. Bouwjaar ca. 1977, woonoppervlakte ca. 139m², inhoud ca. 535m³, garage ca. 17m², gebouwgebonden buitenruimte 9m².
Indeling begane grond:
Bij binnenkomst biedt de hal toegang tot de garage en het toilet (2018), dat licht is betegeld. De garage is voorzien van een handige vliering en heeft een directe interne verbinding met de woning.
De woonkamer van circa 37 m² is afgewerkt met een moderne plavuizen vloer met vloerverwarming, een geïsoleerd schuin dak met nieuwe dakramen, gestucte muren en veel daglicht. De fraaie dubbele schuifpui geeft een mooi uitzicht en toegang tot de tuin.
De open luxe afgewerkte keuken (ca. 11 m²) is voorzien van een kookeiland, recirculatiekap, heteluchtoven, stoomoven met magnetronfunctie, een heetwaterkraan, vaatwasser, koel-vriescombinatie en een composiet werkblad.
1e Verdieping:
Op de eerste verdieping zijn drie slaapkamers en een badkamer. De grootste slaapkamer (ca. 13 m²) ligt aan de achterzijde. De slaapkamer aan de voorzijde van circa 10 m² heeft toegang tot het balkon en een elektrisch screen. De derde kamer is ongeveer 8 m².
De badkamer is praktisch ingericht en verzorgd afgewerkt met een wandcloset (2018), douchecabine (vernieuwd in 2018), whirlpoolbad, radiator (2022) en een wastafelmeubel uit 2022.
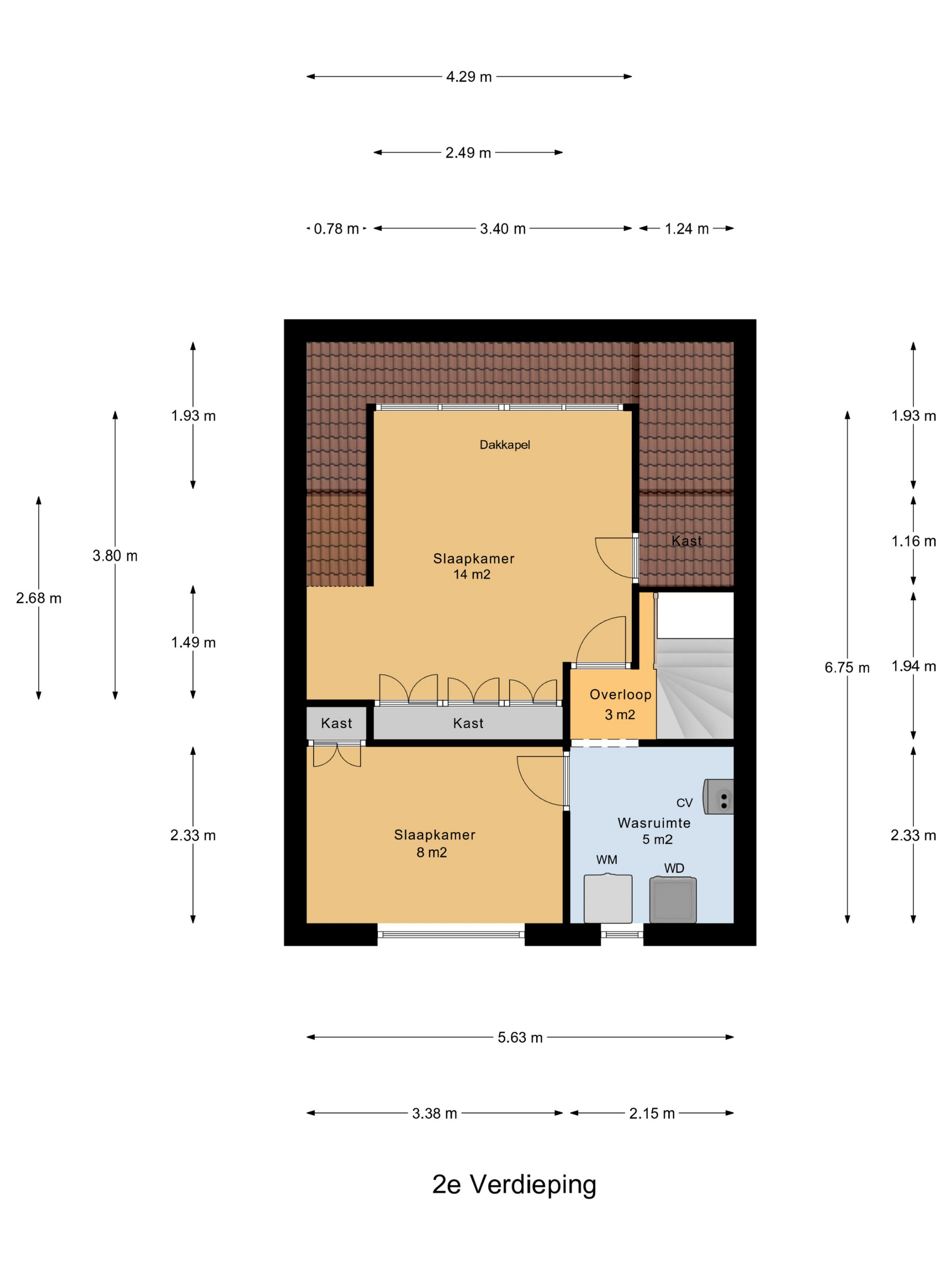
2e Verdieping:
De tweede verdieping heeft een overloop met opstelling van de HR-combiketel (2021), aansluiting voor wasapparatuur en toegang tot twee slaapkamers. De slaapkamer aan de achterzijde (circa 14 m²) heeft een kunststof dakkapel, vaste kast en bergruimte. De kamer aan de voorzijde is circa 8 m² groot en heeft ook een vaste kast.
Buitenzijde:
Achter de woning ligt een verzorgde tuin met een deels onderheid terras, waarvan het verstevigde gedeelte direct aan het huis grenst. Dankzij de gunstige ligging is er vrijwel de hele dag zon: tot circa 14.30 uur op het terras bij de woning en tot ongeveer 17.30 uur achterin de tuin.. Ook aan de voorzijde van het huis is een tuin aanwezig, met directe parkeergelegenheid op eigen terrein en toegang tot de garage.
Afmetingen:
Woonkamer ca. 10.47x5.63m.
Keukenruimte ca. 3.32x3.23m.
Slaapkamer (1) ca. 3.36x3.07m.
Slaapkamer (2) ca. 4.16x3.07m.
Slaapkamer (3) ca. 3.20x2.41m.
Badkamer ca. 2.41x2.29m.
Balkon ca. 3.77x2.36m.
Slaapkamer (4) ca. 3.80x4.29m.
Slaapkamer (5) ca. 2.33x3.38m.
Garage ca. 5.62x3.05m.
Verkoper vertelt:
De Anna van Hensbeeksingel biedt ons al 31 jaar een thuis. We hebben er met veel plezier gewoond, het is echt een gezinswoning. Voor ons is het nu tijd om kleiner te gaan wonen.
De locatie is erg goed, met vrijwel alles op tien minuten lopen of fietsen: de binnenstad, scholen, winkelcentrum Bloemendaal, de Reeuwijkse Plassen, het treinstation en het Groene Hart Ziekenhuis, dus zeer centraal, met de voordelen van een rustige buurt.
We hebben een hele zonnige achtertuin, ook al ligt de tuin op het oosten. Doordat de woonkamer een schuin dak heeft, kan de zon vanaf mei al makkelijk over het dak heen en hebben we de hele dag de zon. In april hebben we, als de zon schijnt, al vanaf half 9 de zon op het terras achter het huis en hebben we de hele middag plezier van de zon. Hoogzomer hebben we de hele dag zon in de tuin, tot ca. 7 uur 's avonds. En dan is er ook nog het balkon aan de voorzijde voor de avondzon in voor- en najaar.
Van de flat aan de overkant van de Dreef hebben we totaal geen hinder. In feite is er meer privacy dan wanneer je in de achtertuinen van de overburen kijkt.
We hebben de woning destijds gekocht vanwege de ruimte. Als je aan de voorkant staat, heb je er geen idee van dat het zo’n ruime woning is. We hebben de woning aangepast aan onze behoefte, met een mooie schuifpui, waardoor de tuin betrokken wordt bij de woonkamer. Dat zullen we nog het meeste gaan missen: de zonnige achtertuin en ruime woonkamer!
Algemeen:
* bouwjaar ca. 1977, woonoppervlakte ca. 139m², inhoud ca. 535m³, garage ca. 17m², gebouwgebonden buitenruimte 9m².
* energielabel A, voorzien van 20 zonnepanelen (2024), HR cv combiketel (2021), grotendeels HR++ glas, dakisolatie;
* 5 ruime slaapkamers en een grote woonkamer van 39m2 ;
* parkeren op eigen terrein is mogelijk door dwars voor de garage te parkeren;
* zeer centrale ligging in Gouda op ca. 5 minuten fietsen van NS intercitystation, centrum en gunstig gelegen ten opzichte van winkels, scholen en uitvalswegen;
* wij verwijzen je tot slot naar de “nadere informatie bij het kopen van een onroerende zaak” welke is toegevoegd aan de brochure van deze woning.
Boer Makelaardij kan jou in contact brengen met onze vaste partner Raymond Imbens van Avant Groep Gouda voor een professioneel, onafhankelijk hypotheekadvies, 085-8226222, raymond@avantgroep.nl.
Lees meer
Indeling begane grond:
Bij binnenkomst biedt de hal toegang tot de garage en het toilet (2018), dat licht is betegeld. De garage is voorzien van een handige vliering en heeft een directe interne verbinding met de woning.
De woonkamer van circa 37 m² is afgewerkt met een moderne plavuizen vloer met vloerverwarming, een geïsoleerd schuin dak met nieuwe dakramen, gestucte muren en veel daglicht. De fraaie dubbele schuifpui geeft een mooi uitzicht en toegang tot de tuin.
De open luxe afgewerkte keuken (ca. 11 m²) is voorzien van een kookeiland, recirculatiekap, heteluchtoven, stoomoven met magnetronfunctie, een heetwaterkraan, vaatwasser, koel-vriescombinatie en een composiet werkblad.
1e Verdieping:
Op de eerste verdieping zijn drie slaapkamers en een badkamer. De grootste slaapkamer (ca. 13 m²) ligt aan de achterzijde. De slaapkamer aan de voorzijde van circa 10 m² heeft toegang tot het balkon en een elektrisch screen. De derde kamer is ongeveer 8 m².
De badkamer is praktisch ingericht en verzorgd afgewerkt met een wandcloset (2018), douchecabine (vernieuwd in 2018), whirlpoolbad, radiator (2022) en een wastafelmeubel uit 2022.
2e Verdieping:
De tweede verdieping heeft een overloop met opstelling van de HR-combiketel (2021), aansluiting voor wasapparatuur en toegang tot twee slaapkamers. De slaapkamer aan de achterzijde (circa 14 m²) heeft een kunststof dakkapel, vaste kast en bergruimte. De kamer aan de voorzijde is circa 8 m² groot en heeft ook een vaste kast.
Buitenzijde:
Achter de woning ligt een verzorgde tuin met een deels onderheid terras, waarvan het verstevigde gedeelte direct aan het huis grenst. Dankzij de gunstige ligging is er vrijwel de hele dag zon: tot circa 14.30 uur op het terras bij de woning en tot ongeveer 17.30 uur achterin de tuin.. Ook aan de voorzijde van het huis is een tuin aanwezig, met directe parkeergelegenheid op eigen terrein en toegang tot de garage.
Afmetingen:
Woonkamer ca. 10.47x5.63m.
Keukenruimte ca. 3.32x3.23m.
Slaapkamer (1) ca. 3.36x3.07m.
Slaapkamer (2) ca. 4.16x3.07m.
Slaapkamer (3) ca. 3.20x2.41m.
Badkamer ca. 2.41x2.29m.
Balkon ca. 3.77x2.36m.
Slaapkamer (4) ca. 3.80x4.29m.
Slaapkamer (5) ca. 2.33x3.38m.
Garage ca. 5.62x3.05m.
Verkoper vertelt:
De Anna van Hensbeeksingel biedt ons al 31 jaar een thuis. We hebben er met veel plezier gewoond, het is echt een gezinswoning. Voor ons is het nu tijd om kleiner te gaan wonen.
De locatie is erg goed, met vrijwel alles op tien minuten lopen of fietsen: de binnenstad, scholen, winkelcentrum Bloemendaal, de Reeuwijkse Plassen, het treinstation en het Groene Hart Ziekenhuis, dus zeer centraal, met de voordelen van een rustige buurt.
We hebben een hele zonnige achtertuin, ook al ligt de tuin op het oosten. Doordat de woonkamer een schuin dak heeft, kan de zon vanaf mei al makkelijk over het dak heen en hebben we de hele dag de zon. In april hebben we, als de zon schijnt, al vanaf half 9 de zon op het terras achter het huis en hebben we de hele middag plezier van de zon. Hoogzomer hebben we de hele dag zon in de tuin, tot ca. 7 uur 's avonds. En dan is er ook nog het balkon aan de voorzijde voor de avondzon in voor- en najaar.
Van de flat aan de overkant van de Dreef hebben we totaal geen hinder. In feite is er meer privacy dan wanneer je in de achtertuinen van de overburen kijkt.
We hebben de woning destijds gekocht vanwege de ruimte. Als je aan de voorkant staat, heb je er geen idee van dat het zo’n ruime woning is. We hebben de woning aangepast aan onze behoefte, met een mooie schuifpui, waardoor de tuin betrokken wordt bij de woonkamer. Dat zullen we nog het meeste gaan missen: de zonnige achtertuin en ruime woonkamer!
Algemeen:
* bouwjaar ca. 1977, woonoppervlakte ca. 139m², inhoud ca. 535m³, garage ca. 17m², gebouwgebonden buitenruimte 9m².
* energielabel A, voorzien van 20 zonnepanelen (2024), HR cv combiketel (2021), grotendeels HR++ glas, dakisolatie;
* 5 ruime slaapkamers en een grote woonkamer van 39m2 ;
* parkeren op eigen terrein is mogelijk door dwars voor de garage te parkeren;
* zeer centrale ligging in Gouda op ca. 5 minuten fietsen van NS intercitystation, centrum en gunstig gelegen ten opzichte van winkels, scholen en uitvalswegen;
* wij verwijzen je tot slot naar de “nadere informatie bij het kopen van een onroerende zaak” welke is toegevoegd aan de brochure van deze woning.
Boer Makelaardij kan jou in contact brengen met onze vaste partner Raymond Imbens van Avant Groep Gouda voor een professioneel, onafhankelijk hypotheekadvies, 085-8226222, raymond@avantgroep.nl.
Kenmerken
Overdracht
- Aangeboden sinds
- 12 juni 2025
- Status
- Verkocht
- Aanvaarding
- In overleg
Bouw
- Soort woning
- Woonhuis
- Bouwjaar
- 1977
- Soort dak
- Samengesteld dak
Oppervlakten en inhoud
- Oppervlakte wonen
- 139 m²
- Oppervlakte overige inpandige ruimte
- 18 m²
- Oppervlakte gebouwgebonden buitenruimte
- 9 m²
- Perceel
- 174 m²
- Inhoud
- 535 m³
Indeling
- Aantal kamers
- 6
- Aantal slaapkamers
- 5
- Aantal badkamers
- 1
- Badkamervoorzieningen
- Toilet, douche, wastafel en whirlpool
- Aantal woonlagen
- 3 woonlagen
- Voorzieningen
- Mechanische ventilatie, tv-kabel, schuifpui, glasvezel kabel en zonnepanelen
Energie
- Energielabel
- A
- Isolatie
- Dakisolatie, muurisolatie en hr glas
- Verwarming
- Cv-ketel en vloerverwarming gedeeltelijk
- Warm water
- Cv-ketel
- Cv-ketel
- Intergas (combiketel uit 2021)
Buitenruimte
- Ligging
- Aan rustige weg en in woonwijk
- Tuin
- Achtertuin en voortuin
- Achtertuin
- 54 m² gelegen op het noordoosten
Garage
- Soort garage
- Aangebouwd steen
- Capaciteit
- 1
- Voorzieningen
- Elektra en water
Interesse in deze woning?